查看完整案例


收藏

下载
项目名称 |
汤 逊 湖 壹 号 别 墅
Project name |
tang xun hu yi hao
项目面积 |
约
416
m²
Area |
about 416
m²
项目风格 |
新 中 式 风 格
Project
style
|
Chinese-style
设计团队 |
武汉品承空间设计有限公司
Design team |
Wuhan pincheng space design co. LTD
设计主材 |
石材、木饰面、硬包、墙布
『
DESIGN NOTES
』
大道至简,宁静致远。世事浮华的背后家是简单而纯粹的存在,也是文化积淀与传承的所在。本案汤逊湖壹号别墅简韵芳华的室内与软装设计营造空间的意境,打造出一个具有雍容大雅之风的生活空间,置身其间,回味悠长。
室内的空间布
置突出交流开放型与个人
私密性的空间融合与转换,融中式韵味于格局
之中。
软装设计方面则展现出家
庭文化氛围的禅意
与
生活的
简
韵
。
一个钟情于东方
传
统文化的家庭生活形象
便在此间铺陈开来
。
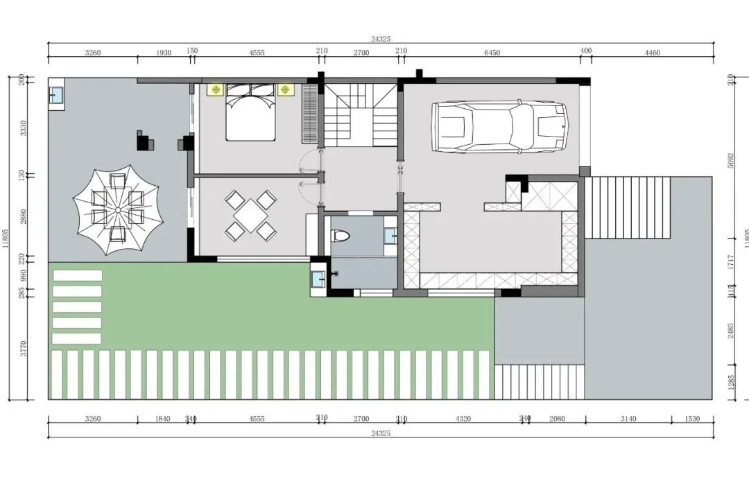
◾️Layout chart | 一楼平面布置图
◾️Layout chart | 二楼平面布置图
◾️Layout chart | 三楼平面布置图
◾️Layout chart | 地下室平面布置图
效果图展示
◾️Living Room | 客厅
水墨意蕴,传承于上古风范和千百年的东方沉淀,是文化自信与精神涵养的集中体现,客厅中存在感强烈的水墨意境很好的传达了这份东方自豪感,使得整个空间散发出大气磅礴、浑然天成的气质。
当窗外的光影柔和地洒进室内,
于光影的
变幻中感受到古雅清
秀的格调氛围。
不止于隐居山林或鸟鸣相伴,才是像
“诗一样去生活
”。
◾️Tea&Dining Room | 品茗区及餐厅
书香、茶韵把茶室古典清幽的格调完美展现,休闲之余品一杯清茗,捧一本散发着书香的典籍来感受文人墨客的情怀,领略“书中自有黄金屋”的真谛。平衡之道,不仅是东方智慧的凝结之一,也在影响当下的生活方式和设计实践。
清泉一方,跌水击石,清茶一盏,琴音曼妙,诗书画意中是居者对于写意生活的无限追求。
烟云为笔墨,清风徐自来。
日出而林开,云归而心静。
◾️Master bedroom | 主卧
生活有时似一阕宋词,
平仄起伏,错落有致,肆意的时光漫延闲散。
信步游走于空间中,朱砂红点缀主题,
让古朴的中式意境透露出婉约温柔的气质。
色彩上用红系中朱砂红来表现主卧正红之气的地位,大床背的形式更彰显气势,
些许弧形元素简约而不失品味,包容万象而雍容有度,让视线得到了无限的延展。
中式韵味通过空间的陈设、画艺中的古典纹样营造出更显华丽、优雅、更具韵味的空间视觉张力。
取其意、演其境、用其韵,不
分繁冗与岑寂,中式之美便是东方生活的姿态。
◾️
Parents'room
| 父母房
父母房于沉稳中焕发典素淡雅的气氛、平和之中蕴含着岁月的包容
,大气雅奢的气质扑面而来。角落细致的精致摆件、去繁从简的宜居卧房,在光阴的细碎中,阅山
光鸟性,听云水歌谣,
留白的空间和着素雅的山水画,
营造一种当代东方的融合共生。
让空间呈现出一片充满现代感与东方韵味的隐居之所。
◾️Bed room | 儿童
房
不同于中式韵味的格调,男孩房结合击剑主题表达出时尚、运动又不失活泼的气息。是运动的热血,是追求的梦想乐园,充分发掘孩子的成长潜力。观清晨到日暮,遨星空到大海,从过往到未来,在空间里无边的遨游,更是想象力的启蒙。
◾️
Cloak ro
om
| 衣帽间
在这个充满东方元素的空间环境里,
女
主人希望做
一
个时尚、
不一
样
的
衣帽间
,结构和风格都偏带点简欧,温润优雅的色调,将传统文化与欧式轻奢审美相结合,在提炼经典的中式元素的同时,又对其部分空间进行简化和丰富。
ABOUT US
品承空间设计有限公司
武汉品承空间设计有限公司是一家专业从事住宅平层、洋房别墅、高级会所、房产样板间的室内设计、装饰施工以及整体配饰陈设为一体的设计公司。将“品质是我们的承诺”作为设计理念,以专业的设计水平,独特的个人品味,诚恳的工作态度服务于追求高品质生活空间的客户群体。团队提供室内硬装设计、软装家具饰品整体设计等服务。选择品承,将艺术融入到生活 ,体验不一样的私宅定制。
M:18908640106
T:027 - 87879499
武汉市洪山区三金雄楚天地1-1413
(
地铁2号线杨家湾站B出口)
往期作品
☞品承设计||碧桂园别墅
||欧式轻奢
||
264m²+花园148m²
☞品承设计||红莲湖度假别墅||558m²+花园280m²
☞品承设计||新长江CBD办公室||现代简约||500m²
☞品承设计||水墨清华别墅||现代简约||514m²
☞品承设计||武汉天地|现代简约||125m²
+48
m²
花园
☞武汉品承设计||武汉岭尚空间高尔夫俱乐部||1300m²
☞武汉品承设计||世纪江尚
||
极简轻奢
||
160m²
☞武汉品承设计||华发中城荟||美式轻奢||290m²
☞武汉品承设计||武汉岭尚空间高尔夫俱乐部||1300m²
☞武汉品承设计||瑞丰国际||现代简约|178m²
☞武汉品承设计||公园壹号||美式轻奢||390m²
☞武汉品承设计 ||纳帕溪谷别墅||现代简约||650㎡
☞武汉品承设计 ||纳帕溪谷别墅||现代简约||590㎡
☞武汉品承设计 ||水蓝郡别墅||现代轻奢||580㎡
☞武汉品承设计实景作品||都会轩||现代轻奢||207㎡
☞武汉品承设计||九台别墅||现代轻奢||622㎡
☞武汉品承设计 ||水岸星城||现代简约||170㎡
☞武汉品承设计 ||楚世家||现代简约||100㎡
☞武汉品承设计 ||御山墅||现代轻奢||137㎡
☞武汉品承设计 ||东湖天下||现代轻奢||258㎡
☞武汉品承设计 ||江山如画汉玺||美式轻奢||220㎡
客服
消息
收藏
下载
最近





































