查看完整案例


收藏

下载
面积:116m²
户型:三房两厅
装修风格:法式复古
这是一对 90 后小夫妻的家,男主是一位建筑工程师,女主从事金融行业,事业很繁忙,经常性出差。女主兴趣广泛,工作之余,自媒体、摄影、手账都有涉及。家庭成员还有两只猫咪,一只圆滚滚的英短蓝白,它叫豆包,非常优雅;另一只喵星人十分神秘,据说会开衣柜门,经常独自躲在衣柜小基地,未见真容~
业主需求:
1.客厅比较宽敞,常规的布局有些浪费,希望空间能充分利用。
2.去卫生间必须要通过厨房,希望通过户型改造,能将厨房与卫生间空间完全分割。
3.主卧距卫生间较远,并且家中只有一个卫生间,未来家中人多的话,不太方便。
4.女业主是一位手账博主,需要一个手账工作间。
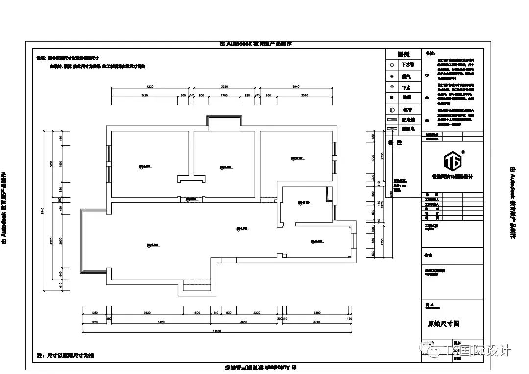
户型图:
原始户型图
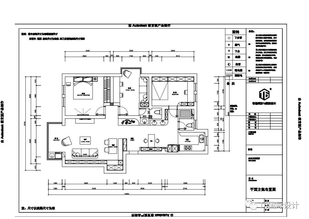
平面布置图
户型优点:
1. 户型比较方正,客厅和卧室的面积都比较大。
2. 每个空间都独立带窗,采光充足。
户型缺点:
1. 面积有 116m²,但却只有一个卫生间,面积较小,使用上有些局促。并且卫生间的门朝向厨房,略显尴尬。
2. 北卧的位置使得储物和利用率都不高,平时这里都是闲置的。
设计亮点:
1. 户型改造:更改了卫生间门的朝向,使卫生间与厨房完全分割,洗手台外移,解决了卫生间使用局促的问题。并且增加了一个卫生间,使用更加方便。
2.配色:这个家的配色多是女主人自己选的,饱和度高的亮色、深沉的复古色并不会显得压抑,反而在象牙白的视觉中和之下,复古优雅但又不会沉重。女主说调色的时候还是十分忐忑的,没想到做出来的效果这么惊艳。
3. 空间利用:设计为客餐厅一体,充分利用空间,客厅一整面墙做收纳柜,储存空间充足。
玄关
▲原本一打开门就是客厅,没有隐私。现在用长虹玻璃搭配复古风的玄关柜做隔断,既分隔了空间又有通透感,藤编镂空的柜门质朴格调,黑色入户门高级简约。
▲映入眼帘的复古红,名叫“战地女神”,原本这里准备选用勃艮第红,但一番考虑之后,选择了略浅一度的颜色。视觉冲击性十足,一个做旧的壁炉,做装饰用,上绘精致的花纹搭配石膏线,上方是一些装饰摆件,下方作为家中两只猫咪的就餐区。
▲书房加了一个卫生间后,墙面凸出来的部分业主挂了一幅英文手稿,古典欧式的氛围感拉满。
客厅
▲沙发背景墙用“勃艮第红”搭配绿色系的“冰海航船”,经典的红绿配色再看万眼都是惊艳的。原本墙面这里凸出去一片区域,现在一整面墙做通顶收纳柜,这里摇身一变成为一个大大的储物间。
▲客厅地砖选用的是光灰地砖,耐脏并且容易打理。驼色科技布布艺沙发,柔软舒适。
▲旁边黄铜质感的落地灯既可装饰还能够补充光源,小型木质茶几让客厅有更多的空闲区域。
▲电视背景墙没有过多繁琐装饰,75 寸大的电视机搭配原木色的电视柜,轻盈的家具让空间更加开阔舒适。棕色系的可可糖涂料背景墙搭配射灯,简约又满足光源。
▲黑胡桃木的茶几、地台与整体空间调性相符,把手、桌脚都是黄铜打制。客厅采用的是黑金色大吊灯,经典的欧式设计。白色太单调,所以吊顶用了质感十足的象牙白色。餐厅
▲客餐厅一体的设计,充分利用了空间面积。实木桌搭配 2m 木质长凳,一边是法式复古的藤编椅。上悬极具设计感的木质南瓜灯,给用餐也增加了多一份的精致格调。
主卧
▲床背景墙这里我们又运用了新的色彩,近年来装修色彩界的网红,布里斯托蓝。
▲黑桃木质的床搭配复古红的丝绒床头软包,复古优雅。旁边是女主的梳妆台,梳妆台上的玻璃台灯补充光源。
▲最近超火的人字拼地板这个家也有自然质朴。黑胡桃木质床彰显着复古美学。进深通顶大衣柜足以容纳两个人的衣物。
▲法式复古风的主灯别具风情,灯泡透过纸灯罩营造一种朦胧的光影。床头柜上悬全铜吊灯,略显轻奢风。复古红丝绒窗帘与缀着花纹的纱帘,复古又优雅。
书房
▲书房是业主两人办公娱乐的地方,书房整体分为办公区、储物区和休闲区。双人书桌放置着两个人的电脑,上方的吊柜收纳一些物品绰绰有余。
▲双人沙发搭配黄色系的“罗马假日”色背景墙,亮色抱枕点缀为空间增添些许色彩。复古蓝的布艺沙发与整体风格相协调。橄榄绿色的丝绒窗帘,清新又有活力。
▲嵌入式书橱不占用空间,收纳力满分。茶色玻璃柜门略显复古感。
厨房
▲将原本狭长的厨房一分为二,外部为西厨区,内部为中厨区。外部通顶橱柜内嵌冰箱、烤箱,整齐简约,设计了大量的储物空间。
▲西厨区还设计了一个吧台,91cm 高的吧台搭配藤编高脚椅,颇有欧式咖啡角的氛围感。上方的黑色射灯又略带工业风,吧台区整体尽显法式的浪漫随意。
▲玻璃门推开是厨房内部,整体 u 字形布局,洗菜、切菜、烹饪动线合理。这个家,复古又现代。厨房铺贴的是最近超火的小白砖,充满生活气息。
▲原本卫生间的门朝向厨房,现在封掉门洞,将厨房与卫生间完全分离。
卫生间
▲洗手台外移。双台盆设计,晨间两人一起洗漱也不会拥挤。镜柜边用黄铜色镜边镶嵌,雕刻着精美花纹,台上盆独特个性,水龙头也是黄铜的,大气华丽。
▲卫生间门采用长虹玻璃,由于卫生间内外空间都比较小,所以这里实际了不占用空间的折叠门。卫生间内部马桶区、淋浴区干湿二分,卫生间整体清新亮丽。
走廊
▲“冰海航船”色走廊墙面的这幅挂画给复古的家添加一丝趣味。白色的通顶柜中间镂空,储物强大。
北卧
▲往里走就是次卧啦,次卧门是实木复合烤漆门板,这里是女主的手账绘画间,生活也要多姿多彩。
关注“T6 焕新家”,咨询家装设计,超多精品设计。
▲190m² 不规则户型大改造!——空间的绝妙运用
▲160m² 打造现代极简,全屋微水泥基调,超有质感的温馨之家!
▲70m² 原木简约风,独享小资生活
更多平台了解 T6 国际设计
▼TEL|400-689-7796
ADD|静安区恒丰路 218 号现代交通大厦西区 2 楼和 3 楼
客服
消息
收藏
下载
最近














































