查看完整案例


收藏

下载
点击上方“周笙笙全案设计工作室”可以订阅哦!
▲[设计考量] Design considerations
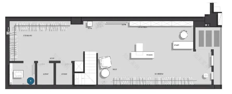
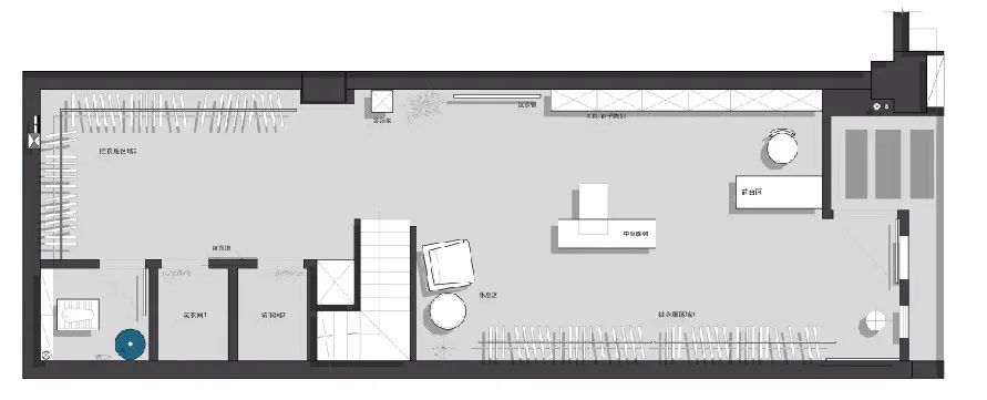
我们要解决的是功能、动线的合理性。项目独一无二的景致,空间高端品位的定位,又让它充满了个性。
从材质组合到色彩、灯光、陈设的搭配都要有它特有的风格,这也是空间中共性与个性的关系。
What we have to deal with is the rationality of the function and the line of motion. The unique landscape of the project, the positioning of the high-end taste of the space, and let it full of personality. From the combination of materials to color, lighting, furnishings with its own style, which is the relationship between the general character and personality in space.
▲[门头橱窗]DOORWAYS, shop windows
门面的整体造型可直观感受空间的艺术氛围,视觉上营造较强的冲击力,几何线条的形态与色彩的碰撞,通过更深层次的研究,找到传统百货店与新潮流时尚店之间的平衡点,从而打造出全新的买手店形象。
The overall shape of the facade can directly feel the artistic atmosphere of the space, visually creating a strong impact. Geometric line shape and color collision, through a deeper level of research, find the balance point between the traditional department store and the new fashion store, so as to create a brand-new image of the shop.
▲[楼梯间]Stairwells
根据结构的功能转换,结构形式表达的无限可能,以具体的形态绘制我们抽象的理想,然后回归生活本身,将艺术与功能的天平达到和谐。
According to the function transformation of the structure, the infinite possibility of the structural form expression, draws our abstract ideal with the concrete form, then returns to the life itself, achieves the harmony between the art and the function balance.
▲[中厅展示区]Atrium display area
直线与弧线,两个空间硬朗的体块与感性的曲面形态,试图描述空间表象,同时简化空间内部结构及设备的复杂度,以一种抓眼的极简造型呈现在空间中。
Lines and ARCS, two solid blocks and perceptual surfaces, try to describe the spatial representation, at the same time, simplify the internal structure of the space and the complexity of the equipment, presenting in the space with an eye-catching minimalism.
▲ [中厅展示区] Atrium display area
不锈钢衣架与克莱因蓝的色块和配上月球灯的艺术装置,鲜明的线性特征与几何装饰相结合,创造一个具有力量的空间体系,带来了一种活泼有序的感觉。
Stainless Steel hangers with Klein blue color blocks and art installations with moon lights combine distinct linear features with geometric ornamentation to create a space system of power that brings a sense of order and liveliness.
▲[
前台展示区
]
Front desk display area
好的店铺不光要有新颖的设计,更要侧重于产品的展示,这样才能够营造出好的贩卖空间,吸引消费对象的注意力。
Good shops not only have novel design, but also focus on the display of products, so as to create a good selling space to attract the attention of consumers.
▲[软装选样]Soft outfit sampling
软装的选配决定了落地的效果,点缀性的加入一些软装饰品可以提示整体空间的氛围
The Optional Collocation of soft outfit decided the effect that falls to the ground, interspersed sex joins a few soft adornment to be able to hint the atmosphere of integral space.
项目地址:湖南-长沙-黄兴镇
建筑面积:50
设计风格:现代极简
硬装设计:周笙笙全案设计工作室
软装设计:周笙笙全案设计工作室
空间表现:积木匠
主要材料:微水泥、外墙涂料、定制灯光、玻璃砖、600*1200 水磨石瓷砖等
THANKS
公司地址:长沙东塘潇湘红影文创园 3-206
手机/tel:15388051772
设计师周笙笙
长沙
设计师周笙笙
周笙笙全案设计 | Meet 高颜值 INS 风女装店
周笙笙设计 | 长沙伊娃国际东方舞学院
客服
消息
收藏
下载
最近










