查看完整案例


收藏

下载
尺本設計
C.H.I.B.E.N Interior design
5
「細沙島嶼」
項目地址 | 17 英里
面積 | 290m²
類型 | 私宅
硬裝設計 | 王翔 & 向磊
* 作為[細沙島嶼]案例預告版,本文僅精選部分空間進行展示
# 材質微展
1.水泥板 / 2.原木 / 3.布藝 / 4.金屬 / 5.大理石
#1 Miami
抵达迈阿密 - 探寻生活立意
现代艺术风格的演绎下,本案尝试描绘迈阿密阳光岛屿的场景感。原木、红棕的色调仿佛棕榈树叶间隙洒下的明媚光线,营造着舒适安心的度假氛围。大留白的写意手法,也为未来居住创造了更多可能性。
Under the interpretation of modern art style, this case attempts to portray the sense of the scene of Miami’s sunny islands. Logs and red-brown tones are like the bright light sprinkled between palm leaves, creating a comfortable and secure holiday atmosphere. The freehand technique of large blank space also creates more possibilities for future residence.
#2 Light
以光为引 - 丰满生活想象
楼梯部分,设计师旨在运用玻璃元素,引入光的剔透感,赋予空间活力和能量,以渐变、延伸、递进的灰色岩板,来增强休闲属性,放缓生活的步调。
In the staircase part, the designer aims to use glass elements to introduce the sense of transparency of light, give vitality and energy to the space, and use gradual, extended and progressive gray rock slabs to enhance leisure attributes and slow down the pace of life.
#3 Playful
拒绝死板 - 生活本该贪玩
基于业主热爱潮流、敢于尝新的人物特征,墙面大胆融入撞色,对区域进行了功能划分,兼具玩味与实用主义,形成了本案独特的印记。
Based on the owner’s love of trends and the daring to try new characters, the wall boldly incorporates contrasting colors, and the area is divided into functions, which is both playful and pragmatic, forming a unique mark of this case.
#
未 完 待 续
To be continued
作为趣味篮球启蒙品牌[Devil Basketball]的主理人,业主既是追求新潮酷玩的都市青年,也是渴求享有独处天地的生活玩家。这激发了设计师的灵感,诞生了本案的设计概念,一场关于岛屿之旅的生活畅想就此展开...
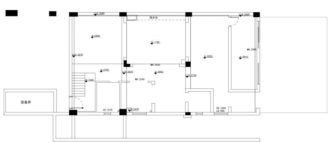
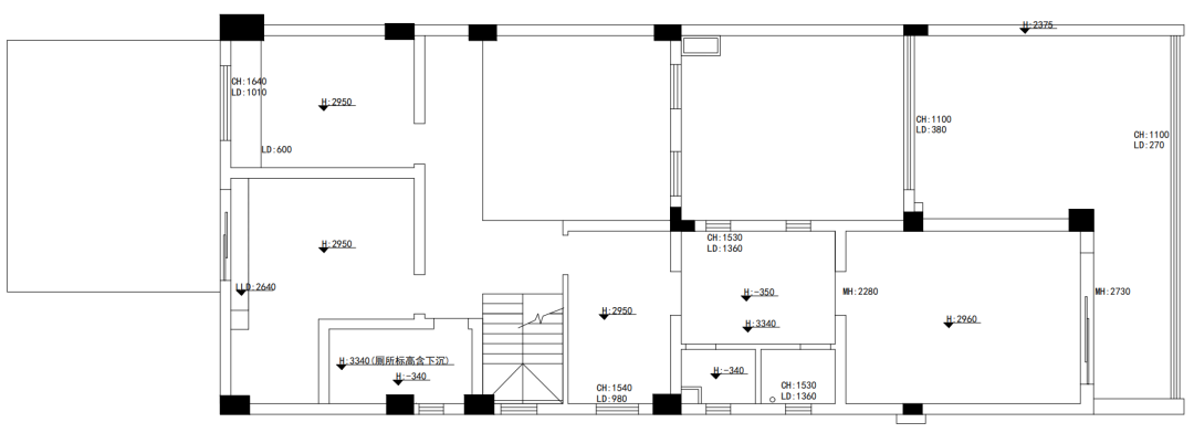
# 户型平面布局
# 過往案例
點擊圖片瀏覽
龍湖開元-明澈如岩
北岸江山-十四行诗
融城华府 - 美学范式
. END.
尺本设计
C.H.I.B.E.N Interior design
*
联系方式
关注我们
023 67479801
137 01463480
江北区观音桥 COSMO B 栋 17-2
COPYRIGHT ©2021
C.H.I.B.E.N Interior design
ALL RIGHTS RESERVED.
客服
消息
收藏
下载
最近






















