查看完整案例


收藏

下载
尺本設計
C.H.I.B.E.N Interior design
4
「明澈如岩」
項目地址 | 龍湖開元
面積 | 135m²
類型 | 私宅
硬裝設計 | 王翔 & 余磊
軟裝設計 | 羅曉燕 & 余磊
冰川
白砖
雪白的砖,皑皑一片。浅灰的纹理描绘着冰川的轮廓,包裹着岩石积累的深色调山脉,阻止了过分的柔和,雕塑了立体的坚硬,生发了厚重又含蓄的美。
The snow-white bricks are a piece of snow. The light gray texture depicts the outline of the glacier, envelops the deep-toned mountains accumulated by the rock, prevents excessive softness, sculpts a three-dimensional rigidity, and gives birth to a thick and subtle beauty.
岩层
墨黑
像是绅士没有褶皱的水波纹西装,周身没有一星半点浮夸的配饰,只着眼于领结、袖口的细节,穿搭也不会显得无聊,台式风的工整、简洁与这别无二致。皮革沙发、茶几腿、电视柜、门框、酒柜,乃至踢脚线,都放心交给纯黑,将品味这回事不着痕迹地延展开来,精致又顺畅,也使空间更为舒阔。
Like a gentleman’s water ripple suit without folds, there is no flamboyant accessories all over the body, only focusing on the details of the bow tie and cuffs, it will not look boring to wear, the neatness and simplicity of the desktop style is no different from this.
光晕
棕影
因房屋结构的关系,主梁并不能完全吊顶包住,设计师故考虑用木质包梁来达到结构平衡。木栅格、木纹版的使用,引入自然元素的温度,消解了几分空间原有的冷峻。石材虽然笨重,在自带光泽度属性和点光源照射的双重加成下,仍然获得了被点石成金的机会。一旦角度合适即可与光线奇妙碰撞,为居室带来意料之外的明暗变化,形成漂亮的光晕,或倒映在墙面,或悬浮在半空。
Once the angle is right, it can collide with the light wonderfully, bringing unexpected changes in light and dark to the room, forming a beautiful halo, or reflecting on the wall, or floating in the air.
雾汽未散,自然的基调,现代的审美,台式风弥漫着充满秩序的静谧,生活于此,身旁不只起伏的雪山,苍茫的冰原,将目光放得长远,也会看到深深浅浅的海平面,划定生活的界限,花草藤蔓迎光生长,耳畔嘤嘤鸟语回荡。The tone of nature, modern aesthetics, the desktop wind is filled with orderly tranquility, living here, besides the undulating snow-capped mountains and the vast ice field, if you look farther, you will also see the deep and shallow sea level. Set the boundaries of life, flowers and vines grow to welcome the light, and the whispers of birds echo in the ears.
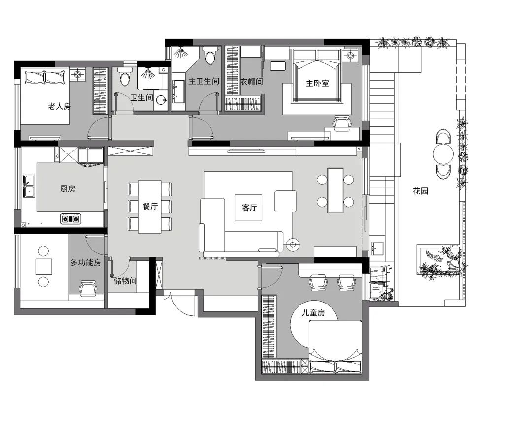
# 户型平面布局
# 過往案例
點擊圖片瀏覽
北岸江山 - 十四行诗
融城华府-美学范式
南 濱 特 區 - 無 問 西 東. E N D. 尺 本 設 計 C.H.I.B.E.N Interior design *⬆️ 關 注 我 們 & 聯 系 方 式 ⬇️ 023 67479801 137 01463480 江北區觀音橋 COSMOB 棟 17-2 COPYRIGHT© 2021 C.H.I.B.E.N Interior design ALL RIGHTS RESERVED.
客服
消息
收藏
下载
最近

























