查看完整案例


收藏

下载
自然情趣,远山青黛。山水如画,你我如斯。
//案例信息:
案例小区:龙湖悠山郡
案例面积:260㎡
案例户型:别墅
案例风格:新中式风格
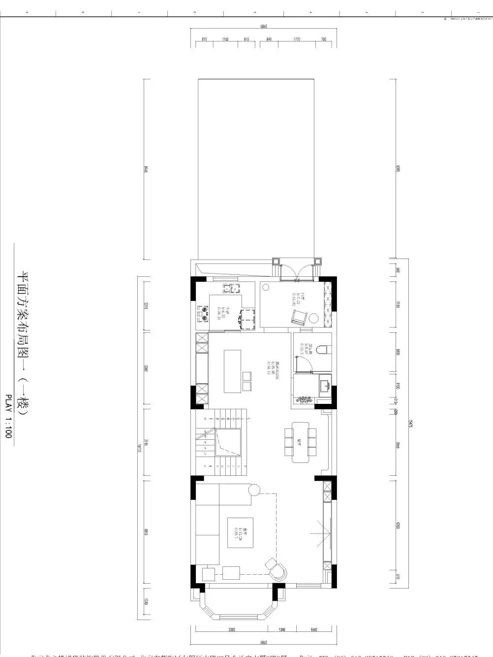
(一楼布局图)
设计说明:
屋主为一家三口,女儿常年在国外,基本设计上都是 L 女士和先生在负责,和设计师初步见面沟通就觉得甚是契合。对于整体的居住需求上有比较高的要求,在常规的生活习惯上,融入别具一格的设计感,中式雅韵。
客厅
远山青黛,重峦叠嶂,若隐若现的山水画显现出一种中式独有意境美,更有一叶扁舟的烟火气。仿木窗棂的墙面造型拉高整个空间的维度,凸显大气。
传统中式木框家具彰显大气,格调高雅而庄重。布艺接触面增加了家的舒适度。
餐厅
藏蓝色、山水画、传统图腾,好像从椅面、挂画到花瓶摆件,相互呼应着显示中式的味道。一株红,将整个用餐氛围渲染到了一种独特热闹中。
西厨区
L 女士闲时喜欢做些小糕点。西式烹饪区和小吧台不可少,一家人其乐融融,嘴里眼里掺了奶油,能甜到心坎里。
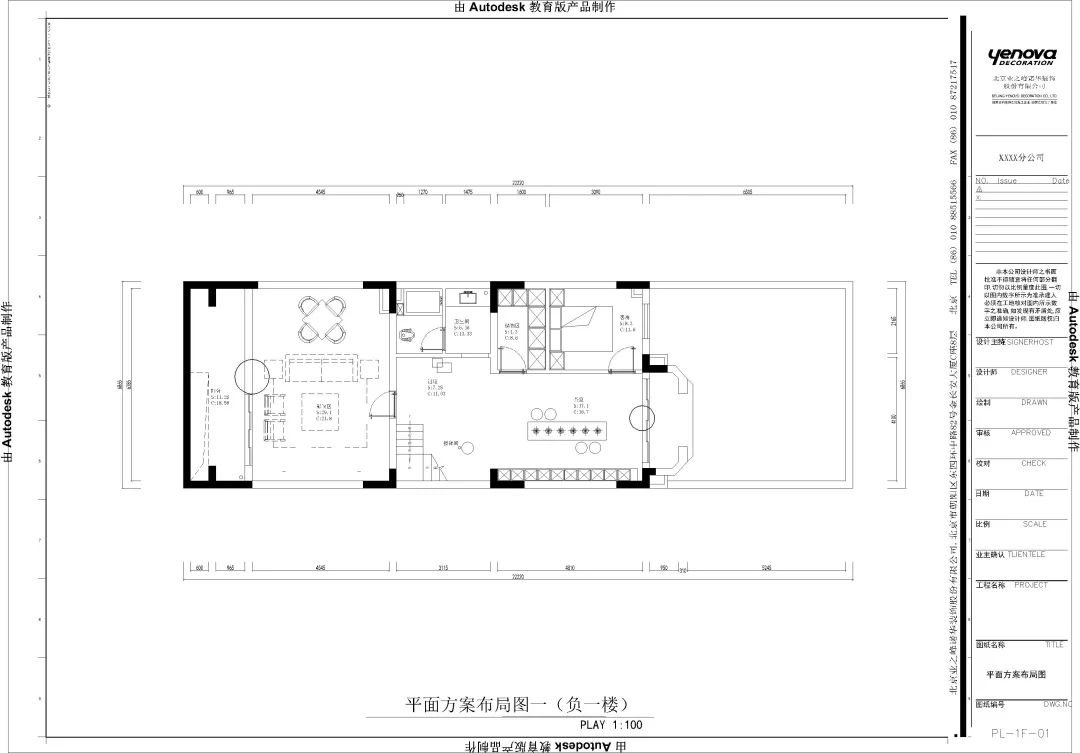
(负一楼布局图)
影音室
女儿是个电影狂,国内外的经典大片熟稔至极。柔软的沙发,现代风十足的茶几。妈妈一切都说要按照主要使用者来。茶室
茶室的布局,大概都能想象到,平时爸爸温煦地端着茶壶,一家人在一片氤氲着,说着近期的絮语。
浓茶间隙闻得泼墨香。背景墙面极具艺术气息。
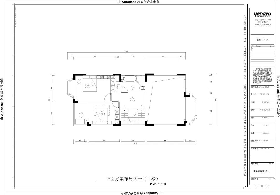
(二楼布局图)
女儿房
现代中式,女儿房的设计最接近于现代。背景墙面的灯带更显温馨。一把吉他,学音乐的女儿,对于归家的幸福感。
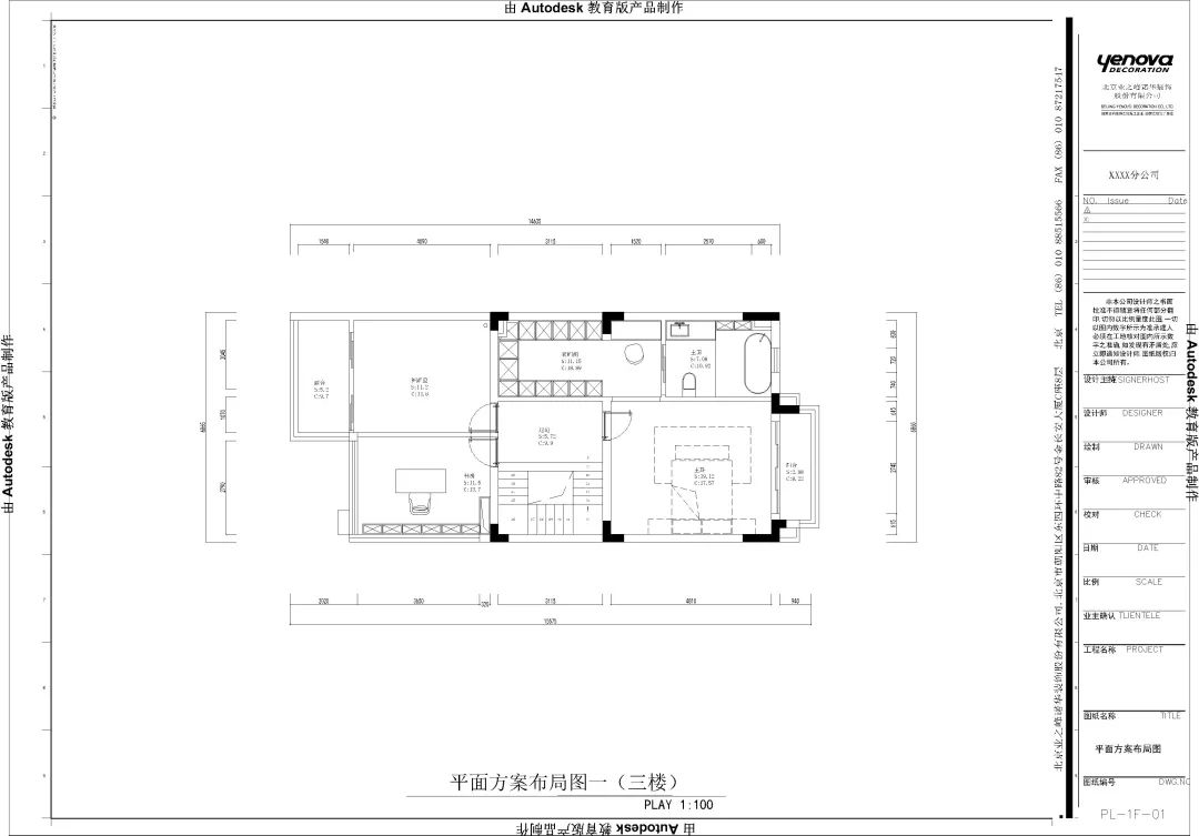
(三楼布局图)
主卧
传统中式讲究对称式的布局,设计师在其中做了变化,中式壁灯与吊灯的配合,也是一种别样的美观雅致。
主卫区域采用干湿分离,方正的区域足以容纳浴缸,洗去一天的疲惫。书房。
设计师在硬装上采用大面积的白,硬朗简洁的直线条,给软装留下足够的发挥空间。从家具到挂画配件,中式风韵尽显,简朴而内敛。
客服
消息
收藏
下载
最近























