查看完整案例


收藏

下载
案例小区:融创观玺台
案例风格:现代轻奢
案例户型:跃层
案例面积:200㎡
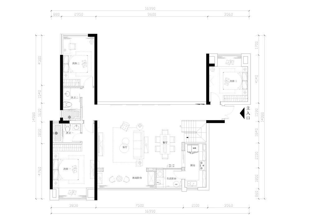
(平面布局图)
本案常住人为幸福的一家三口,家庭氛围感十分浓郁,整体设计全程是女主人做主,先生和儿子予以纠结时斩钉截铁的建议。在风格上定位现代轻奢为主,以浅灰色系为基调,配搭深色墙板,增加了房屋立体感,现代的家居饰品简约而不失品质,金属元素的点缀,更是突显低调奢华。
客厅
客厅从硬装到软装的整体色彩选取,采用冷色与中色系相搭。深绿色,天与地之间连接与融合,大地色与黑白之间的过渡,让整个空间彰显出一种居家的岁月静好。
窗外一年四季熙熙攘攘,屋内三餐四季如一色。
餐厅
在一片黑白灰当中,低饱和度的香槟色皮革餐椅与餐边柜相呼应,柔和了整个餐厅的冷调,吊灯与餐桌餐椅同金属材质的使用,自然纯粹的家不失时尚。
玻璃推拉门视觉延伸了厨房的宽度,也让厨房使用者增加不少家的互动感,我一转身,你就在我视线可及的位置,或嬉闹或安静埋首亦或刚好的对视。
主卧
香槟金与紫,同为高雅的代名词,优雅黑,好像一切光用颜色都足以看出这间屋子主人的高贵气质。
夫妻俩习惯在休息时窝在被窝看剧,同时,女主人觉得,就算是自己玩自己的也想要旁边有个声音,大概是源自从小那些细碎的习惯。
床头柜选择黑色光面辅以金属线条的材质, 同时台灯亦是金属的底座,时尚而利落。
儿童房
刚上初中的男孩子,好像就算你问他想要一个怎样的房间也还不会也太多的要求,一张书桌一把椅子一盏台灯,好像就算是他的整个少年时期。深灰色,安静而干净。
卫生间
双人位的洗漱台,即便是赶时间的早晨也可以互不干扰的同时进行。方形的干湿分离,让整个空间都显的更加宽敞,不存在打扫死角的悬空浴室柜,白色大砖地面与上墙都是同样
不只公司案例,更有更多装修小知识
业之峰,十年质保
水电一口价+全屋入住环保+德国工艺
END
家庭装修,更多人选择业之峰
专注环保装修24年 服务中国102城
欢迎添加客服
24小时线上为您服务
装修咨询|免费设计|最新案例|最新优惠
咨询更多家装资讯
扫码添加
装修咨询
客服
消息
收藏
下载
最近



















