查看完整案例


收藏

下载
安邸AD第105期封面故事
地下二层会客厅 |
Second Basement Living Room
版权所有 ©
雷坛坛
|
Copyright © Jonathan Leijonhufvud
把这里当成一块建筑试验田,大概是张迪对自己家的最佳注解,从定下设计方案到最终完成,各种新鲜工艺、新型材料以及不同的色彩组合都被她在这个空间中进行了大胆尝试,三四年过去了,这个几乎成为张迪耗时最长的作品究竟能带给人怎样的惊喜呢?
地下二层会客厅 |
Second Basement Living Room
版权所有 © 雷坛坛 |
Copyright © Jonathan Leijonhufvud
在洒满阳光的地下室客厅里,张迪常常和朋友相聚在一起谈天说地,靠在墙上的金属装置是艺术家郑路的作品《NACA0012翼型A》,一旁摆放着艺术家Santiago的《肖像三联屏》组画中的一幅,地面上放置的黑色不锈钢烤漆艺术品是郑路的《未知的圆周》。 “其实我做的很多项目灵感都是来自于艺术品,我的家也是如此。” 整个空间关于色彩和材料的诸多灵感,张迪都受到了艺术家Pieter Vermeersch作品的启发。
一层会客厅 |
First Floor Living Room
版权所有 © 雷坛坛 |
Copyright © Jonathan Leijonhufvud
张迪与她的团队做过很多与艺术有关的项目,每一次谈起设计初衷时,她都会围绕着情绪二字来展开。“情绪是人对周边环境、空间的一种感知,一种反射。一个空间环境,可以让人喜欢或是不喜欢,但最怕的就是让人无感。”(家里的大多数艺术品来自白盒子艺术馆的“家美术馆”项目。)
一层会客厅 |
First Floor Living Room
版权所有 © 雷坛坛 |
Copyright © Jonathan Leijonhufvud
而这一次,设计自己的家,张迪依然从情绪上出发,而连接情绪与现实的关键一环,便是贯穿于家中每个不同区域的地面石材。“我是先看到了这块石头,才有了整个家的设计想法。”她将带着粉、灰、墨绿三种色调的石材切割成不同的弧度,拼接之后铺设在不同区域的地面、墙面,形成贯通一致的视觉效果,再搭配地毯或是木地板,规划出走动与停留的动线,呈现一种地界的概念,亦是人和环境的所属关系,丰富着空间情绪的层次。
酒吧 |
Bar
版权所有 © 舒赫 |
Copyright © Shu He
健身房 |
Gym
版权所有 © 舒赫 |
Copyright © Shu He
这套房子从最初定下设计方案到后来的改造实施,用了三四年的时间,张迪和她的团队一边完成别的项目“顺手来动动工”;因为是她自己的家,又多了一层不用妥协的可能性,光是颜色就调配了无数次,在不断地尝试与打破之后,这个家几乎成为她耗时最长的作品。
“这个家像是我们的试验田,尽管用了好几年的时间,但我们却在这里尝试了很多新鲜的材料组合、新的工艺手法、色彩组合,试验成功之后,又用到别的项目上。”
餐厅 |
Dining Room
版权所有 ©
舒赫
|
Copyright © Shu He
餐厅 |
Dining Room
版权所有 ©
舒赫
|
Copyright © Shu He
餐厅 |
Dining Room
版权所有 ©
舒赫
|
Copyright © Shu He
电梯 |
Lift
版权所有 ©
舒赫
|
Copyright © Shu He
或许因为自己的建筑师背景,张迪对于纯装饰性的设计需求几乎没有,家中的每一处设计都有功能和意义上的考虑。“我的家里几乎没有几件家具是买回来的,大多数家具和灯具,都是我们自己设计的,都在颜色或是功能上与整个家的调性吻合。”家中甚至没有书房,这也映射着她与丈夫的工作习惯,“我可以在办公室里工作到很晚,但不喜欢把工作带回家里,我的书都在办公室。”小型休息区域是主人常来闲坐的地方,而朋友来张迪家做客时也常相聚于此。
地下二层会客厅 |
Second Basement Living Room
版权所有 ©
舒赫
|
Copyright © Shu He
泳池 |
Swimming Pool
版权所有 © 雷坛坛 |
Copyright © Jonathan Leijonhufvud
唯一被她戏称为“不是刚需”的游泳池,是因为房子的空间相对比较大,但她和家人又不是那种需要影音室、棋牌室的人。两盏吊灯是由waa事务所定制的,而池内的灯光设计则为泳池增加了层次感。
整个家中的布局和功能分区也是基于她与家人对生活的感受和需求。房子的面积很大,但是在格局上却十分开阔,没有设置太多独立的房间,“我喜欢开敞而通透的环境,家中几乎没有门,我不觉得没有门就没有归属感,你可以通过色彩、灯光,甚至是布局,来营造归属感,让人待得住,这依旧是情绪的问题。”
西厨 |
Western Kitchen
版权所有 © 舒赫 |
Copyright © Shu He
家里有两个厨房,一个中厨,一个西厨。西厨区是全开放式的结构,深绿色的柜子是waa事务所定制的,可以容纳超多杂物。一侧墙面上悬挂的画作是艺术家李向阳的《无题》,走廊尽头墙面上悬挂着艺术家 Santiago创作的《Animal-3》。“我觉得厨房是最有生活烟火气的地方,也是大家每天碰面最多的地方,一定要开放而舒适,不能封闭。”
西厨 |
Western Kitchen
版权所有 © 舒赫 |
Copyright © Shu He
在张迪家里,你几乎看不到什么零碎的生活物件,而背后的秘密是她设计了很多储物柜将它们藏起来了。几扇透气的窗户正对着餐桌区域,将室外美景引进室内,也为整个空间带来了柔和的光线。
主卧室 |
Master Bedroom
版权所有 © 舒赫 |
Copyright © Shu He
极具美术馆与画廊气质的家中,无论是配色还是结构,都为摆放艺术品创造了好的基底。卧室的沙发、床旗、地毯、墙面和床头板相互呼应,淡淡的粉色贯穿了整个空间,给人温馨而和谐的感觉。沙发上的抱枕来自 T-B-H,墙面上悬挂着艺术家黄致阳的《现象七十二变No.1903》。
卫生间的设计十分简洁,整面墙的镜子设计分割了空间,石材的墙面与地面遥相呼应,插花给空间带来生机。浴缸旁摆放香熏蜡烛让人拥有轻松惬意的沐浴时光。
卫生间 |
Bathroom
版权所有 © 雷坛坛 |
Copyright © Jonathan Leijonhufvud
主卧卫生间 |
Master Bathroom
版权所有 © 舒赫 |
Copyright © Shu He
谈起家中最满意的地方,张迪说并不在某处细节,而在于现实的结果和效果图所呈现的没有出入。这恐怕是最让建筑师、设计师们欣慰的事情了。“不只是我的家,我们做项目的时候,也一直是这么要求自己的。”
一层入口玄关 |
First Floor Entrance
版权所有 © 雷坛坛 |
Copyright © Jonathan Leijonhufvud
地下二层会客厅 |
Second Basement Living Room
版权所有 © 舒赫 |
Copyright © Shu He
地下二层会客厅 |
Second Basement Living Room
版权所有 © 舒赫 |
Copyright © Shu He
而关于这个家的小小遗憾,张迪则坦言,除了在安置插座这种细节的考量上不够充分之外,最大的遗憾就是目前的生活状态太忙了,一大早就出门,晚上到家也晚,“没有机会来好好享受这个环境”。但也如她评价自己并不是那种有长远规划的人,能把眼前的每一件事情做好,已是对工作和生活最真诚的告白。
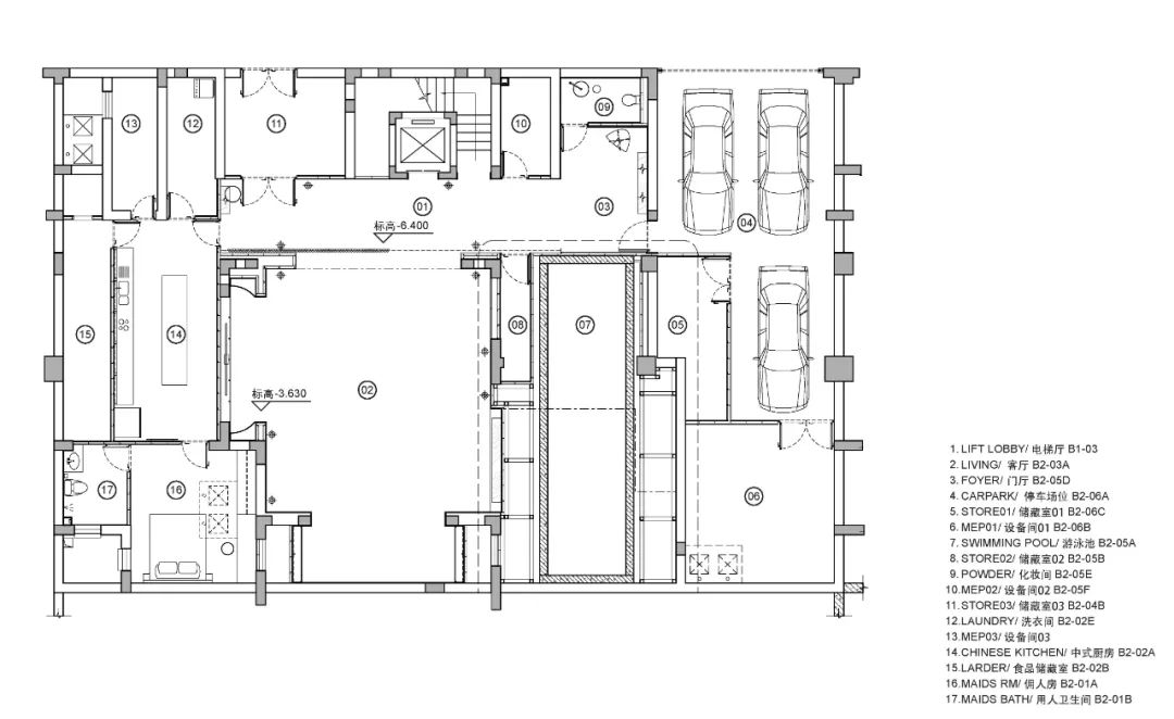
地下二层平面图
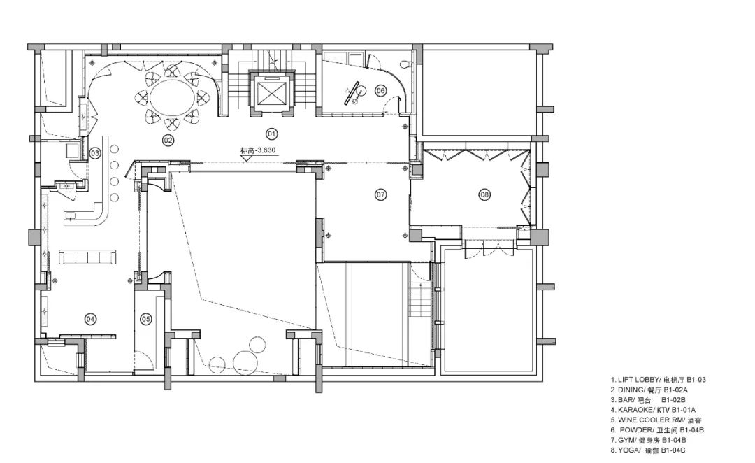
地下一层平面图
一层平面图
二层平面图
项目概况
FACTS
地点:中国,北京
Location:Beijing, China
室内设计:waa未觉建筑
Interior:waa (we architech anonymous)
定制灯具生产厂商:
HKLight
Costom Lighting Supplier:HKLight
建筑面积:899平方米
Gross Floor Area :899m²
设计时间:2016.04-2019.05
Design Schedule :2016.04-2019.05
建设时间:2017.02-2019.07
Construction Schedule :2017.02-2019.07
摄影师:雷坛坛,舒赫
Photographer :Jonathan Leijonhufvud, Shu He
撰文:安邸AD
Editor :ADStyle
主创设计师:张迪,杨杰克
Principal Architects:Zhang Di, Jack Young
设计团队:
黄一粟,梁剑,张楠,朱晶
Team:
Huang Yisu,Liang Jian,Nancy Zhang,Zhu Jing
客服
消息
收藏
下载
最近




























