查看完整案例


收藏

下载
生活,
应该有自己独一无二的格调
Life,
should have its own unique style
作品信息
项目地址 Project address / 文渊居
设计风格 Design style/ 美式轻奢
项目面积 Project Area / 160㎡
设计公司 Desing company / 上官睿璞设计
主创设计 Main Creative Desing/ 储英
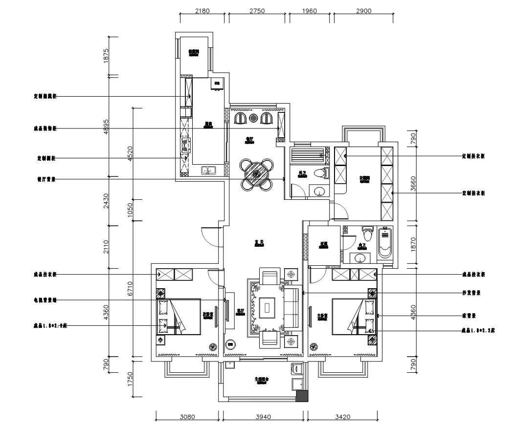
平面设计图
—— Floor Plan ——
01
客厅
Living Room
客厅在用色上十分大胆,
优雅高贵的紫色电视背景墙,蓝白撞色的沙发,不同色彩的
碰撞
让客厅充满活力而有韵味。
简单的石膏线条,
轻易凸显空间了层次感与质感。
华丽的吊灯、
沙发背景墙的铁艺扎花,
都将轻奢质感归于生活。
02
厨房
Kitchen
不同于客厅的张扬,
厨房
整体采用浅灰与白的色调,
让整个空间看起来更加简洁大方,
金色把手的点缀,
为其增添了恰到好处的精致。
L型厨房形成一个流畅的下厨动线,吊柜与地柜组合形式,将收纳做到极致。
一年四季,
一日三餐,
洗手作羹汤,每一刻都可以
享受制作美食带来的幸福感。
03
卧室
bedroom
低调温和的肉桂色,
打造温柔的卧室氛围,
床头软包增加舒适度,
随处可见的鲜花,
营造出宁静雅致的睡眠环境。
蓝色是一种很安静,
让人舒适的颜色,
大面积的蓝色搭配原木、米白
让空间不再单调,
精致的台灯,
没有过多的装饰与设计,一切都是刚刚好的样子。
RECOMMEND
推荐阅读
▼▼
SG•RP—禅意 | 素璞自然
▼▼
SG•RP—高颜值餐厅赏析
▼▼SG•RP——新作《Less is more》
▼▼【上官装饰-睿璞设计】随意自在的美式生活——天鹅湖别墅
谢谢阅读
上官睿璞设计
从事装修行业以来
一直秉着
诚稳守信、质量为本的
经营理念
更多作品请关注
公司地址:
湖塘花园街新城上街H2F-13-15
15895056023
扫码关注更多装修工地
客服
消息
收藏
下载
最近






















