查看完整案例


收藏

下载
点击上方
“蓝字”
关注我们~
项目信息
—————————————————————
项目地址:天鹅湖别墅
Project Address: Shenye Washington
项目面积:480m²
Project area: 480m²
主创设计:张工
Main Creative Design:Zhang gong
设计公司:上官睿璞
Design Company: Shangguan Ruipu
项目类型:住宅空间
Project Type: Residential Space
客厅/Living room
休闲浪漫的美式风格,在此次案例中尽显本色。优雅低调的家具搭配简洁精致的线条。凸显出随意又浪漫的感觉。
灰色的地砖,简约的白色拼花。让整体显得大方。空间感上也让整个客餐厅的位置变得更加的大气和宽敞。
餐厅/Restaurant
部分的柜子也是采用的灰色搭配白色。和整个客餐厅的地面瓷砖形成了一个统一的感觉。过道上明装的筒灯,像遗落的银河的星星一样,点点分布。
从餐厅的视角看客厅,精致的铜式吊灯,排列整齐划一。拱形的窗户精致又有格调。充满了美式的感觉。不经意间的流露出浪漫的体系。
卧室/Bedroom
次卧太美了吧!感叹。简约中透露出一丝丝的贵气,却又不失美式休闲随意的感觉。清新的颜色也很适合小孩,不过分浓墨重彩的装饰,反而让人流连忘返。
主卧同样也是绝美的搭配。深浅的层次分明,给人一种稳重放松的感觉。看似复古的色调,其实明明之中也有不羁的感觉。
书房/Cloakroom
书房设计成一个开放式的休闲处。时尚的挂画,无主灯设计的吊顶。让人放松的皮质沙发,无疑不在透出随意、自在的生活方式。
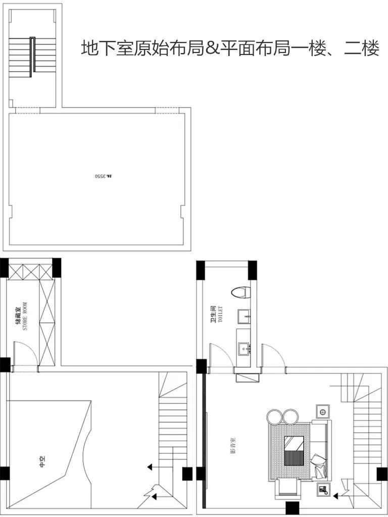
地下室/basement
宽敞明亮的地下室,让人眼前一亮。浅咖色的地砖拼花。隐隐地时尚感。通透的玻璃扶手,时尚大气。
楼梯、地下室二楼/stairway
楼梯采用灰色的石材,走在时尚的前端。古铜色的扶手搭配通透的玻璃。贵气却又自在。
阁楼/attic
阁楼整体是一个收纳和儿童游乐区。所以整个色彩都很明快和鲜亮。顶上的木质吊顶,白色的乳胶漆。仿佛带人走进美国的经典电影中的场景。给你一个梦幻的美式风格。
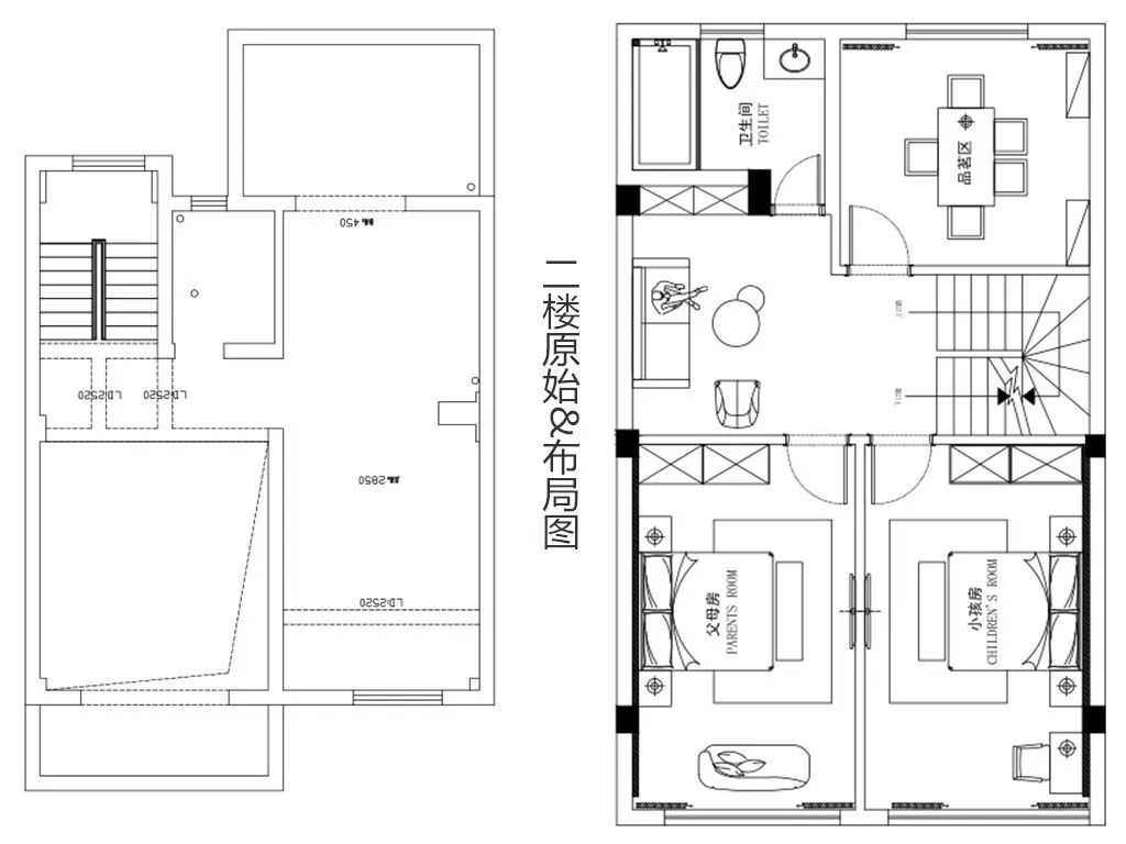
平面布置&原始布局
此方案最大的特点就是对于整个户型的改造,扩建了很多地方,增加了面积和使用性。
谢谢阅读—欢迎分享
上官睿璞设计从事装修行业以来
一直秉着
诚稳守信、质量为本的
经营理念
2018年度
荣获优秀办公空间设计——睿璞软装部
2018年度
荣获中国常州设计师盛典优秀设计企业
更多作品登陆
化龙巷上官-睿璞设计专版
公司地址:
湖塘花园街新城上街H2F-13-15
0519-88991098
扫码关注更多装修工地
往期回顾
【上官装饰-睿璞设计】异域风情的美式轻奢风•御园别墅
【上官装饰-睿璞设计】冬天里的卡布奇诺•星河国际现代风
【上官装饰-睿璞设计|年末钜惠-跨年保价】美式冰摩卡—深业华府简美风
【上官装饰-睿璞设计|年末钜惠-跨年保价】用至间设计展示至繁品味——星河国际现代风
【上官-睿璞】万科城|210m²现代简约品质生活空间
客服
消息
收藏
下载
最近























