查看完整案例


收藏

下载
项目名称:路劲城
项目面积:145㎡
项目风格:现代风
设计师:杨元培
生活若没有丰足时间出走远方,
可以尝试“手绢抛书午梦长”的小憩,
于自在的休息日午后,
萃取一杯咖啡的香醇,
在书卷中享受自在安逸的时光,
一种不愿将就的生活,
光线透过窗纱洒在地板、床铺,
轻盈美好,
是内心深处所渴望的理想栖居场所。
上官
SG
睿璞
RP
2017年第五届国际空间设计大奖“ID+G”金创意奖国际空间设计大赛十大创新设计师奖
商业工装、别墅
住宅公寓
从业十一年
中式后奢、现代轻奢
新中
雅居乐、星河国际、玉兰广场、路径城等
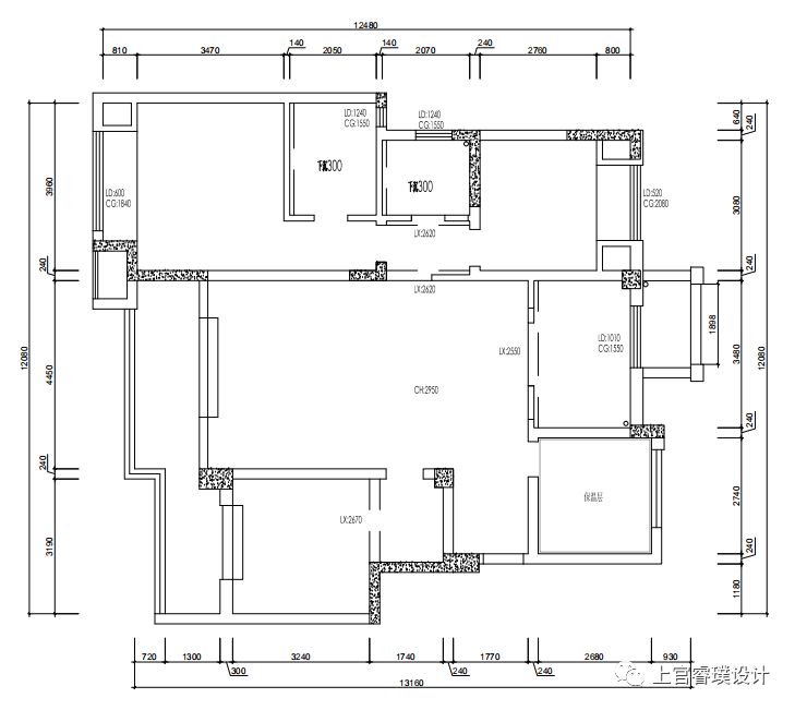
原始户型
1.客餐厅面积过小2.主卧走道过长,浪费空间3.厨房浪费面积较多4.书房面积过小5.主卧和次卧的飘窗占用了空间
改造设计
1.把厨房的设备平台敲掉,扩大了厨房的面积,把原先的长度缩短,扩大了餐厅的面积和书房的面积2.把客厅的阳台敲掉,把阳台融为客厅一体,扩大了客厅的面积3.缩短了主卧的过道,减少了浪费
手绢抛书午梦长,不愿将就过余生
First Year
客厅
一些简单的配饰,一些简单的绿植,就能构成一幅美丽的画面
客厅运用的颜色比较多,以木色灰色白色为主。中间穿插了一写黄色系作为跳跃色。在阳台区域用木色面板做了一个区域的划分,但也和客厅的背景墙形成了一个统一
木色配以白色最为简约时尚,在当下快节奏的生活中,回到家就想坐在沙发上放松自己,因此简单的颜色用心的设计,才是最深得人心的
厨房
厨房浅灰色系的地砖搭配深色的橱柜,简约清爽有质感。透过厨房透明的移门看外面的餐厅和客厅,整体通透明亮,空间大气
书房
书房是整个设计里最能让人冷静思考的地方,因为是一个比较稳重的设计感觉,深色系的家居打造沉稳大气的感觉。
在晚上打开书房的灯,有了一方属于自己的小天地
书房采用了黑框的玻璃移门,在提升的采光的情况下,也增加了一些时尚感,不至于整个空间都显得很压抑
主卧
主卧浅色系的背景墙搭配黑色的皮质大床, 不一样的材质碰撞出了不一样的火花。有质感的前提下,还凸显出了简约大气的效果
次卧
次卧不同于主卧,运用了浅蓝色作为背景,搭配同色系的窗帘,扩大了视觉的效果,黄色的装饰画跳跃性的在整个空间起到了点睛的作用
卫生间
卫生间整体感简约大气,灰色系的地砖墙砖是近几年很流行的颜色,整体感觉很干净利落
阳台
阳台没有过多复杂的设计,整体跟着风格走,浅色系的砖跟卫生间和厨房一样的质感。
· END ·
上官睿璞设计从事装修行业以来
一直秉着
诚稳守信、质量为本的经营理念
在社会上拥有良好的口碑和品牌知名度
赢得了广大消费者的信赖
企业始终处于良好的发展态势
▷上官- 睿璞 ◁
更多作品登陆
化龙巷上官-睿璞设计专版
SGRPDESIGN
哈哈
地址:湖塘花园街新城上街H2F-13-14
白
1
上官睿璞
工地直播中
邀您围观
如果喜欢就分享给朋友们吧~
谢谢阅读 | 欢迎分享
客服
消息
收藏
下载
最近

























