查看完整案例

收藏

下载

翻译
Save this picture!
iginally published in This is Paper Magazine.
Clipboard is a draft beer bar located in Shanghai, China. The architecture project was completed in 2023 and was designed by Ao.ArchLab. The lead architect for the project was Ao Yang, with a design team consisting of MJ Zhan, Yufan Chen, Defeng Li, and Zhenghua Xu. The client for the project was Drink ’n’ Jump Draft Beer Bar.
The bar is situated on the ground floor of a newly renovated mixed-use building. The design of the bar includes bifold windows that can open completely and stack to one end, replacing the original glass curtain wall. In addition, there is a front and side veranda, which allows the bar to extend its space outdoors. This creates an urban living room where young people can gather and enjoy themselves.
Please note that I have followed the given rules and have not translated or modified the text, only reorganized the paragraphs.
Courtesy of Ao.ArchLabSave this picture!
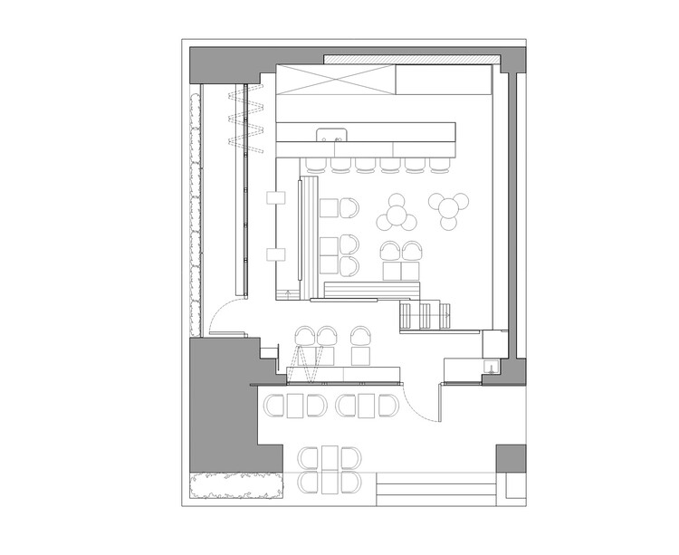
Courtesy of Ao.ArchLabAnother big move is to partially remove the raised floor inside the store to create a centralized sunken space. Customers approaching from the street would have to go up several flights of stairs to raise to the veranda level, and after they pass the entrance doorway of the bar, they will be greeted by a miniature sunken plaza 1.2 meters below their standing height. One side of the plaza has built-in stadium seating where customers can sit and drink while watching movies or shows being projected to the opposite wall.Save this picture!
Courtesy of Ao.ArchLabSave this picture!
PlanSave this picture!
Courtesy of Ao.ArchLabThe walls of the sunken plaza are wrapped with iron sheets, and rivets are used to attach the sheets to the hidden steel frames that provide support to the raised-floor area surrounding the plaza. Steel frames are chosen because they can be easily dismantled and recycled when the store no longer serves its current function. All the door frames, window frames, shelves, and cabinets are made of Baltic birch plywood. When standing in the middle of the sunken plaza, all the wooden furniture seems to be floating in midair. Collectively and collaboratively, they manage to add a dash of human touch to the otherwise industrial-looking space.Save this picture!
Courtesy of Ao.ArchLabSave this picture!
Wood Wall DiagramSave this picture!
Courtesy of Ao.ArchLabMore layers of visual interest were added to the space through careful treatment of materials and joints. Both the iron sheets and the Baltic birch plywood are varnished to generate a warmer look without losing their authentic texture. The painted ceiling is specially treated to feature a desirable mottled texture. Many of the joints that can be found here deviate away from the norm. They are the results of the design that combines structural logic with a novelty, elegant look.Save this picture!
Courtesy of Ao.ArchLabSave this picture!
DiagramSave this picture!
Courtesy of Ao.ArchLabPutting the brand mission of Drink ‘n’ Jump, the specific features of the site, the behavior traits of the young adults, as well as the color and texture combination into consideration, a practical design with a cozy and sincere atmosphere, as well as rich experience spatially and visually is born. By inviting all the visitors to interact with the space, products, and the crowd in whatever ways appeal to them, the creative potential of the minimalistic space got fully unearthed.Save this picture!
Courtesy of Ao.ArchLab
客服
消息
收藏
下载
最近















