查看完整案例

收藏

下载

翻译
Guardar no Meu ArchDaily
tros países, como Brasil, Argentina y Portugal.
El apartamento Itambé, ubicado en São Paulo, fue diseñado por Pátio Arquitetos y destaca por su diseño moderno y funcional. El equipo de arquitectos se centró en maximizar el espacio y la luz natural, creando un ambiente acogedor y versátil.
El apartamento consta de varios espacios bien definidos, que incluyen una sala de estar, un comedor, una cocina, un dormitorio principal con baño en suite y un dormitorio adicional. Cada espacio fue diseñado cuidadosamente para aprovechar al máximo el área disponible y satisfacer las necesidades de los residentes.
La sala de estar está decorada con colores neutros y cuenta con muebles elegantes y contemporáneos. Los grandes ventanales permiten la entrada de luz natural y ofrecen vistas panorámicas de la ciudad.
El comedor está ubicado junto a la sala de estar y cuenta con una mesa de comedor de diseño y sillas modernas. Este espacio es perfecto para disfrutar de comidas en familia o con amigos.
La cocina del apartamento Itambé es moderna y funcional, con armarios empotrados y electrodomésticos de alta gama. También cuenta con una isla central que proporciona espacio adicional para preparar alimentos y también funciona como un área de desayuno.
El dormitorio principal es amplio y luminoso, con una cama king-size y almacenamiento integrado. El baño en suite cuenta con una ducha a ras de suelo y una bañera independiente.
El segundo dormitorio es más pequeño pero igualmente acogedor, con una cama individual y una zona de estudio. También tiene acceso a un baño compartido, que cuenta con una ducha y una bañera.
En resumen, el apartamento Itambé es un ejemplo de diseño moderno y funcional que maximiza el espacio y la luz natural. Cada espacio ha sido cuidadosamente diseñado para satisfacer las necesidades de los residentes y ofrece un ambiente acogedor y versátil.
Prancheta
"COPY"
copiarPensar o layout, rever questões estruturais. Projetar um apartamento requer o diálogo com uma construção prévia que podem desafiar arquitetos e designers. Trazer amplitude para pequenas áreas, levar iluminação para ambientes menos favorecidos, trazer características ímpares para uma planta tipo replicada em inúmeros pavimentos. Enfim, planejar uma residência é o tema que sempre orbitará a profissão - e se destacar no assunto nem sempre é fácil -, por isso, e para levantar distintas referências, apresentamos os apartamentos brasileiros que mais foram visitados pelo público no ArchDaily Brasil em 2022.+ 16 A seguir, compilamos os projetos mais populares e criamos uma lista ordenada da menor área construída (64 m²) até a maior (200 m²), apresentando uma foto do projeto junto de parte de sua descrição e planta. Tratam-se de diversas escalas de intervenção que adotam diferentes soluções estruturais, arquitetônicas e de interiores. Interessado por projetos de apartamentos? Não deixe de ver os mais populares de 2021 e 2020. Apartamento Brisa / Elisa Albuquerque (64 m²)
Guardar no Meu ArchDaily
Apartamento Brisa / Elisa Albuquerque. Foto: © Julia Tótoli"A estratégia adotada foi a de incluir materiais que trouxessem texturas e cores acolhedoras. (...) Também foi retirado o forro do teto para expor a laje nervurada que estava escondida pelo gesso. A maior intervenção foi feita na cozinha, onde optamos por uma generosa bancada de granitina moldada no local, em peça única sem divisórias, que se dobra em rodabanca e, ainda, em uma pequena prateleira que cria o arremate com a marcenaria."Guardar no Meu ArchDaily
Planta - Apartamento Brisa / Elisa Albuquerque Apartamento Itambé / Pátio Arquitetos (67 m²)Guardar no Meu ArchDaily
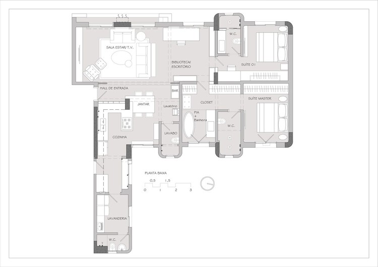
Apartamento Itambé / Pátio Arquitetos. Foto: © Carolina Lacaz"Uma demolição de parte da alvenaria era preciso. Esta seria responsável pela ampliação e integração entre alguns ambientes, como o aumento da área da cozinha e a integração entre sala de estar e o escritório. Dessa forma, a grande janela piso-teto, que iluminava apenas a sala de estar, passa iluminar todo o apartamento, trazendo maior conforto."Guardar no Meu ArchDaily
Planta - Apartamento Itambé / Pátio Arquitetos Apartamento MaxHaus BD / Ponto 6 Arquitetura + Isabella Tonietto (68 m²)Guardar no Meu ArchDaily
Apartamento MaxHaus BD / Ponto 6 Arquitetura + Isabella Tonietto. Foto: © Gabriel Konrath"Para trazer esse ar mais industrial que os moradores desejavam, utilizamos materiais como a madeira e a estrutura metálica. Em alguns momentos a madeira clara contrasta com uma estrutura metálica de tom grafite, enquanto em outros a madeira acompanha uma estrutura metálica de tom rosado, trazendo leveza para o apartamento quando necessário. Além disso, foram mantidos o pilar e a laje em concreto aparente."Guardar no Meu ArchDaily
Planta - Apartamento MaxHaus BD / Ponto 6 Arquitetura + Isabella Tonietto Apartamento Copan Bloco E / Valdivieso Design (70 m²)Guardar no Meu ArchDaily
Apartamento Copan Bloco E / Valdivieso Design. Foto: © Fran Parente"Os brises de concreto foram novamente evidenciados, retornando a bela vista que havia se perdido da fachada e do exterior, e consequentemente também a melhoria da ventilação e da iluminação natural. A laje nervurada, parte da estrutura que compõe o edifício, também foi evidenciada em todo apartamento com a remoção do forro de gesso existente."Guardar no Meu ArchDaily
Planta - Apartamento Copan Bloco E / Valdivieso Design. Apartamento NC / flipê arquitetura (75 m²)Guardar no Meu ArchDaily
Apartamento NC / flipê arquitetura. Foto: © Manuel Sá"Todos os espaços foram ressignificamos e transformados no projeto. A atual suíte está localizada na antiga lavanderia, que possuía uma grade janela e deu lugar a um quarto iluminado. A cozinha se transformou em closet e os antigos quarto e sala integrados, em um grande espaço de cozinha e estar."Guardar no Meu ArchDaily
Planta - Apartamento NC / flipê arquitetura Apartamento Sodré 272-401 / Oficina Conceito Arquitetura (97 m²)Guardar no Meu ArchDaily
Apartamento Sodré 272-401 / Oficina Conceito Arquitetura. Foto: © Marcelo Donadussi"O apartamento foi entregue com laje de concreto polido, apenas fizemos uma lapidação deste elemento. Solução de baixo custo e que valoriza a textura do próprio concreto. Visto que temos concreto no teto e no piso, decidimos que tínhamos que eleger elementos de cor. Escolhemos o ladrilho hidráulico azul para as paredes da cozinha e estar, que formam um lindo painel com desenho criado por nós."Guardar no Meu ArchDaily
Planta - Apartamento Sodré 272-401 / Oficina Conceito Arquitetura Apartamento Paleta / com/c arquitetura (140 m²)Guardar no Meu ArchDaily
Apartamento Paleta / com/c arquitetura. Foto: © Julia Totoli"Os materiais escolhidos para sala buscam criar uma base neutra: tijolos, painel em lambri (que recebe a televisão e o louceiro embutido com uma porta mimetizada) e piso em taco original. A intenção é dar destaque ao mobiliário e adornos que, juntamente com a vegetação externa que penetra o espaço do apartamento pela fachada envidraçada, traz vida e cor para a paleta."Guardar no Meu ArchDaily
Planta - Apartamento Paleta / com/c arquitetura Apartamento Faria Lima / Pietro Terlizzi Arquitetura (140 m²)Guardar no Meu ArchDaily
Apartamento Faria Lima / Pietro Terlizzi Arquitetura. Foto: © Guilherme Pucci"Usando como partido explorar o máximo a arquitetura original do apartamento através da exposição das peças estruturais em concreto armado e também deixando amostra elementos de caráter industrial."Guardar no Meu ArchDaily
Planta - Apartamento Faria Lima / Pietro Terlizzi Arquitetura Apartamento 308G / SAINZ arquitetura (157 m²)Guardar no Meu ArchDaily
Apartamento 308G / SAINZ arquitetura. Foto: © Edgard Cesar"O projeto tira proveito do contexto [tombado pela UNESCO] para a criação das premissas iniciais, os materiais foram cuidadosamente escolhidos; lâmina de madeira freijó para a marcenaria, portas e painéis, concreto natural aparente da estrutura original do prédio, aço preto para a adega, estantes e ilha, a bancada da cozinha foi construída em Dekton, as persianas são em alumínio natural da época."Guardar no Meu ArchDaily
Planta - Apartamento 308G / SAINZ arquitetura Apartamento MV / Nildo José (200 m²)Guardar no Meu ArchDaily
Apartamento MV / Nildo José. Foto: © Fran Parente"Com piso em mármore, teto forrado de tauari e paredes de carvalho-americano, o destaque vai para o living integrado que ganha vida com a estante e o sofá desenhados especialmente para o local."Guardar no Meu ArchDaily
Planta - Apartamento MV / Nildo José Este artigo é parte dos Tópicos do ArchDaily: Resumo do ano . Mensalmente, exploramos um tema específico através de artigos, entrevistas, notícias e projetos. Saiba mais sobre os tópicos do ArchDaily . Como sempre, o ArchDaily está aberto a contribuições de nossos leitores; se você quiser enviar um artigo ou projeto, entre em contato .
客服
消息
收藏
下载
最近























