查看完整案例


收藏

下载
熹维室内设计办公地址的搬迁意味着新故事的开始,位于南京城墙下。观赏高楼古墙,光影交错间,金陵往事不断映入眼帘。再点一杯咖啡,仿佛时间都已静止,感受历史与时代的交汇。
The relocation of Shine-V Interior Design’s office address means the beginning of a new story, located under the Nanjing City Wall. Viewing the tall buildings and ancient walls, the past events of Jinling are constantly reflected in your eyes as light and shadow intertwine. With a cup of coffee, it is as if time has stood still, feeling the intersection of history and era.
▼门头,studio facade © ingallery
映入眼帘的是以点线面打造的门头,通过线条、色块、材质的组合搭配,整体外观充满理性与纯粹,宛如一幅构成主义平面画作。主体黑色门头与原建筑白色形成对比,左侧开窗位置为Coffee Shop对外窗口,精致的户外遮阳棚呈现全天光与影的变化。入口处Logo的设计既有利于宣传品牌形象,又具有导视作用,感应门满足多种应用场景。另一侧落地窗去除多余窗框,百叶帘的融入勾勒出颇具美感的光影。不止白天,夜晚也很温馨,上方设计灯带,柔美的灯光充分蔓延,晚风吹过惬意满满。咖啡吧外摆的休闲座椅随意又慵懒,不同的形式满足多样化的体验需求,探索空间的理想状态。
The first thing you see is the facade created with dots, lines and surfaces. Through the combination and matching of lines, color blocks and materials, the overall appearance is full of rationality and purity, just like a compositionalist plane painting. The black facade of the main body contrasts with the white color of the original building, and the window on the left side is the external window of the Coffee Shop, while the delicate outdoor awning presents the changes of light and shadow throughout the day. The design of the logo at the entrance not only helps to publicize the brand image, but also serves as a guide, and the induction door meets a variety of application scenarios. On the other side of the floor-to-ceiling windows, the excess window frames are removed, and the blinds outline the beautiful light and shadow. Not only during the day, the night is also cozy, above the design of the light strip, the soft light fully spread, the evening breeze blowing through very pleasant. The leisure seats outside the coffee bar are casual and lazy, different forms to meet the needs of diversified experience, and explore the ideal state of space.
▼宛如一幅构成主义平面画作的门头, the facade is just like a compositionalist plane painting © ingallery
▼Coffee Shop对外窗口, the external window of the Coffee Shop © ingallery
▼入口,entrance © ingallery
进入内部空间,依旧延续室外基调,黑色为咖啡区域的主色,也是与内部办公空间划分的重要参考。靠墙设卡座,配置两把熹维设计师款木凳,实用性满分。另一侧咖啡屋通过地面抬高和柜体围合让整体构造感更强,两把吧台椅线条利落,为顾客提供一处休闲安静的区域。
Into the interior space, still continue the outdoor tone, black for the main color of the coffee area, but also with the important reference of the internal office space division. Back against the wall, there is a card seat, equipped with two Shine-V designer models of wooden stools, highlighting the practicality. On the other side of the coffee house through the ground elevation and cabinet enclosure to make the overall sense of construction stronger, two bar stools with sharp lines, to provide customers with a quiet area for leisure.
▼咖啡区,coffee area © ingallery
▼咖啡区概览,coffee area overview © ingallery
▼柜体围合,cabinet enclosure © ingallery
办公空间整体以原木打造,自然的质感加入微水泥的细腻,创造简洁有力的艺术作品。开敞办公区去除多余装饰,将原木运用到淋漓尽致,顶面灯具延续构成感,与竖向支撑体和谐组合,简约的造型与严谨的结构兼具。左侧三间洽谈室通过地面抬高、整木包裹的处理形式增强层次感,而玻璃隔断和纸膜吊灯的融入让空间更加轻盈通透。顺着办公区向内,到达较私密的办公室,意味着内与外、私密与开敞的共生与界限。
The whole office space is made of logs, with natural texture and micro-cement finesse, creating a simple and powerful work of art. The open office area removes unnecessary decorations and uses logs to the fullest extent. The top lighting continues the sense of composition and combines harmoniously with the vertical support body, possessing simple modelling and rigorous structure. The three negotiation rooms on the left side are elevated and wrapped in wood to enhance the hierarchy, and the integration of glass partition and paper film chandelier makes the space lighter and more transparent. Following the office area inwards, the more private offices are reached, implying the symbiosis and boundaries between the inside and the outside, the private and the open.
▼自然质感的办公空间,office space with natural texture © ingallery
▼整体以原木打造加入微水泥的细腻,overall made of logs and micro-cement finesse © ingallery
楼梯设计延续构成主义特性,高与低、虚与实在此处达成统一,木质踏步与墙面微水泥碰撞出温暖的配色。楼梯下方设计一处休闲区,一盏壁灯温馨治愈,满足客户来访的等待需求。
The design of the staircase continues the compositionalist character, high and low, virtual and real to achieve unity here, wooden treads and wall micro-cement collision of warm colours. A relaxation area is designed under the staircase, with a wall lamp for warmth and healing, to meet the waiting needs of customers who come to the company for consultation.
▼楼梯下的休闲区, relaxation area under the staircase © ingallery
▼构成主义特性的楼梯,staircase with compositionalist character © ingallery
▼楼梯间,stairwell © ingallery
▼通向总监办公室的楼梯,staircase leading to the director’s office © ingallery
左右两侧的楼梯通向不同的空间,一侧为总监办公室,通过保留斜顶结构更有构成感,前端设洽谈区,皮质沙发加几把座椅,落地灯也为整体格调加分,内部设办公桌,玻璃台面加木质支撑展现自然材质与现代设计的融合美感,后方一排矮柜实用又美观,形成更加丰富的视觉感受。通过楼梯走向另一侧,开放式会议室使功能更加多样化,裸露的管道保留着空间原本的结构,新与旧达到平衡,同时为设计师打造环境舒适的单人办公室。远处楼梯可通往顶楼,空间利用率达到较高标准。
The left and right staircases lead to different spaces, one side for the director’s office, by retaining the sloping roof structure more sense of composition, the door first set up a negotiation area, leather sofas plus a few seats, floor lamps are also for the overall tone of the score, the space inside the desk, glass desktop plus wooden support to show the beauty of the fusion of natural materials and modern design, the rear row of short cabinets are practical and beautiful, to form a more enriched visual experience. On the other side of the staircase, an open plan meeting room allows for more versatility. Exposed pipework retains the original structure of the space, balancing the old with the new, while creating a comfortable single office for the designer. The staircase at the far end provides access to the top floor, making for a high utilisation of space.
▼总监办公室,director’s office © ingallery
▼二楼办公室,office on upper floor © ingallery
▼会议区,meeting area © ingallery
整体设计以“构成主义”为导向,归纳提炼,化繁为简,通过平衡、对比、层次等手法,赋予空间独特的美感
The overall design is guided by “Compositionalism”, summarising and refining, simplifying the complexity, and giving the space a unique sense of aesthetics through balance, contrast and hierarchy.
▼夜景,night view © ingallery
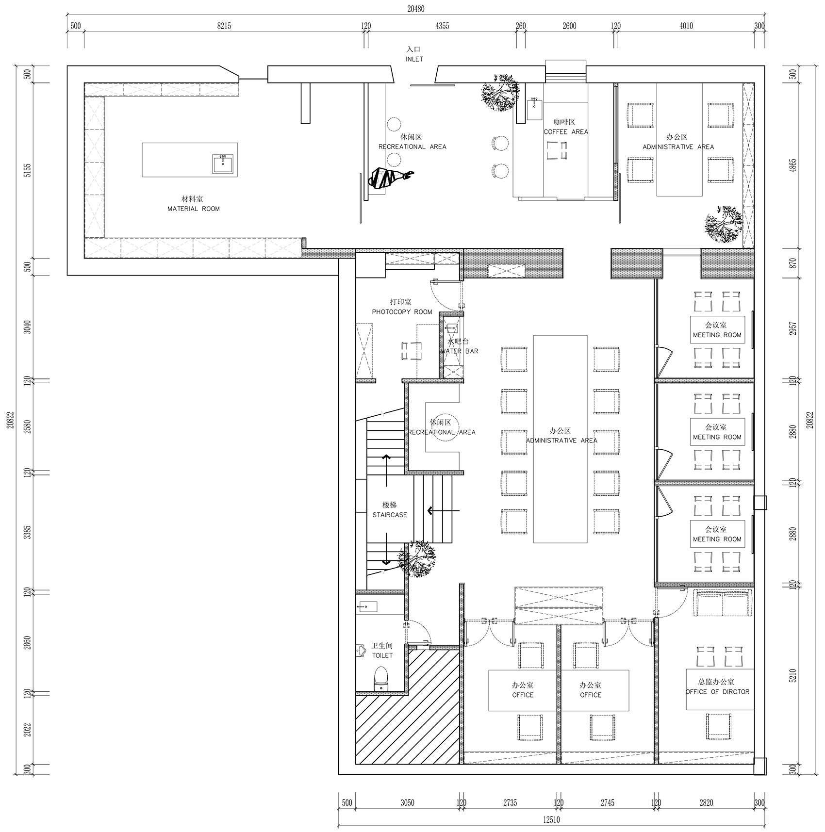
▼一层平面图,first floor plan © 熹维室内设计
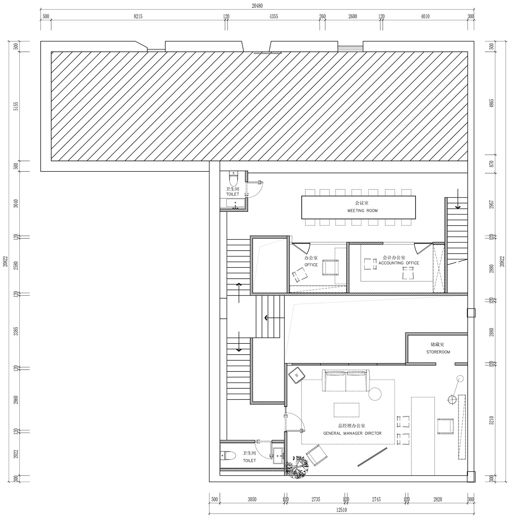
▼二层平面图,second floor plan © 熹维室内设计
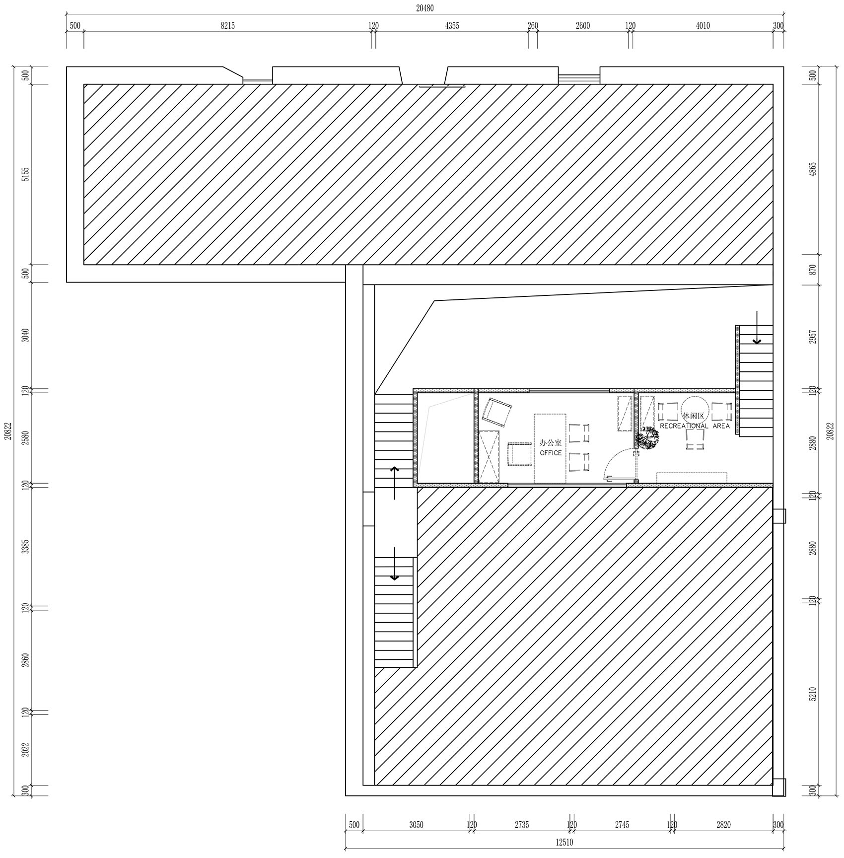
▼三层平面图,third floor plan © 熹维室内设计
客服
消息
收藏
下载
最近


























