查看完整案例


收藏

下载
时间在变,时代在改变,人也在改变,唯一不变的可能是变化本身。
展厅及办公楼的关键在于:将时尚设计理念和自然元素进行融合,创造出独有时尚感、高级感,回归简约后,在传统中找寻突破,品牌和代理商一道,形成共生。
ACME DESIGN
KIMS
01FACADE
壹 外观
体块,堆叠,线条,分割……
明快,干练,去掉纷乱以后简练而有序的线条,遗世独立,静待天明。
建筑如同书页一般缓缓展开的阵列,突破平面,对立而和谐。
P. 01
P. 02
稳定,是不少现代人所追求的。稳定的状态,无论刮风下雨,不改的颜色,不沾尘土,凝练,稳固,这正是岩板所带来的属性。
P. 03
P. 04
P. 05
展示,办公,这是运营中心两个主要的功能。以中央通道为界,原材料展厅和办公楼两侧分开,再通过空中廊道进行链接。
P. 06
P. 07
独立,链接,融合,人类的脚步总是在这样的节奏里往前迈进,品牌与客户的关系,也是如此。
P. 08
P. 09
P. 10
P. 11
02OFFICE SPACE
贰 办公
当展示脱离空间属性,办公的环境亦是绝佳的应用展示空间。
从原材料到落地,成品的空间更直观的表达产品价值,空间地面、墙面应用大量岩板。高效化展陈产品,举手投足之间皆是细节展示。
P. 12
P. 13
P. 14
P. 15
P. 16
了解一个人的方式,是与其共处一段时间,了解一份材质,便也是如此。
进入空间,便是进入自己的客厅,朝夕相处带来的好处是,举手投足之间皆是自若。
P. 17
P. 18
P. 19 人与空间相处越久,对产品的细节表达也就越有优势。客户便有足够的时间,对产品更深入了解。
P. 20
P. 21
几何的魅力,不止于 BOX 的变化,设计师尤其喜欢三角,锋利的几何美学。突破平面的限制,汇聚于一点,极致简化,你可以视他为俯瞰的山峦,也可以视它为向上的群鲸。
P. 22
P. 23
P. 24
切割、嵌套、组合,层叠的功能性空间像多种时空在这里交错。
P. 25
P. 26
P. 27
P. 28
P. 29
P. 30
接待,通道,休闲,茶室……多种空间彼此交融,高低,错落,形成丰富的空间关系。
P. 31
P. 32
P. 33
P. 34 设计师将岩板制为家具,如同静静安置在各个角落的艺术品,举手投足间的细腻和精致,与空间发生着奇妙的化学反应。
P. 35
P. 36
P. 37
在这个空间中,岩板的质感与空间的整体氛围相互交融。它们既是冷峻的岩石,又是温润的家具。
设计师在处理岩板的纹理、颜色和形状时,注重突显其独特之处,使之成为空间中一道亮丽的风景线。
P. 38
P. 39
P. 40
P. 41
通过角度和宽度的错层,控制墙面开口部分的视线,形成一道可穿越、可窥探的窥探视角。
把每一件置物当做一件雕塑,用更丰富的姿态,承接更丰富的光影,去掉复杂的应接不暇的材质变化之后,余留更加聚焦的状态,也适合更认真的去品读。
P. 42
P. 43
P. 44
办公区延续整体淡雅的主调,暖灰墙面搭配岩板,不同材质的相互拼接,演绎新旧的继承与发展。
P. 45
P. 46
P. 47
P. 48
P. 49 地面运用了深浅两色,将接待区与办公区区隔,大面积的绿色岩板铺贴,强调空间的不同属性,形成独特的节奏,一丝神秘、一丝通透。
P. 50
P. 51
P. 52
P. 53
P. 54
P. 55
• 03
EXHIBITION HALL
叁 展厅
秉持着“适度”原则,设计理念摒弃了过度追求炫目造型和自我表达。相反,将焦点重新聚焦在材料本身,通过对材料的精准运用,达到情感与功能的平衡。
P. 56
P. 57
P. 58
大面积的黑白体块堆叠,不规则中透出的雕塑感、秩序感。
构筑成生活的秀场,脱离惯性思维,岩板亦有更多的可能。
P. 59
P. 60
P. 61
通过回归材料本身,设计在形式和功能上达到了一种默契的平衡。
每一种材料都被精心挑选,以展现其独特之处,同时保持了适度的简约。
迎宾米奇白银限量版雕塑
来自法国的 Leblon Delienne 雕塑工作室
P. 62
P. 63
张占占 - PUPU 熊 P. 64
片墙与门洞的穿插,分隔空间,融合于空间中,形成虚实动线,把梦幻变得可视,
寻求形而上的诗学
以生活为矩
以艺术为名
P. 65
P. 66
在玛雅人的宗教观念中,金字塔是天和地的连接点,祭司通过巨大的石阶接近众神,以获得方向或者指引。而在展厅中,设计师将这个造型倒置,试图去打破“天地”空间的界限,以获得更多方向和可能性,使得Ⅰ层延申到Ⅱ层的不规则体块阶梯,与Ⅱ层入口天花板上的倒金字塔装置呼应,让楼层之间的空间语言更加统一且更具有延续性,将金字塔体块剥离,空间中错落穿插的体块,如同剥离后倒置的碎片。
P. 67
P. 68
P. 69
P. 70
可旋转的展架柜体,让路径上的参观者可以直接通过旋转自由切换展面。既满足了参观路线的灵活性,也增加了展品和人之间的互动感。实现空间多变化的联动,简单的满足不同视角产品的不同观感。
P. 71
P. 72
金属冲孔板的展示面设计便于更换,同时还可以根据套餐随意组合展面,为客户定制专属的岩板“穿搭指南”。
P. 73
P. 74
材料本身其实不具备风格属性,搭配组合后产生的化学反应、符号、意识形态,才形成了无数的风格和可能性。
P. 75
P. 76
在大空间中分隔出主通道,将品牌字母复刻到场景内,配合地面灯光,形成狭长通道,是画廊,秀场,亦或是生活的舞台。
岩板作为媒介,将世间美景层层剥离并置陈列,且待进入新的生活。
P. 77
P. 78
P. 79
在流行和风潮之间,保持独立的审美和可能性。让材料本身的魅力,归于空间当中,产生不同的表情和语言,诉说不同的故事,这可能是建筑材料真正生命力的所在。
时光荏苒,穿流不息,那些来往的客人,带走的产品,可能才是在这书页上记录下的篇章。
• 04
ANALYSIS
DIAGRAM
分析图
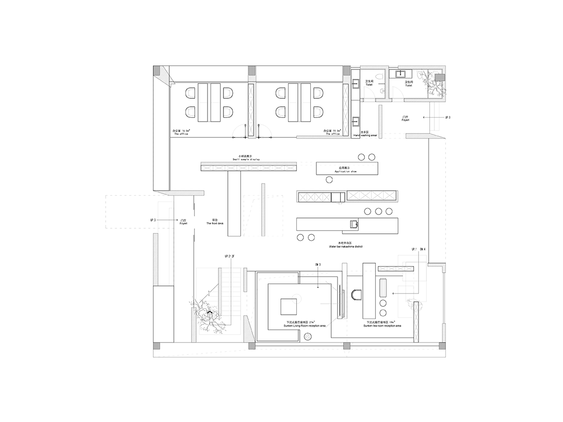
1F 2F 3F 平面图 P. 80
INFO
- 项目名称 -
简梵高岩板展厅-办公楼
- 设计机构 -
ACME 木及设计
- 主创设计 -
郑永杰 李于豪
- 设计团队 -
周舟 项荣骏 余新材
许安琪 董扬
- 灯光团队 -
云光智能灯光
- 项目面积 -
862㎡
- 项目摄影 -
阿 奇
DESIGNER
郑永杰
主创设计师
李于豪
主创设计师
客服
消息
收藏
下载
最近





























































































