查看完整案例


收藏

下载
两层通高的玻璃幕墙,镶嵌在曲面造型的UHPC(超高性能混凝土)立面框架中,描摹出紫禁城壮丽的气势。立面的弧形造型,借鉴了北京城古老而优美的屋顶轮廓线。设计团队精密把控每一个技术细节,确保其表面处理干净而流畅。
The grandeur of ancient Chinese Architecture is reflected in the facade by a 2-story high glass facade, framed by curved UHPC (Ultra High-Performance Concrete) facade panels. Taking inspiration from the city’s undulating rooflines, the facade panels replicate their graceful curves. Careful attention to technical details ensures a clean and smooth finish.
▼曲面造型的玻璃幕墙, curved glass facade © Kris Provoost
8.8米高的玻璃板,凸显了立面对于城市的开放性,将街道上的人群自然地引至室内。值得一提的是绿洲咖啡区内,设有一块大型的LED曲面屏幕,增添了视觉吸引力,也将室内外无缝衔接,交融贯通。UHPC幕墙板,遵循商场裙楼的屋檐轮廓,而中间的玻璃门,则在入口处形成了一个凹形空间,表现亲切的邀请姿态。
A focus on openness towards the city is evident by the use of 8.8-meter-high glass panels, drawing in passersby from the street. Inside the Oasis Cafe features a large LED curved screen, adding to the appeal and seamlessly connecting the exterior and interior. The UHPC panels trace the mall canopy’s contours, while the glass gently creates a concave pocket at the entrance, creating an inviting gesture.
▼入口处凹形空间,a concave pocket at the entrance © Kris Provoost
▼大型LED曲面屏幕让室内外无缝衔接,LED curved screen connecting the exterior and interior © Kris Provoost
作为旗舰店类型的项目,Superimpose叠术建筑的整体设计思路,旨在欢迎访客,避免繁琐或过分的装饰,专注于为华为打造一个高品质的互动空间,并在北京城市中心根植和推广数字生态系统,带来全新用户体验。
The design aims to welcome visitors without being overly elaborate or decorative and is focused on creating an optimized space for Huawei, fostering, and appreciating the digital ecosystem, in the center of Beijing.
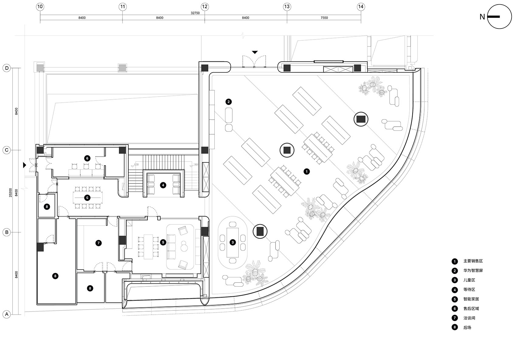
▼一层平面图,first floor plan © Superimpose Architecture
▼二层平面图,seconf floor plan © Superimpose Architecture
▼立面图,elevation © Superimpose Architecture
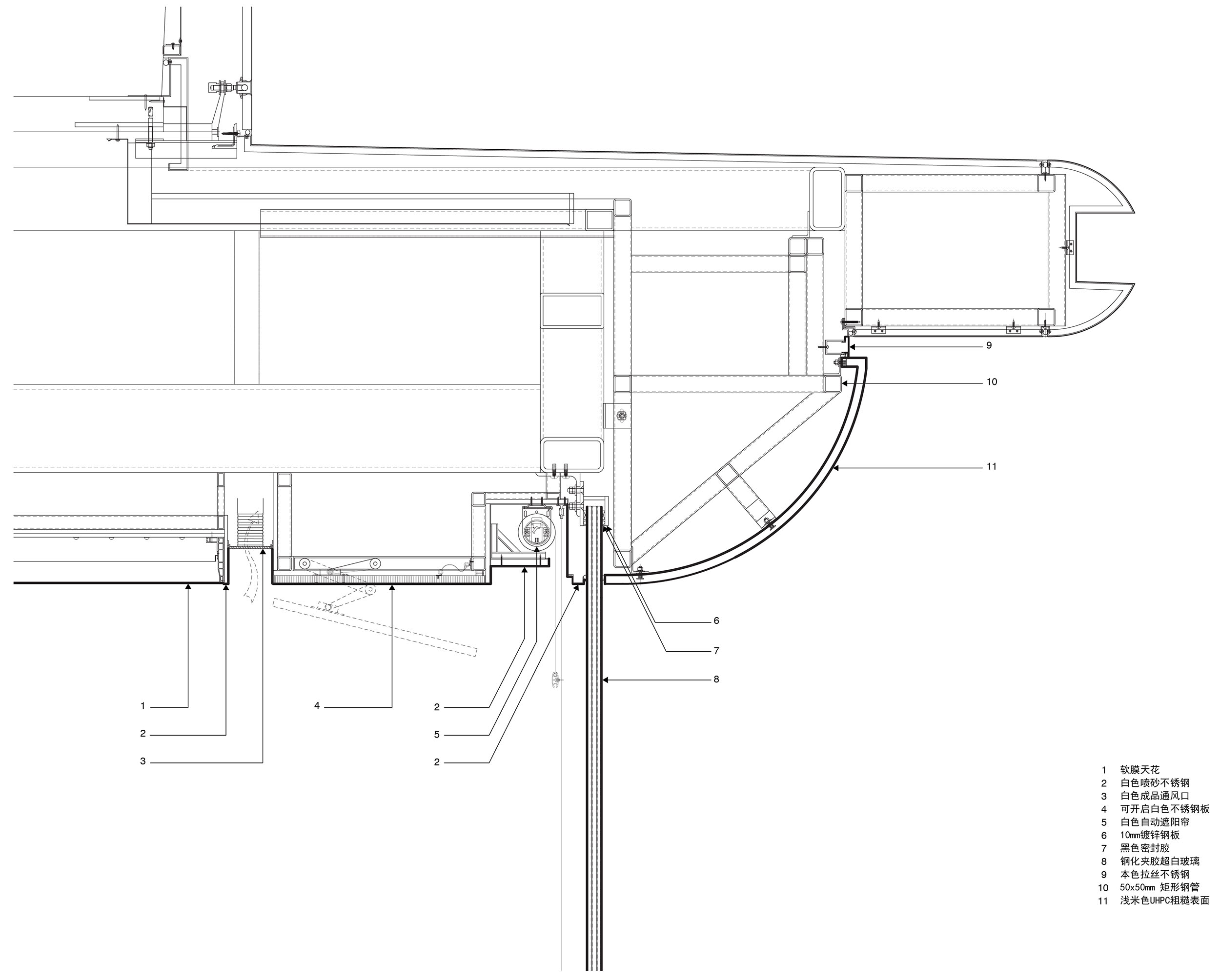
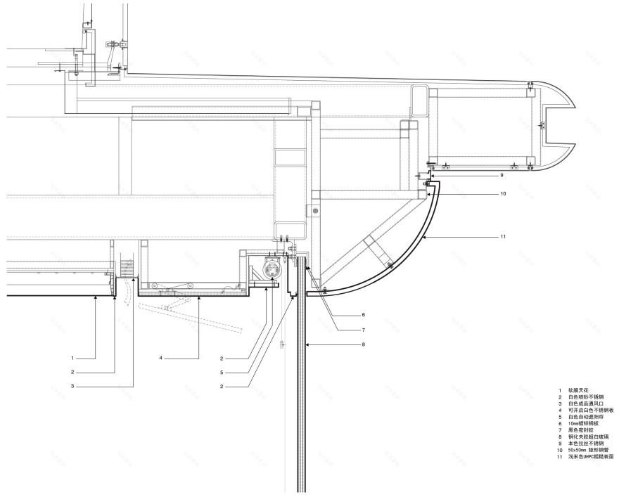
▼幕墙大样水平,detailed plan of facade © Superimpose Architecture
▼幕墙大样垂直,detailed section of facade © Superimpose Architecture
项目名称 / 华为旗舰店 · 北京王府井 项目业主 / 华为 项目位置 / 北京王府井步行街银泰in88大厦 项目类型 / 商业零售 设计范围 / 室内设计与立面设计 设计公司 / Superimpose 叠术建筑 主创设计 / 梁励德,Ben de Lange,Ruben Bergambagt 设计团队 / 梁励德,Ben de Lange,Ruben Bergambagt,JunWei Loh,许潇予,曲海波,王思捷 项目规模 / 1,233 m² 合作方 / 总承包商:上海信鸿实业(集团)有限公司,设计院:悉地(北京)国际建筑设计顾问有限公司,幕墙顾问:上海熙玛工程顾问有限公司,照明顾问:上海碧甫照明工程设计有限公司 完成日期 / 2024年1月 项目材料 / UHPC 超高性能混凝土(外立面),天然莱姆石材(室内墙面),水磨石(地面),软膜天花(顶面) 摄影 / Kris Provoost
Project Name / Huawei Flagship Store Beijing Client / Huawei Location / Wangfujing, Beijing, China Function / Retail Scope / Interior Design and Facade Design Design Company / Superimpose Architecture Directors / Carolyn Leung, Ben de Lange, Ruben Bergambagt Design Team / Carolyn Leung, Ben de Lange, Ruben Bergambagt, JunWei Loh, Xiaoyu Xu, Haibo Qu, Wang Sijie Size / 1,233 m² Collaborators / General Contractor: Shanghai Symbol Industrial Group Co., Ltd.- Local Architect LDI: CCDI Group (Beijing) – Façade Consultant: CIMA Façade – Lighting Consultant: Brandston Partnership Inc. Completion / January 2024 Materials / UHPC Facade Panels (Facade), Natural Limestone Panels (Interior walls), Terrazzo (Floor), Stretch Ceiling (Ceiling) Photographs / Kris Provoost
Superimpose叠术建筑应邀接受了在北京核心区域,为跨国科技公司华为,设计首家“北京旗舰店”的挑战。该店坐落于北京热闹繁华、享誉数百年的王府井步行街的十字地带,毗邻历史建筑故宫。作为传统与现代的交汇之地,王府井正在积极迎接国际化的时代潮流,而这片古老的、充满活力的商业区,不仅是中国文化底蕴的代表,更是国际化的窗口。
Superimpose took the challenge to design the first Beijing Flagship Store for the Chinese multinational technology corporation Huawei right in the city’s historic center. The store finds its home in Wangfujing, Beijing’s most prominent shopping avenue already for hundreds of years, situated near the ancient Forbidden City. The ancient and modern commercial district is not only a representative of traditional Chinese culture but also a window to internationalization.
▼店面概览,storefront overview © Kris Provoost
该店设有两层,占地超过1200平米,Superimpose叠术建筑从深厚悠久的地标古迹——例如故宫和长城中汲取灵感,将中国传统建筑元素、空间逻辑和构筑语言,巧妙地融入现代设计中,进行全新阐释。多年来,华为以“构建万物互联的智能世界”为愿景,不断扩展产品范围,广泛涵盖电子产品、智能设备等,并逐步打造出数字生态系统。此次北京旗舰店的设计,引入“城市客厅”的理念,尊重在地文化,同时为所在城市营造出一个全新的体验空间。
Superimpose has incorporated a contemporary reinterpretation of architectural elements reminiscent of ancient Beijing’s landmarks, such as the Forbidden City and the Great Wall, into the design. The store has two floors and covers an area of more than 1200 m². Throughout the years, Huawei has broadened its portfolio by incorporating an array of consumer electronics and diverse smart devices, all in alignment with their overarching vision of ‘Building a Fully Connected, Intelligent World’ — an ambitious mission encapsulated by their digital ecosystem. Superimpose integrated Huawei’s philosophy by providing a physical experiential place for this ecosystem.
▼传统与现代的交汇之地,an ancient and modern venue © Kris Provoost
▼从深厚悠久的地标古迹中汲取灵感, reinterpretation of ancient architectural elements © Kris Provoost
室内设计:中轴线与绿洲灵感 Interior
Superimpose叠术建筑秉持着“期待+1”的设计宗旨,全力投入这一挑战性项目。旗舰店整体采用连续的布局,灵感源自于紫禁城的尺度、对称性和不同空间类型。其中,展示厅位于整个店铺的中心,设计契合了人们对华为店面形象的期待——整洁、简约、细致入微的美感,致力于最大程度地展示产品,为访客带来沉浸式的空间体验。此外,设计团队结合“城市客厅”概念,创造了鼓励社区聚会、探索和互动的空间:绿洲咖啡区。
Superimpose embraced this project in adherence to their practice’s motto: ‘expectation + 1’; The central product showroom is crafted to align with the anticipated ambiance of a Huawei store — a space characterized by minimalism and a sharp aesthetic, all strategically oriented towards optimizing the display of products for a compelling and immersive experience for visitors. In addition, Superimpose integrated the concept of ‘an Urban Living Room’ where people can meet, explore and interact with spaces such as the ‘Urban Oasis Cafe’. The layout of the entire store has been carefully organized as a series of sequential spaces, inspired by the sequence of squares, scale variation, and symmetry found in ancient Chinese architecture.
▼展厅入口区域, entrance area of showroom © Kris Provoost
▼主要销售区, main sales area © Kris Provoost
▼二层等候区,second floor waiting area © Kris Provoost
▼儿童区,children zone © Kris Provoost
在原始建筑场地不对称的情况下,设计团队加入了一道厚重的天然莱姆石墙壁,将店面对称的划分为销售区、绿洲咖啡区,巧妙的与北京的城市脉络、中轴线、紫禁城均衡对称的布局相呼应,同样也是华为美学的延续。这个自然石材隔断墙,受到长城的启发,其清晰的墙面缝隙,是对长城砖墙的汲取与提炼。
The project’s original footprint lacks perfect symmetry and to provide a calm store layout Superimpose has incorporated a thick and solid wall materialised with natural limestone panels, dividing the store into a symmetrical main sales area and the themed Urban Oasis Cafe. Not only does it fit in with the axially symmetrical urban context of Beijing, but it is also a continuation of Huawei’s aesthetics. Drawing inspiration from the Great Wall, this robust divider wall features joints that mimic the appearance of a brick wall.
▼天然石材将空间划分为销售区和绿洲咖啡区,natural limestone wall divides the store into main sales area and Urban Oasis Cafe © Kris Provoost
▼绿洲咖啡区,Urban Oasis Cafe © Kris Provoost
绿洲咖啡区,旨在为访客提供一个互动体验场所,鼓励人们使用产品并融入“城市客厅”。咖啡区本质上是一个多功能空间,可用于举办活动、讲座或日常聚会。它在设计上采用木质天花、暖色微水泥地板和茂密的绿植墙,并放置了一座洞石咖啡吧台,呈现了一个自然、明亮温馨的韵律空间。咖啡区的楼梯设计独具匠心,踏步的另一端连接着一整块玻璃面板扶手,悬浮于郁郁葱葱的室内花园上方。这些细节,均是受到长城蜿蜒于北京苍翠山脉的景色启发。
The Urban Oasis Cafe serves visitors and encourages visitors to use the products, interact and immerse in the ‘Urban Living Room’. A travertine coffee bar was added to this space which can also be used as a gathering space and auditorium space for events and talks. The design of the cafe aims to create a welcoming atmosphere, achieved through the use of wooden ceiling boards, warm flooring materials, and the integration of lush green walls. The cafe also features stairs which leads visitors to the second floor. The stairs – partly made with glass steps – hoovering above an internal lush garden, inspired by the Great Wall meandering through Beijing’s green mountains.
▼自然、明亮温馨的韵律空间, a welcoming atmosphere © Kris Provoost
▼楼梯口, staircase © Kris Provoost
▼独具匠心的楼梯, staircase overview © Kris Provoost
立面设计:古老建筑的优美曲线 Facade
客服
消息
收藏
下载
最近
























