查看完整案例


收藏

下载
卑尔根美术、音乐和设计学院(KMD)的前身是卑尔根艺术与设计学院(KHiB)。该项目将原先分散的教学楼集中在同一个屋檐下,使校园经历了一场历史性的融合。这座建筑面积为14800平方米的新学院大楼如今已经成为卑尔根市第二大的文化建筑。
Replacing the former Bergen Academy of Art & Design (KHiB), the new Faculty of Fine Art, Music and Design (KMD) has undergone a historic fusion, assembling the previously scattered faculty buildings under one roof. This new 14,800m2 cross-disciplinary faculty is now the second largest cultural building in Bergen after the 1,500-seat Grieg Concert Hall.
▼项目概览,project overview ©Trond Isaksen, Statsbygg
建筑沿着两条主要的轴线布局:内部的轴线贯穿了学生和教职员的使用空间,外部的轴线则服务于公众。这两条轴线最终在1300平方米的大厅中交汇,这也是整个建筑最为突出的特征之一。作为公共空间和私人空间的过渡领域,多功能大厅为整个校园的学生、教授乃至访客带来了多样的交流机会,旨在鼓励所有使用者在空间中积极地联系、探索和学习。
The building is organized along two axes, one internal, dedicated to students and staff, and one external, open to the public. Under the KMD roof, these axes cross each other in the 1,300 m2 and 19,000 m3 project hall, one of the most prominent and dominant features of the building. It is here, in the transition zone between the public and the private sphere of the school, that the building offers exciting opportunities for students, professors, and visitors to connect, discover, and learn from one another. It is a multi-use, semi-climatic space running through the entire construction.
▼建筑外观,exterior view ©Tomasz Majewski Photography
©Trond Isaksen, Statsbygg
▼户外空间,outdoor space ©Tomasz Majewski Photography
▼从落地玻璃窗望向图书室,library seen through the glazed opening ©Trond Isaksen, Statsbygg
建筑的入口与宽阔的公共广场Kunstallmenningen相连接,大厅的玻璃立面与开阔的户外空间使建筑与城市中心形成对话,从而为KMD树立了友好而开放的形象。
The building’s entrance is connected to the large outdoor public plaza, Kunstallmenningen. The plaza, together with the large glass wall of the project hall, makes KMD an inviting and open building in dialogue with the city center of Bergen.
▼广场视角,view from the plaza ©Trond Isaksen, Statsbygg
▼立面细部,detailed view ©Trond Isaksen, Statsbygg
▼友好而开放的校园形象, an inviting and open campus ©Trond Isaksen, Statsbygg
稳固性与可塑性的并存是新学院大楼的一个重要特点。大厅及其周围分布的410个房间(包括礼堂、办公室和规模不一的工作室等)均以培养创造力为最终目标,且能够抵挡各种苛刻的使用和损耗——这在艺术院校中是不可避免的。
A prominent aspect of the KMD building is its robust and malleable characteristics. Both the project hall and the 410 rooms surrounding it, including auditoriums, offices, and workshops of various sizes, have been designed to both foster creativity and to withstand harsh treatment which is inevitable in an art school.
▼大厅,project hall ©Trond Isaksen, Statsbygg
▼二层开放空间,open space on the upper floor ©Tomasz Majewski Photography
▼办公空间,office ©Trond Isaksen, Statsbygg
▼休闲空间,seating area ©Trond Isaksen, Statsbygg
另外一个特征在于学校高度统一的使命感,这在大厅中体现得尤为明显:这里不仅仅是一个公共空间,更是供学生们自由发挥的艺术空间,能够用来举办各类活动和展览。大厅最高处的高度达到23米。一台Munck桥式起重机横跨整个空间,与曾经位于场地中的Munck起重机工厂形成了呼应。
Another important feature of the building is its unifying mission, manifested through the project hall. Very much a public space, as well as an artistic space for students, the project hall will host events and exhibitions. Rising to 23-meter-high at its tallest point, it is equipped with an original Munck bridge crane running its entire length, echoing the now demolished Sverre Munck’s crane factory which used to occupy the site.
▼一台Munck桥式起重机横跨整个空间,the project hall is equipped with an original Munck bridge crane running its entire length ©Tomasz Majewski Photography
▼一个供学生们自由发挥的艺术空间,an artistic space for students to create ©Tomasz Majewski Photography
学院大楼的建筑美学与集体化的艺术装置以及个人化的艺术表达均形成了良好的融合。这是一幢线条简洁、环保且耐用的建筑。松木地板、桦木饰面、未经加工的铝材、粗钢以及混凝土材料能够轻松地应对挪威西海岸的多雨气候,同时抵挡住高强度的使用、磨损和消耗。室内空间的材料和配色也保持了低调,旨在为工作室、学生工作区和各类其他空间提供中性、耐用且适宜的创作环境。
The KMD building’s aesthetic does not compete with its purpose of welcoming collective artistic installations and individual expression. It is a clean-cut, environmentally friendly and durable building focused on materials that will withstand the rainy climate of the Norwegian west coast and a high degree of rough use, wear, and tear. The material palette has a clear reference to the Norwegian coast, using well-established materials such as pine wood block flooring, birch veneer, raw aluminum, crude steel, and concrete. The interior palette is kept low key, providing studios, student work areas, and other spaces with a neutral and durable environment suitable for art and design work.
▼建筑整体呈现出简洁、环保且耐用的特征,a clean-cut, environmentally friendly and durable building ©Tomasz Majewski Photography
▼未经加工的铝材、粗钢以及混凝土材料能够抵挡住高强度的使用、磨损和消耗,the materials will withstand the rainy climate of the Norwegian west coast and a high degree of rough use, wear, and tear ©Trond Isaksen, Statsbygg
©Stephen Paolo Citrone
©Tomasz Majewski Photography
建筑的立面由耐海水腐蚀的粗铝材料组成,错落的表面犹如一幅富有韵律的拼图。这900个大小不一的预制铝单元以不同的深度从墙壁上微微凸出,偶尔有悬臂式的箱型窗户点缀其中。金属的表面随着西海岸的天气变化在不同的时节会展现出不同的质感。
The pre-fabricated raw aluminum elements that clad the building’s exterior compose a puzzle of depth, breadth and length. 900 varied sized seawater-durable crude aluminum elements are protruding from the wall at varying distances, only paused by large cantilevered box-shaped windows punctuating the rhythm of the aluminum surface. The metal cassettes shift according to the weather conditions of the west coast and reinforces the metallic effect of the aluminum.
▼立面由耐海水腐蚀的粗铝材料组成,the roubust facade consists of pre-fabricated raw aluminum elements ©Tomasz Majewski Photography
▼悬臂式的箱型窗户点缀着起伏的铝制立面,large cantilevered box-shaped windows punctuating the rhythm of the aluminum surface ©Tomasz Majewski Photography
▼立面细部,detailed view ©Tomasz Majewski Photography
©Tomasz Majewski Photography
在11.45英亩的场地中,共有9英亩被用作户外场地,包括绿化区、露天广场和停车场等。户外区域的大部分向公众开放,Kunstallmenningen广场与餐厅露台形成了自然的集会空间。餐厅露台的下方设有一个巨大的水箱,能够从4100平方米的屋顶中储存多余的水,每秒的蓄水量可达到90公升。最终这些水会被汇集到广场上500m³的入渗池中,从而有效地避免降雨和洪水对环境造成的压力。
Of the 11.45-acre Møllendal lot, a total of 9 acres are dedicated to outdoor areas, including green areas, open plazas, and parking. Large parts of the outdoor is accessible to the public, with the Kunstallmenningen plaza and the café terrace as natural meeting points. Underneath the café terrace, a huge tank with a capacity of capturing up to 90 liters of water per second stocks excess water from the 4,100m2 roof. The water is further lead into a 500m³ infiltration pool situated at the plaza. The pools will avoid strain from rainfall and flood on the encircling environment.
▼室外花园,outdoor garden ©Tomasz Majewski Photography
▼金属表面在一天当中呈现出不同质感,the metal cassettes shift according to the weather conditions of the west coast and reinforces the metallic effect of the aluminum ©Trond Isaksen, Statsbygg
▼夜景,night view ©Tomasz Majewski Photography
©Trond Isaksen, Statsbygg
▼景观平面图,landscape plan
▼场地平面图,site plan
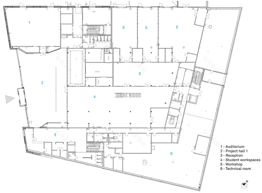
▼首层平面图,plan level 1
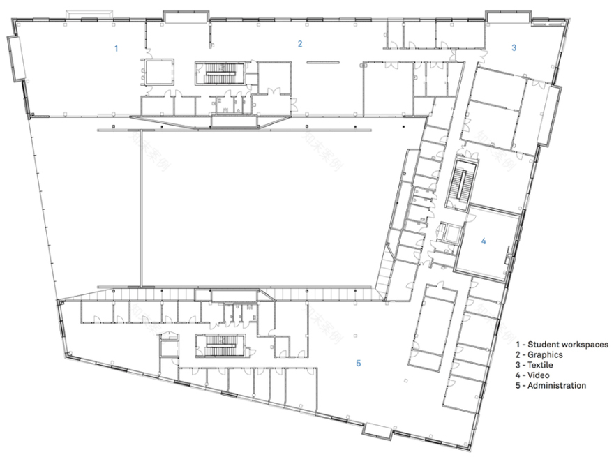
▼2层平面图,plan level 2
▼3层平面图,plan level 3
▼4层平面图,plan level 4
▼剖面图,section
Timeline: 2005 – 2017 Status: Completed Location: Bergen, Norway Typology: University building Size:14 800m2 Client: Statsbygg
客服
消息
收藏
下载
最近





































