查看完整案例


收藏

下载
项目名称:木美艺术生活馆
设计机构:北京一木装饰设计
设计团队:卢俊、李谢意
项目地点:浙江 . 杭州
项目摄影:LJ 金选民
流动的、静默的、衍生的,周而复始
FIRST FLOOR
SECOND FLOOR
这一场探秘有了令人满意的期许
放置建筑体量感的功能构造物
以其能量感注入家具展示的稳定性
THIRD FLOOR
设置建筑尺度感的中央地台
无言之间,直述上台签单
ANALYSIS DIAGRAM
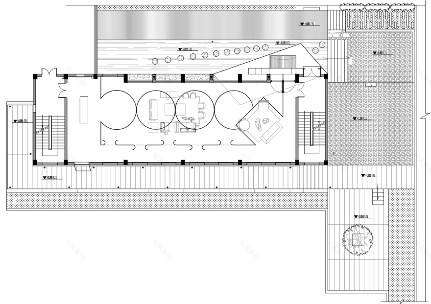
一层平面图 P. 47
二层平面图 P. 48
三层平面图 P. 49
客服
消息
收藏
下载
最近






















































