查看完整案例


收藏

下载
这是位于板桥25坪左右的新成屋,地理位置非常好交通也方便,在这样条件下还能有这样的市景景观也很不错。
- 原始平面 -
原始为2+1房,建商设定可以多一书房,但对屋主来说他们只需要两房,反而需要一个大储藏室,
所以我们在入口置入一道弧形的牆,视觉引导外也作为储藏室使用,客厅尽量保留大面开窗的优势。
- 概念图 -
概念上希望可以让整面落地窗的採光进到空间
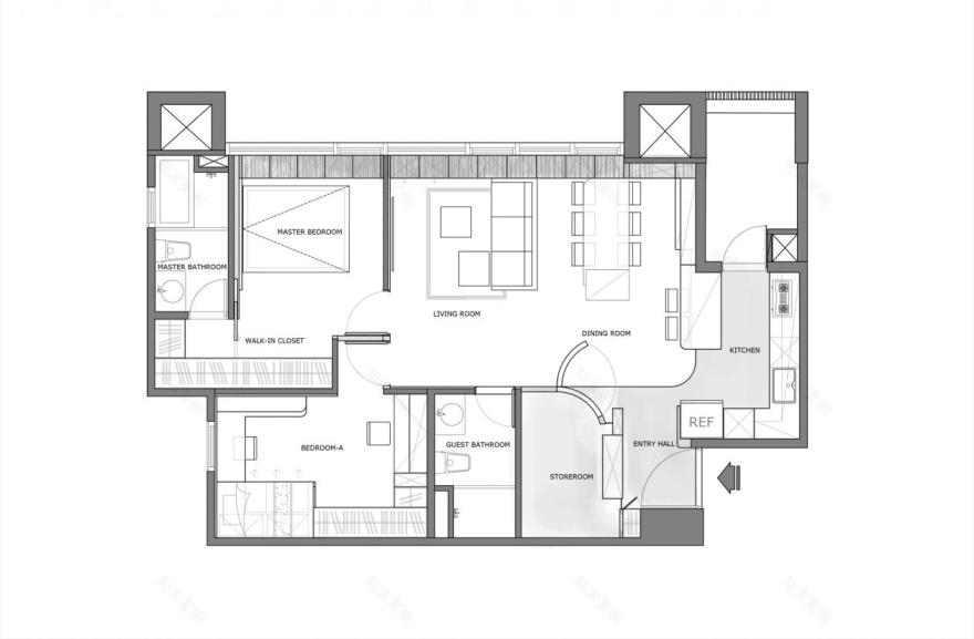
- 平面配置 -
保留公私领域的界定,也用地面材质界定玄关落尘区与厨房湿区,将厨房隔间拆除后用吧檯区隔,让厨房/餐厅/客厅串联在一起,最大化公共空间使用。
入口玄关柜脱开的缝隙暗示后方有个储藏室,用灰蓝色块作为端景视觉。
在黑白灰的空间中我们点缀了灰蓝色元素,让空间多一点层次与活泼感,入口落尘区地板延伸到厨房与储藏室。
通过玄关后,我们用地板材质以及柜体交错界定空间,海岛型木地板与大片雾面磁砖拼接,柜体用一个内凹缝隙与石材量体做为界定。
储藏室内我们用活动层架,可以随自己需求调整高度。
厨房虽然改成开放式,但还是用黑色块体界定区域,前方悬浮吧檯延伸到端景收纳。
在这个空间我们用了很多穿插与块体交叠的设计手法,增加空间的层次感与丰富度。
小宅裡也有整面落地窗的採光真的很讚
窗边的卧榻是亲朋好友来的沙发延伸,电视牆面整合后方两间房间,藉由不规则沟缝弱化隐藏门。
坪数不大把空间都留给客餐厅,毕竟房间只是睡觉。
小孩房-屋主喜欢粉粉的颜色
主卧室-简单乾淨就很舒服
虽然这间只有后阳台,屋主喜欢有点绿化与日式庭园感觉,利用扶手做一点美化也很讚,就算是工作阳台也可以很日式。
客服
消息
收藏
下载
最近





































