查看完整案例


收藏

下载
未/WAY Studio为白老虎屯餐厅制定了最新的空间改造,其中制定了寓意云南烧烤与酒香的顶面装置。“酒香不怕巷子深”这句传统谚语用来形容店的选址再合适不过了,只是在这个时代语境下酒香真的不怕巷子深么?答案是肯定的,好的食物与设计的组合一定能吸引到其忠实的粉丝。整体调性带有类似巴黎小酒馆式的轻松、优雅,希望为北京提供一种全新的、开放、有趣的用餐体验。
WAY Studio’s latest restaurant design in Beijing’s urban jungle — the new “White Tiger Village,” incorporates a ceiling installation symbolic of the scent from Yunnan-grill inspired cuisine paired with carefully curated natural wines floating outwards to reach pedestrians from near and far. “酒香不怕巷子深“ is a traditional Chinese saying expressing “good wine does not falter no matter how deep the alley”. Yet in this day and age of refined tastes, we believe it is still a challenge for good food and good design to reach its customers. The idea was to create something that echoed the finesse of Parisian bistros, light but classy, yet integrated with Beijing. The owners wanted to offer something open and fun to add to the fabric of Beijing’s existing dining experiences.
▼室内概览,overview of the interior space © Fernie Lai
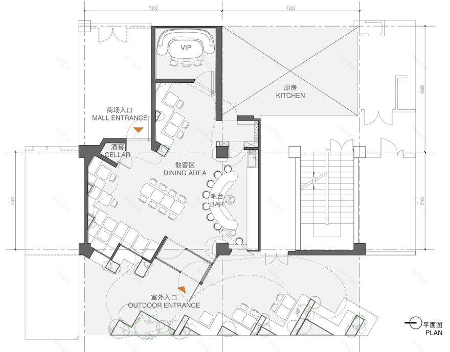
餐厅空间坐落于北京一改造商场的首层通道尽端,沿街面与道路之间又隔了茂密的绿化带,整体项目位置处于隐蔽的状态,为了能够克服展示面不足的因素,我们通过扭转的方式把原本横平竖直的柱网空间平面扭转了45度,让沿街立面有层次的呈锯齿状增大了沿街展示面以便迎接宾客。
▼45度空间扭转的平面布局,45 Degree Twist to the Original Plan © 未/WAY Studio
The new restaurant is located on the ground floor of a newly renovated building. Although situated at ground-level, its ex-terior entrance is the farthest from the street corner, on an elevated platform behind a strip of urban landscape, hidden deep behind scenic trees. This proved to be a challenge — to reach out. Therefore, WAY Studio devised a ceiling installation that reaches outward, visible from afar, on top of a 45 degree twist to the seating plan in order to “invite” and welcome guests from near and far.
▼沿街立面,Exterior View along the Street © Fernie Lai
▼门斗的设计保障了北方的冬季室内的舒适性 Double Doors for Better Climate Control from Beijing’s Harsher Weather © tff
室外外摆区域也随之扭转方向,利用城市绿化带的参天大树配合周边植物景观提供了一个大自然环抱的空间,走廊尽端设计了一个梯状观众席,为周末的小型演出或活动提供可能。
From the Patio, the entrance is also rotated and protrudes from the original facade like a rotated box, creating a visible entrance or shopfront that beckons and welcomes passersby. Making use of towering trees from the existing urban land-scape, staggered patio seats are a continuation from the overall seating plan with planters as backrests, creating a calm ambience surrounded by nature. At the end of the patio, stepped seating creates a small informal performance space, perfect for Saturday brunches, Friday night live band performances or other events
▼建筑立面与“云烟”装置,Building Elevation and Installation © tff
▼立面打开座位内外通透,Facade Opens Connecting Outside and Inside © tff
▼从窗口看向室内,Patio Window Seat from Interior © tff
旋转错位平面后形成的座椅布局提供了大量灰空间,无需增加屏风或墙壁也能营造出私密的体验感。
The rotated plan of staggered seats creates an illusion of private enclosures that offers an intimate dining experience with-out having to increase space, screens or walls.
▼室内空间概览,overview of the interior space © tff
▼窗边用餐区,Dining Area by the Window © tff
▼错落的座位,Staggered Seating © tff
在仅剩的原有墙面设置镜面,有效延伸小空间的视觉空间感。特别定制的桌子考虑到了灵活的座位安排需求,也可腾空用于活动或派对。
Mirrors on the original walls of the restaurant help extend the visual space beyond, allowing for a more open atmosphere. Customized table design takes into consideration flexible seating arrangements, which also allows the main floor area to be used for events or parties.
▼细部,Details © tff
与传统的鸡尾酒吧不同,半圆形的开放式吧台为自然酒师和用餐者提供了一个舒适的环境,使工作人员可以进出吧台并与客人自由交谈。 酒吧的石材氛围提供了洞穴般的私密氛围。 云烟装置在酒吧区葡萄酒展示架的石材缝隙中渗出,与粗砺的花岗岩背景墙相得益彰。
Different from traditional cocktail bars, a semi-circular open bar creates a cozy environment for “winetender” and diners, allowing staff to flow in and out of the bar and conversation freely with their guests. The bar design evokes a cavelike ambience perfect for intimacies. Ceiling installation drops low over the bar area, creating a visual arch over the wine display, its finesse a stark contrast to the rough granite backdrop.
▼看向酒吧吧台,View of the Natural Wine Bar © tff
在原有承重柱的周边嵌入粗砺的绿色石材,形成一个可供两到三人站立用餐的空间,吧台旁的小窗户为室外用餐区提供便利的同时也可为深夜聊天提供便利。
Two standing Bar tables are mounted on the columns bracing the bar area – the bar tops made of semi-polished green stone with rounded-off edges so as not to cut into customers’ arms, and its color harmonious with surrounding nature as well as the seat fabrics. A small window off the side of the bar allows for bar service into the patio area, as well as an open-ing for conversations going late into the night.
▼吧台区域采用自然石材作为背景墙,Natural Stone used as Bar Area Backsplash © tff
餐厅深处的暗门背后藏着一处隐秘的洞穴,良好的隔音效果非常适合私密聚会。包间内的镜面效果,在视觉上扩大了空间感受,与悬挂在天花板上的凸面镜一起为用餐过程增加乐趣。我们专门设计了半边的桌子来配合这种错觉。
A hidden door at the deep end of the restaurant holds a secret cave perfect for mysterious meetings. Two mirrors are intricately placed in the room. One, to extend the intimate space, so as not to seem claustrophobic, and the other, a convex mirror installation that hangs from the ceiling reflecting the entire table performance of the night. WAY designed half a side table specifically to complete the illusion.
▼洞穴VIP包间,Cave (VIP) Room © tff
在商场内侧入口的玻璃灯笼酒窖隐约透出精美的酒标作为招牌之用。在用餐选酒时,其内部可容纳两三人讨论选酒。
From the interior of the mall, a cozy wine cellar protrudes from the original surface like a glass lantern luring costumers to venture deeper into its tiger mouth. From inside the restaurant, the cellar also shimmers like a lantern in the corner, the ribbed glass accentuating the light from within whilst showcasing beautifully designed natural wine labels that decorate the shelves. The space holds two comfortably or three snuggly as one enters to select their poison for the night.
▼酒窖灯笼,Wine Cellar as Light Feature Anchor © tff
▼酒窖的用餐区,Dining Area by the Wine Cellar © 大小咖啡团队
云烟装置弥散在餐厅中,并延伸至室外天花,即便在很远的街角也能看到,成为餐厅的另一个招牌。“烟雾”由铜珠帘制成,在室外的部分随风飘逸,动态感代替了金属制品的硬质边界感。
▼“云烟”装置分析图,Smoke Installation Diagram © 未/WAY Studio
“The Smoke” permeates the restaurant, reaching from within out into the exterior, the wisps extending even beyond the original building canopy. It creates a mystic allure that can be seen even from the far street corner. The Smoke installation is made of bronze bead chains that hangs from rails off the ceiling, while the lightness of the screen sways in the breeze, eliminating any sense of borders.
▼“云烟”装置,Smoke Installation Detail © LU Photography
昼夜产生完全不同的视觉效果,白天的感受是粗糙和未经雕琢的粗砺感,随着夜幕降临“云烟”装置被照亮,产生漂浮感,墙面的粗砺感被照明设计精心雕琢,与悬浮于空中的金属珠营造出神秘的空间感。
Day and night, and two drastically different personalities surface. During the day, the cellar is dark, the concrete textured walls are lit by natural light and the entire space is rough and unrefined. As night approaches, the smoke is bottom lit, becoming the main attraction of the space; rough walls fade into the background and the fine beads floats in the air creating an atmospheric mystique.
▼“云烟”装置被照亮,The Smoke Installation is Illuminated © tff
▼平面图,Plan © 未/WAY Studio
▼顶面图,Reflected Ceiling Plan © 未/WAY Studio
▼剖图,Section © 未/WAY Studio
项目信息:© 未/WAY Studio 2021 功能:餐酒 客户:北京口思味餐饮公司 地址:中国北京市 面积:174 平米(含室外) 设计团队:郑涛,黎紫翎,洪勤哲,王亦鸣,张泽群,李旭东 灯光设计:景照明 摄影:Fernie Lai、高聪GaoCong、大小咖啡团队Big Small Coffee、LU Photography、張輝 WRIGHT
Credits and Data:© 未/WAY Studio 2021 Function:Restaurant & Wine Client:Cravings F&B Location:Beijing, P.R. China Area:174 sqm. (Incl. Patio Area) Design Team: Zheng Tao, Fernie Lai, Alan Hung, Mark Wang, Zhang ZeQun, Li XuDong, Lighting Design:J Studio Photography:Fernie Lai、高聪GaoCong、大小咖啡团队Big Small Coffee、LU Photography、張輝 WRIGHT
客服
消息
收藏
下载
最近
























