查看完整案例


收藏

下载
—A Free Form—
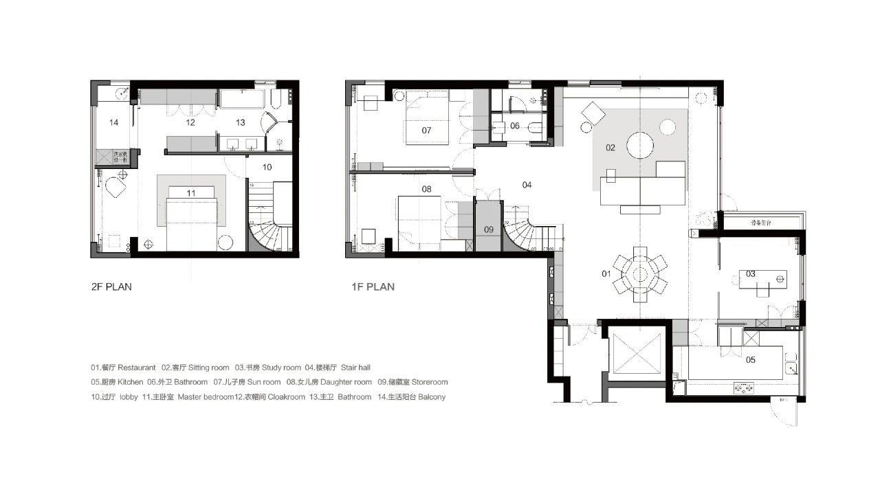
项目类型 | 居住空间
简单的四口之家,温文尔雅的男主与温柔善解人意的女主携可爱的一双儿女居住。
在繁华喧闹的市中心,期待跨过简单的容身之所,跃进理想生活的具象表达,
而空间的具象表达,应是绝对的自由与克制的感性。
亮的空间感,以自然的质感、自然的光给空间最真实的反馈。
在我们的设计中被特别的重视,从改变现有建筑的空间和动线关系入手,在最大程度上做到相融、相合。
简,不意味着舍弃空间本身作为一个容器的本质。自由的形态,不意味着毫无章法。
公区通过木饰面的延伸,解决从入户到公区的所有实用性的需求,将收纳空间与材质的过度完整结合。
半开放式书房与随意组合的客厅模式,小聚,创作,简单的生活不只有一种形态,动静分合自由切换,空间的情绪自由拟定。
把美学和生活的仪式感放大却细微的植入,于一茶一书之间。
在本案中,交错的梁位与完整的空调系统给吊顶造型造成了不小的考验,最终将原本的结构形态,与风口、照明系统转变为单独的体块,进行重组。
功能与实用并驱。扭转了原本的空间感,
这是一种极为巧妙的思考,让空间以一种柔和的状态展示在我们面前。
极简无套工艺,弱化了窗台与窗套的功能,与墙体持平,留缝的踢脚、吊顶小曲面的连接,柔化了本身硬朗的结构,卧室肌理明晰的艺术涂料,更是凝聚了冰冷材质的温度。
麻布、沉木,琉璃盏,大道极简,禅意肆意。
时间的形态最是规律,亦是毫无规律。
生活沉淀下来的,就是时间的状态。
ABOUT PROJECT
项目地点:浙江 · 瑞安
设计主创及团队:千上空间设计
设计时间:2019.10-2019.12
竣工时间:2021.4
ABOUT DESIGNER
于人、于事、于物,于千,
我们心胸广阔,有容乃大,
我们专注美学,积极向上;
千上设计继续肩负千盛国际原有的使命,以“坦诚,担当,专注,向上”为公司的核心价值观,以全新的设计公司定位,聚集一批对设计有理想有追求的优秀设计师,集众人之智,及时的捕捉市场流行元素,快速的通过信息传送及互动形式带动设计观念的不断进步,充分的尊重本土文化以及当地人们的生活习惯,专注空间美学创新;
在未来的发展道路上,千上依旧秉持严谨的职业态度,结合周边成熟的项目顾问资源系统,以专业的设计和卓越的服务来对待每一位业主,以解决并改善城市人居环境而努力践行;
客服
消息
收藏
下载
最近
















































