查看完整案例


收藏

下载
酒店建在曾经的足球场上,与南侧的山丘融为一体,建筑体量在绿意盈盈的景观环境中舒展延伸。
The hotel occupies part of the existing football pitch and seems to fit into the hill on the Southside. The volume spreads out amidst the greenery outside.
▼酒店鸟瞰,aerial view of the hotel ©FERNANDO GUERRA
▼建筑位于实验楼和山坡之间,building located between the laboratory building and the hills ©FERNANDO GUERRA
▼建筑外观,坐落在绿色景观之中,external view of the building spreading on the greenery landscape ©FERNANDO GUERRA
▼建筑与茂盛的树木对望,building communicating with the lavish trees ©FERNANDO GUERRA
▼与景观融合在一起的坡道和平台,ramps and platforms integrated with the landscape ©FERNANDO GUERRA
建筑呈U型,由两层组成。空间布局简单明了,卧室被设置在可以称为项目名片的两条长边上,相连处为服务区和社交空间。
With two stories and in the form of a “U”, the organization is simple: the bedrooms are located in the two almost identical legs and at their junction are the service areas and the social spaces.
▼设计草图,U型的建筑,design sketch of the U-shapced building ©Álvaro Siza
▼两条长边和中部的庭院,two legs of the building and the courtyard in between ©FERNANDO GUERRA
▼客房设在建筑的长边中,bedrooms located in the legs of the building ©FERNANDO GUERRA
▼建筑侧面入口,side entrance ©FERNANDO GUERRA
▼建筑与外部环境,building and the outside environment ©FERNANDO GUERRA
两层的房间相互反向布置,使得一层卧房与其上方的房间朝向不同,形成相对私密的室外使用空间,并且增加了立面的丰富性。
The organization or distribution of the rooms is inverted between floors, so that the ground floor bedroom has a different orientation to the one above, which gives privacy to the outside use and creates variety.
▼两层客房反向布置, the organization of the bedrooms is inverted between floors ©FERNANDO GUERRA
▼二层房间,rooms on the second floor ©FERNANDO GUERRA
▼每间客房带有较为私密的室外活动空间,each bedroom with a relatively private outdoor space ©FERNANDO GUERRA
▼坡道,ramps
建筑立面主要由砖、清水混凝土、以及木材和不锈钢制成的门窗框架组成。
Brick, exposed concrete and timber and stainless steel door and window frames characterize the exteriors.
▼酒店入口,main entrance of the hotel ©FERNANDO GUERRA
▼大堂,lobby ©FERNANDO GUERRA
▼楼梯间,staircase ©FERNANDO GUERRA
▼上层大堂,upper lobby ©FERNANDO GUERRA
▼落地窗分隔室内外空间,采用木制窗框,French window with wooden frames defining the space ©FERNANDO GUERRA
▼露台,terrace ©FERNANDO GUERRA
▼走廊,corridor ©FERNANDO GUERRA
▼客房,guest room ©FERNANDO GUERRA
▼夜景,night view ©FERNANDO GUERRA
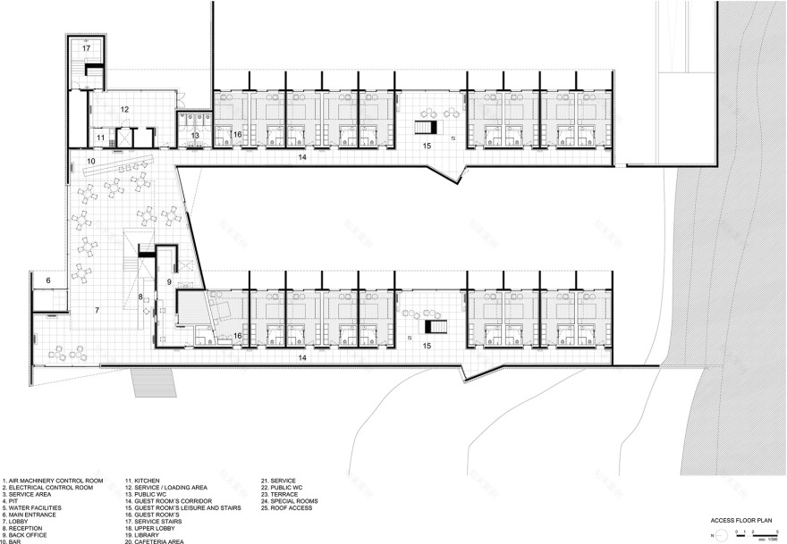
▼入口层平面图,access floor plan ©Álvaro Siza + Carlos Castanheira + Kim Jong Kyu
▼上层平面图,upper floor plan ©Álvaro Siza + Carlos Castanheira + Kim Jong Kyu
▼屋顶平面图,roof plan ©Álvaro Siza + Carlos Castanheira + Kim Jong Kyu
▼立面图,elevations ©Álvaro Siza + Carlos Castanheira + Kim Jong Kyu
▼剖面图,sections ©Álvaro Siza + Carlos Castanheira + Kim Jong Kyu
Design Period: 2007. 11 – 2008. 09 Office in Portugal: Carlos Castanheira & Clara Bastai, Lda. Coordinator: Pedro Carvalho, Im Yo Jin Collaborators: Eliana Sousa, João Figueiredo Office in Coreia: M.A.R.U. Metropolitan Architecture Research Unit Coordinator: Kim Soo Young Collaborators: Kim Hyunee, Park hee chan, Lee zoo hwa Construction area: 3,003㎡
客服
消息
收藏
下载
最近
























































































































































