查看完整案例


收藏

下载
Courtesy of Ahkamal Hakim
Ahkamal Hakim提供
“我想要一个舒适、自然、节能的住宅,”Yuwano先生在向Realrich Sjarief介绍Akanaka的简报时说。Akanaka位于800平方米的土地上,由19间有服务的卧室组成,两层楼有一个露天走廊。它位于南雅加达的克芒,是一个著名的艺术区。
"I want a residence where is comfortable, natural, and energy efficient," said Mr. Yuwono to Realrich Sjarief when he stated the brief of Akanaka. Akanaka is located on 800 sqm lands, consists 19 serviced bedrooms, in 2 levels building with an open-air corridor. It is in Kemang, South Jakarta, a precinct where is well known as the art district.
Courtesy of Ahkamal Hakim
Ahkamal Hakim提供
从正面看,赤坂4.5米悬挑的天篷遮挡了东西的太阳,同时提供了一个热带暴雨装置。紫红色的兵马俑正面模块300毫米x 300毫米由工匠在帕穆朗制造,提供了一个私人的,固体的空虚,一个表达的功能和美。栏杆是用钢铁制成的,上面涂着褐色的颜色,有缝隙,可以让交叉空气进入建筑物内。地面为混凝土,室外为草块,建筑内为1200 mm×1200 mm玻璃浇筑混凝土。
From the facade, Akanaka's 4.5 meters cantilevered canopy blocks the east-west sun while giving a tropical device for heavy rainfall. The orangish terracotta facade module 300 mm x 300 mm made by craftsmen at Pamulang gives a private, solid void, an expression which is functional and beauty. The balustrade is made from steel painted with brownish colour with gaps to allow cross air ventilation coming inside the building. The floor is concrete, one at the outdoor is grass block and the one inside the building is 1200 mm x 1200 mm cast concrete with glass grout.
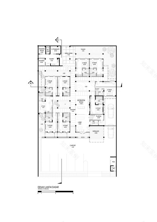
Floor Plan
在建筑中心引入线性和公共庭院,作为公共空间,雕塑花园提供空气叠加效应,自然阳光进入公共空间。房间的大小从16平方米、24平方米到35平方米不等,每个房间都提供交叉空气循环、功能性室内设计和为房间提供阳光的双面窗口。
The linear and communal courtyards are introduced at the centre of the building as a communal space, sculpture garden providing air stacking effect, and natural sunlight coming to the communal space. The size of the rooms varies from 16 sqm, 24 sqm, to 35 sqm which each of the room provide cross air circulations, functional interior design, and dual aspect window providing sunlight to the room.
Courtesy of Ahkamal Hakim
Ahkamal Hakim提供
在大楼里,有许多木头和混凝土的感觉。柚木被设计成3mm薄片,胶合在胶合板上,以增加重量,成本和茶木的可用性。模块200 x 1200 mm的工程柚木板是用不锈钢销悬挂的,这种施工技术允许系统在必要时进行预制、拆卸和维护。Akanaka是被动设计如何在简单的方法中执行的例子之一,它为建筑的空气和阳光打开了一面。
Inside the building, there is much feeling of wood and concrete. The teak wood was engineered by cut into 3mm thin slices, glued on top of plywood to increase lightness, cost, and availability of teakwood. The engineered teak wood panel in module 200 x 1200 mm is hung by stainless steel pin, this construction technique allows the system to be prefabricated, dismantled, maintained whenever it is necessary. Akanaka is one of the examples of how the passive design executed in simple method opening side for air and sunlight to the building.
Courtesy of Ahkamal Hakim
Ahkamal Hakim提供
Architects RAW Architecture
Location Tamansari, Indonesia
Category Houses
Architect in Charge Realrich Sjarief
Project Year 2014
Photographs Eric Dinardi
客服
消息
收藏
下载
最近






















