查看完整案例


收藏

下载
© Youngchae Park
杨泽公园
架构师提供的文本描述。这位 50 岁出头的男子经营着当地的一家企业,他在阿桑市一处风景秀丽的湖滨附近买了一块土地。当我们和他一起参观这个地点时,高大英俊的松树站在工地的四周。这是令人印象深刻的感觉,之间的水平线的横线在前面的土地和垂直线所形成的松树延伸到天空。
Text description provided by the architects. The client, in his early fifties gentleman running a local business, bought a land near a scenic lakeside in Asan city. When we visited the site with him, tall and handsome pine trees were standing around the lengthy perimeter of the site. It was impressive to feel the dramatic contrast between the horizontal line of the sweeping water in front of the land and the vertical lines formed by the pine trees stretching to the sky.
© Youngchae Park
杨泽公园
首先,我们把土地画在纸上。勾画土地是为了了解土地的特点。我们画的土地,景观,树木和草,阳光和阴影,通过这些活动,我们发现‘线’,构成房子的基础。
First of all, we drew the land on the paper. Sketching the land is to understand the characteristics of the land. We draw the land, landscape, trees and grass, sunshine and shadow, and through these activities we discover the ‘line’ which forms the foundation of the house.
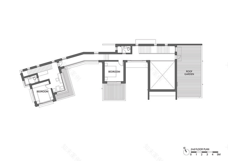
Ground Floor Plan
客户解释了他的生活和喜好。他想要一个为客人提供厨房和餐厅的开放空间,以及一个额外的客房。他想在他的独立音乐沙龙里不受干扰地听音乐。
The client explained his life and preferences. He wanted an open space for the kitchen and dining room for visitors, and an extra guestroom. And he wanted to listen to the music undisrupted in his separate music saloon. © Youngchae Park
杨泽公园
据我们所知,他的要求跟在我们的土地上。我们从与边界平行的水平线开始,以不同的功能将线上的空间连接起来。
We seated his requirements following the grain of land as we understood. We began with horizontal lines parallel to the boundary and joined the spaces on the line with diverse functions.
首先,我们画了一条与道路和水平行的长廊,每一个空间都有:厨房和客厅,家庭和客人的卧室,音乐室的附件。在每个房间之间,我们插入了一个室外空间 (Madang)。
First, we drew a long corridor parallel to the road and water, and attached each space; the kitchen and living room, bedroom for family and guests, and an annex for the music room. Between each room, we inserted an outdoor space (Madang). © Youngchae Park
杨泽公园
随着土地的流动,整体形式是轻微弯曲,根据形状沿道路。为了避免无感情的长墙,我们做了几个开口,使视觉连接和让风过去。
Following the flow of the land, the overall form is slightly bent according to the shape along the road. To avoid emotionless long wall, we made several openings for visual connection and to let wind pass.
© Youngchae Park
杨泽公园
在布纳罗蒂·米开朗基罗工作室的墙上,有一个短语“努拉死了。”要翻译拉丁语,它的意思是,“不要花一天不画一条线。”也许他想强调艺术家的基本美德。
On the wall of Buonarroti Michelangelo’s atelier, there was a phrase “Nulla dies sine linea.” To translate the Latin, it means, “Do not spend a day without drawing a line.” Maybe he wanted to emphasis the fundamental virtue of an artist. © Youngchae Park
杨泽公园
画一条线意味着画一幅素描,这将是艺术家不断练习基础知识的一种表现。建筑师也画了无数条线。
To draw a line means to draw a sketch, and this would be an expression of the artist to continually practice the basics constantly. Architects draw countless lines as well. © Youngchae Park
杨泽公园
有很多种线条。有时,一条线条比一幅非常如画的画更能表达精神。亚洲文化的线条与西方的不同。西方文化的线条是寻找一条理想路线的过程的一部分。他们画了无数条线来寻找真实的一条。亚洲文化的线条是一次又一次的巧合。这条线是立刻划出来的。当然,他们需要长时间的训练和自律才能划出一条特定的界线。
There are many kinds of lines. Sometimes a mere line expresses more spirit than a very picturesque drawing. Lines of Asian culture are unlike Western’s. Lines of Western culture are part of process to find an ideal line. They draw numerous lines to find the authentic one. The lines of Asian culture are one-time and coincidental. The line is drawn at once. Of course, they need a long training period and self-discipline to draw that one particular line.
First Floor Plan
一层平面图
在建筑中,线条必须负责。建筑线条不仅仅是纸上的痕迹。它们代表了空间之间的关系。不应该太近,也不应该太远。它应该是定期和非常客观的。
In architecture, lines have to be responsible. Architectural lines are not just traces on the paper. They represent the relationship between spaces. It should not be too close or too far. It should be regular and very objective.
© Youngchae Park
杨泽公园
就像树枝上杂乱无章的果实一样,这座建筑在每一个空间之间都有着连续的大面积和几个花园,使得建筑比它更长。这个水平伸展的形式创造了一个和谐的垂直线松树,以确认我们第一次画在土地上的线的意志。所以我们给这所房子命名为“线屋 (Casa Linea)”。
Like rambling fruits on the branch, this building has consecutive masses and several gardens between each space, making the building longer than it is. This horizontally stretched form creates a harmony with a vertical line of pine trees to confirm the will of the line we first drew on the land. So we named this house ‘The house of lines (casa linea)’.
杨泽公园
Architects studio_GAON
Location Dongjeong-ri, South Korea
Category Houses
Architect in Charge Hyoungnam Lim, Eunjoo Roh
Area 298.0 m2Project Year 2016
Photographs Youngchae Park
客服
消息
收藏
下载
最近













































