查看完整案例


收藏

下载
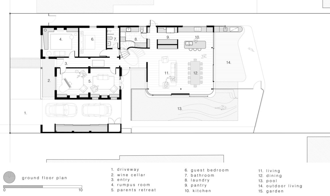
该项目位于澳大利亚新南威尔士州悉尼东郊的兰德威克。该项目包括一座1910年的单层别墅,四周环绕着一个游泳池。在这里,水是把房子的两个不同部分结合在一起的焦点。
这座古老的建筑真迷人。
该项目由建筑公司Luigi Rosselli建筑师在其建筑师Luigi Rosselli和Carl Rutherford的帮助下进行。
新的附属建筑有玻璃墙,通过一个大的木制露台把它与花园和游泳池连接起来。在室内,优雅的装饰,以现代的风格,创造了一个和平的空间,与家人和朋友共度时光的理想。
坚固的悬臂式一楼主卧室为室外露台提供遮荫和防雨罩,一个螺旋楼梯连接旧的和新的:一楼卧室和底层空间。
陈列馆外景红砖旧屋
在画廊中查看附件中的玻璃墙和池视图
在画廊中查看附件中的玻璃墙和池视图
在画廊中查看附件中的玻璃墙和池视图
在画廊中查看附件中的玻璃墙和池视图
在画廊中查看附件中的玻璃墙和池视图
在新的附件的画廊平台上可以看到木质地板。
老平房的画廊内景
老平房的画廊内景
画廊中的视图
画廊中的现代厨房木与白
画廊中的现代厨房木与白
画廊中的视图
画廊中的视图
廊内螺旋楼梯景观
廊内螺旋楼梯景观
廊内螺旋楼梯景观
画廊浴室的视野
查看附件的“画廊外部夜景”视图
查看附件的“画廊外部夜景”视图
查看附件的“画廊外部夜景”视图
画廊中的视图
画廊中的视图
画廊中的视图
画廊中的视图
画廊中的视图
画廊中的视图
keywords:Bathroom Bookshelf Brick Walls Contemporary Interior Design Decorative Accessory Dining Room Exposed Ceiling Beams Fireplace Floor Plans Glass Walls Hall and Entrance Kitchen Landscaping Lighting Living Room Rug Staircase Swimming Pool Terrace Wall Decor Wood Ceilings Wood Floors
关键词:浴室,书架,砖墙,现代室内设计,装饰附件,餐厅,暴露天花板,梁,壁炉,地板平面图,玻璃墙,厨房,照明,客厅,地毯,楼梯,游泳池,阳台,墙面装饰,木天花板,木地板
客服
消息
收藏
下载
最近





























