查看完整案例


收藏

下载
“橱柜装修”是2014年由“外观室内设计”设计的一个住宅项目。
它位于澳大利亚悉尼的克洛维利。
画廊中的视图
我们推荐这些项目,Luigi Rosselli建筑设计师在悉尼翻修一所住宅,澳大利亚,Carrera,by Design在澳大利亚悉尼创造了壮观的室内设计
画廊中的视图
画廊中的视图
画廊中的视图
画廊中的视图
画廊中的视图
画廊中的视图
画廊中的视图
画廊中的视图
画廊中的视图
画廊中的视图
画廊中的视图
画廊中的视图
画廊中的视图
通过内部设计进行立体化改造:
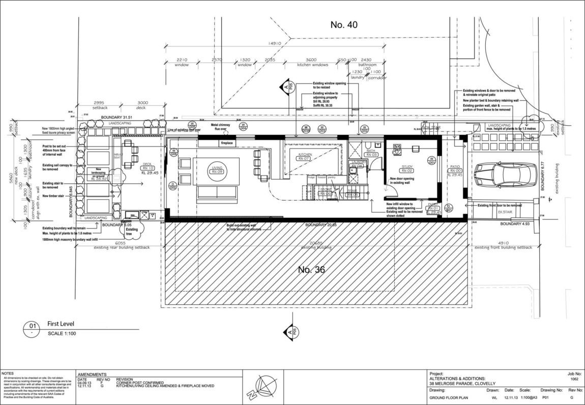
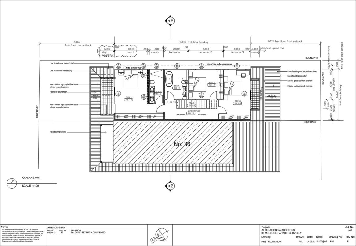
最初的家是一个非常黑暗和封闭的单层60年代半。该网站是很好的位置,以吸收周围的海滨景观和景观,但它是非常糟糕的规划,有限的室内/室外方向和洗衣房是唯一的房间有海景!我的客户希望我增加一个额外的水平,创造一个轻盈,宽敞的2层家庭住宅,最大限度地利用海洋景观,并容纳他们的家庭4人。他们还要求一个中性色调色板,具有海滨的感觉和耐用的材料和完成,以适应家庭生活。他们的建筑预算为60万美元。
在楼下,所有的内墙都被拆除,新的窗户和门的开口被插入到现有的底层外墙中,以便在保持隐私的同时创造尽可能多的光线。此外,当局亦加设一层凸起的木甲板,以方便室内/室外的朝向,并尽量利用海洋景观。在楼上,我设计了一个一楼的附加设施,其中包括三个大卧室、两个浴室以及前后阳台。要想把新的建筑和旧的建筑融合起来,确保住宅对相邻的房产表示同情,但又要现代化,这是相当有挑战性的。我想在楼下保留原来3米(10英尺)的天花板的高度,但不知何故,我想在一楼容纳水管和结构支撑。因此,与其做一个虚假的降低天花板,我形成了降低部分作为雕塑元素,以强调高度的地区,我们能够保留。
娜塔莉·安德森(Natalie Andersen)是外观设计集团(Look Design Group)的主管,这是一个基于悉尼的设计实践,致力于为每个客户的简报提供智能和个性化的创造性回应。娜塔莉是一名获得认可的建筑设计师和BDA会员。她的商业外观设计集团是高质量设计项目的同义词,其功能与美学相匹配。二十年的卓越和一致的结果使娜塔莉参与了众多的建筑和翻新项目,其中大部分在悉尼的下北岸和东郊。娜塔莉的主要目标是确保每一个客户都能得到一套令人兴奋的建筑或翻新体验。这是通过提供必要的支持,建筑文件和创新的设计解决方案,以有效地实现她的客户的所有最好的想法。提供个性化的个人设计服务,项目简介从厨房和浴室等小型翻新到500万美元住宅的完整设计和文档。
拥有一个非常黑暗和封闭的单层1960年的半招募娜塔莉安徒生的外观设计集团,把他们的阴郁的房子变成一个宽敞,明亮和开放的家庭住宅。该网站的位置很好地吸收了周围的海滨景观和景观,但它是非常糟糕的规划,有限的室内/室外方向,洗衣房是唯一的房间有海景。楼下所有的内墙被拆除,新的窗户和门的开口被插入,以创造尽可能多的光,同时保持隐私。新的厨房,在餐饮和生活区,所有的流动,创造感官,现代,开放式的生活空间。增加了一个凸起的木材甲板,以方便室内/室外定向和最大限度地利用海洋景观。一楼的附加设施,包括三间大卧室、两间浴室及前后阳台。“
画廊中的视图
画廊中的视图
外观室内设计提供的照片
keywords:Australia Bathroom Bedroom Clovelly Contemporary Interior Design Decorative Accessory Dining Room Fireplace Floor Plans Kitchen Lighting Living Room Look Interior Design Remodeling Rug Skylights Staircase Submitted Sydney Terrace Wall Decor Wood Floors Wood Walls
关键词:澳大利亚浴室,卧室,衣柜,现代室内设计,装饰附件,餐厅,壁炉,地板设计,厨房照明,客厅外观,室内设计,重塑地毯,天窗,楼梯,提交悉尼平台,墙壁装饰,木地板,木墙
客服
消息
收藏
下载
最近


















