查看完整案例


收藏

下载

翻译
You know when Redfern, Sydney’s inner city suburb, has hit it’s straps because the cool kids start moving in and creating spaces that leave you wide eyed and drooling. Think of the sort of transformation the Meat Packing District underwent in Manhattan in the late 90’s and you’ll understand the sortof cultural shift Redfern is experiencing. The area once side stepped by the well heeled is now brimming with hipsters spilling out of the wine bars and cool restaurants. And now Redfern can add this completely sublime yoga studio into the mix.
Karen Abernethy in collaboration with Louisa Macleod are the masterminds behind Humming Puppy Yoga Studio, aptly named after the humming practice used in yoga. The double height, Victorian building has undergone a conversion like no other. Who even knew yoga studios could look this good? If this isn’t enough to get you dusting off your yoga mat it’s hard to know what will.
It’s not like we haven’t seen exposed ceilings and whitewashed walls before. And it’s not like we haven’t seen a decent warehouse conversion. So it’s hard to put your finger on what exactly makes this yoga studio so damn gorgeous. Perhaps it’s the way they decided to put the Victorian building first. Everything else was to designed to honour the architecture of the original space. Abernethy wanted to make the base building the ‘hero’ of this design. “This was achieved in two ways. Firstly, wherever possible, we have avoided making the new and old surfaces collide, so that the new elements, wherever possible, are like crisp ‘inserts’, distinct and separate from the old,” noted the architect.
The question is, which floor to rave about the most? Individually each level is striking. Collectively it just radiates.
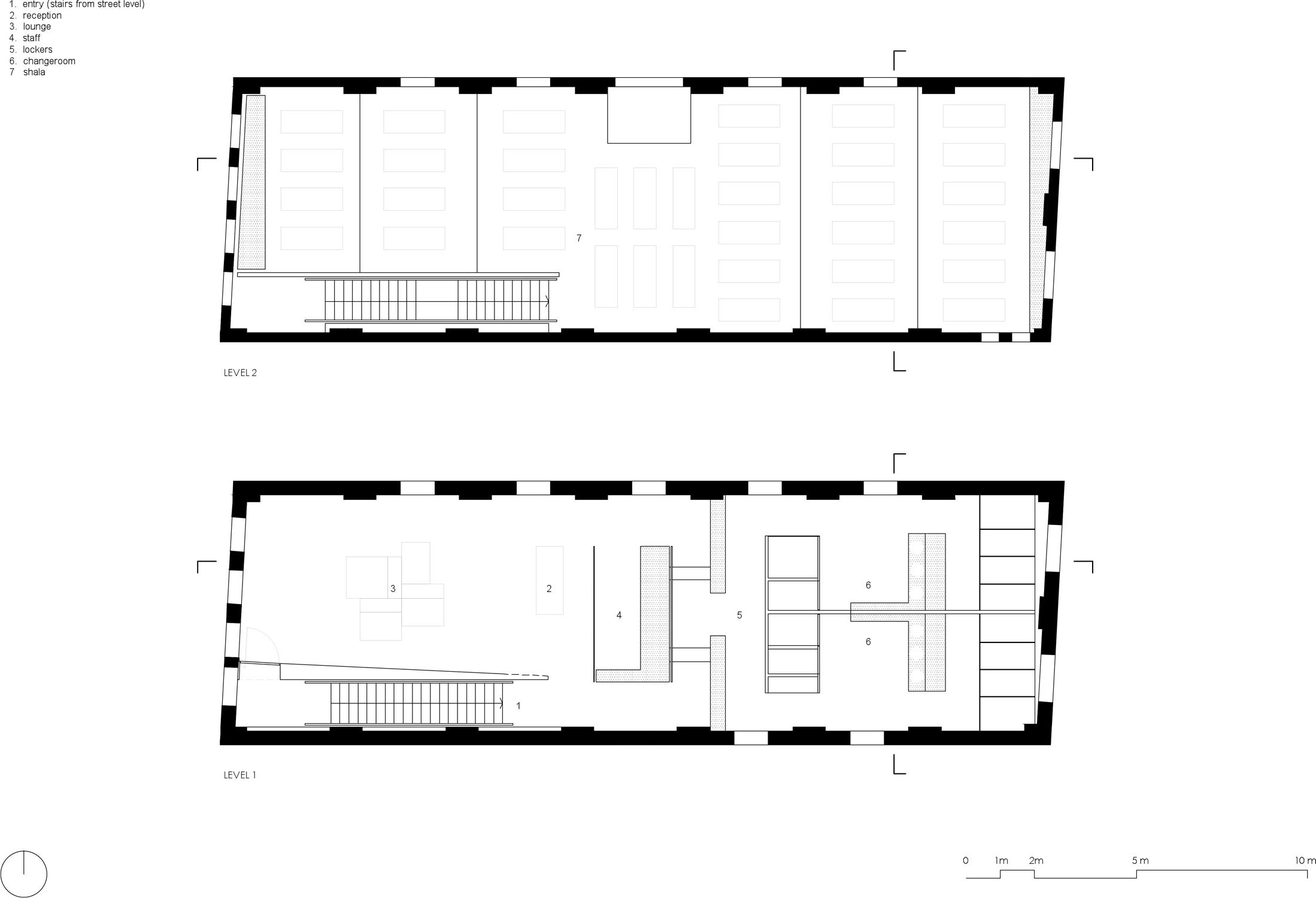
But for the sake of some sort of structure and less random salivating, let’s start at the beginning. The entrance. They wanted the experience of going into the two story industrial building to be immersive. And to do that they made the experience inside notably different from the street outside.
“The design of the Humming Puppy studios is based on an immersive experience that starts from the moment when you walk in the front door,” she said. “The anonymity from the street is intentional, so that the first step you take within the space has an immersive effect.”
You enter directly into a stairwell, not a standard design approach but in this case, one with a philosophy behind it. It acts as the first transitionary element allowing for a period of adjustment from the busy Redfern streets into the new space. It’s intentionally neutral here to be calming.
It’s once you pop out onto the first floor that you get gobsmacked. A spectacular, angled screen, lined with a dichroic filter separates the zones between the lounge area and change areas. It shimmers and changes colour as you move around it, reflecting the original exposed ceilings.
It is all so beautifully detailed. Predominantly light and white, rather than feeling cavernous and cold as spaces with soaring ceilings can, instead it is tranquil, beautiful and restive. Long white, hanging curtains frame the elegantly high windows. Whitewashed bricks soar up towards the white powdercoated beams and original timber rafters. Modern lighting, grey glass globes suspended from black steel lend the space a sculptural element.
If you didn’t ever get to the yoga class it might be because you couldn’t bring yourself to leave the bathrooms. A sanctuary in and of themselves. There is simply no space in this design that isn’t worthy of falling in love with. Differently hued wall tiles behind the vanities were selected to subtly reference the varying textures of the existing walls. The split circular angled mirrors above the vanities just another touch of detail that brings about the feeling of refinement.
On the top floor we enter the Shala, the yoga room. There’s nothing quite like sculptural, white angled wall piercing through the levels of a building to catch your attention. On this level they have consciously applied colour change to the space. That is, we go from white to black. Not simply a colour palette choice, it was done to promote a deeper experience in the yoga practice.
It’s a dramatic effect, all this blackness. The black plywood floor and black ceilings are simple but aesthetically stunning. Then there’s the sensory deprivation induced from reducing the light and sound designed to enhance the other senses creating a more profound yoga experience. “At Humming Puppy Sydney the materials and fitting were selected based on a conceptual framework about light and reflection – fundamental elements of spirituality,” said Abernethy.
And it does feel spiritual here. It certainly feels like you might have died and gone to designer’s heaven. One can only imagine that with such a yoga studio to offer sanctuary and to reconnect to something deeper, the local wine bars may find themselves short a few more hipsters.
[Images courtesy of Karen Abernethy. Photography by Katherine Lu.]
客服
消息
收藏
下载
最近

















