查看完整案例


收藏

下载
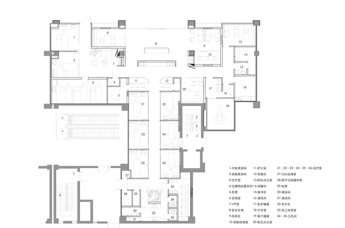
CALIFORNIA BEAUTY选址杭州西湖畔,450平米的空间涵盖10余间治疗室、1间手术室、VIP专区、咨询室、休息室、药房、医生办公室、消毒间、无菌间等功能区。诊所外立面以仿不锈钢铝板包覆整个门廊,铺垫极简、扁平化的设计基底;双侧采用对称手法,以大理石墙面衬托品牌Logo,搭配科技感十足的立体LED灯光装置,突出品牌精尖、专研的形象特征。
相对沉稳的暗色调外立面,为明朗的室内区域埋下欲扬先抑的伏笔。穿过感应门,简洁的接待台落于眼前,周围的房间被隐藏于“镜面盒子”中,光幕天花的设计大大降低了环境里的眩光机率,营造出带有秩序感的未来派风格。中心接待台通过大理石+弧形玻璃的双层设计,呈现虚实对比的视觉效果,一高一低两个台面,充分考虑了访客及工作人员站立、落坐时的不同使用场景。整个前厅在光与镜的交错下无限放大,预示着一些改变即将到来。
走廊中光影交错,射线般的灯带,勾勒出一个不停迭代的时空,如同先进的医美科技正在不断的突破精准度,拓宽人类寻求美的边界。走廊尽头,葱翠的植物被装进一个巨大的玻璃房中,仿佛实验室中的培养皿,见证新生与蜕变的过程。
位于一旁的洗手间、淋浴室也将这种自然感延伸,通过大量的天然石材,表现硬朗利落却又不过分疏远的空间氛围。
高水准的医美手术可精确至毫米,定制化设计也同样适用。诊所中,UNFOLDESIGN聿几空间将所有门扇框架限定在18mm厚,超薄设计让门扇在保持稳固的同时,显得更加轻盈精致。此外,全室内隐蔽槽内风管设计、咨询室中的一体式金属办公桌、院长室中划过墙面的折线式超细灯带、以及淋浴区里可抽拉的储物座椅等,都在标准范围内做到极致简化。这些设计元素在诊所中相辅相成,让人们从感官上获得一种平衡,恰到好处的表达了“与生俱来”和“医疗修护”之间的得当取舍。
项目名称:CALIFORNIA BEAUTY国际医疗美容诊所
项目位置:杭州
项目业主:CALIFORNIA BEAUTY
项目类型:医疗诊所
设计总监:Joseph Chieng, Queena Qiao
设计团队:Joseph Chieng, Queena Qiao, Chris Yao, Andy Liu, Dereck Zhang
项目管理:UNFOLDESIGN聿几空间
项目施工:UNFOLDESIGN聿几空间
灯光顾问:Studio Illumine
项目面积:约450 m²
设计周期:2020.10-2020.11
施工周期:2020.11-2021.02
空间主材:仿不锈钢铝板、电镀玻璃、天然大理石、可调光LED、烤漆、进口乳胶漆、软膜光幕
客服
消息
收藏
下载
最近
























