查看完整案例


收藏

下载
△实验室主要内部空间
△功能分区图
△分层解析爆炸图「初见场地的印象」初到场地,印象最深的不是空间本身,而是破败厂房建筑旁仅隔一道围墙的地铁高架线路。每隔一两分钟,就会有列车快速从高架线上开过,发出巨大的轰鸣声。时刻提醒着我们所处城市的国际化与现代性。而在场地南侧,拆除的市场空地上留下的整块整齐的室内地面铺装,如史前遗迹般的隐喻着飞速的城市更新进程,也标记出某种历史的坐标网格。过去、当下和未来在此处如地质剖面一般呈现在眼前。这种现场的感受强烈而清晰,再次审视这个空间未来将承载的主要功能——木艺学习,作为一门长期隐匿于现代都市日常生活之外的技艺,正像某种失落的遗迹,需要在这里被重新挖掘出来。
△改造前室内外环境「入口的“廊桥”」进入主体空间之前是一道狭长高耸的入口廊道,我们在走廊的木质墙壁上连续设置了展示柜和液晶显示器,并在大门入口的显示器下预留了一个家具展位。廊道的另一端正对接待区的前台,一组传统廊桥的贯木拱桥的木构件组合编织在头顶高处,并在入口大门处露出部分侧面,隐喻着传统匠艺的苏醒。
△入口
△入口廊道
△抬头看现代“廊桥”「考古挖掘现场」
基于以上的思考,我们在这个5米高的厂房空间里,植入了一个“考古挖掘现场”。将主要的木艺操作空间做下沉处理,隐藏在入口的墙内,并用纯净的水磨石矮墙围合,创造出隐蔽的神秘空间。“考古现场”上部为巨大的倾斜金属网顶面,两层高的日光从地铁高架线一侧撒向这个充满仪式感的空间。在由一个依附于入口墙内的直跑楼梯到达的二层的连廊里,人们可以靠着栏杆,如同在考古挖掘工地现场的跑马廊上一样,俯视整个操作展示区,也可以在廊道内靠窗的木工桌边操作、阅读和聊天。
△两层高的“考古挖掘现场”当这个最主要的空间形态被确定下来,接下来需要操作的就是其他空间和主要空间的界面状态。我们使用了黑色氟碳喷涂的铁板,橡木和白色涂料三种材料。这些最常用的材料,与下沉的水磨石操作展示区地面及矮墙,以及顶部的黑色金属网斜吊顶构成了和谐的材料、色彩主题。
△采用黑色氟碳喷涂的铁板,橡木和白色涂料三种材料
「漂浮的结构」
为了强化二层的漂浮感,设计中新增夹层的结构如何承重就显得尤其重要。整个一圈二层只有五根立柱落地,且其中的两根被藏在了隔墙内部,内圈的主梁由立柱抬起,密肋次梁从主梁伸向原有建筑的立面墙体,并以加固的方式与墙体连接。原有外墙与五根立柱共同完成二层的受力,整个空间,特别是沿主体操作区的一周是非常通透的。
△加建结构示意图
△沿主要空间一圈的漂浮感
△二层的跑马廊
△通透的的主体操作区
「斜顶上的空间规划」
结合主体空间的斜向金属网吊顶,我们在二楼的相应教室中设置了台阶式的台地。这些台地利用了斜屋顶上方的三角空间,争取了更多的教室面积。我们也将空调等设备都隐蔽在斜吊顶与原平楼板之间的空间中,避免了管线和空调设备对于纯粹空间界面的侵入。
△二楼斜顶上的展台与阶梯课室
△二楼大课室(可分可合)中可以看见地铁高架线(窗中光带为地铁驶过)「两个黑盒子」
另外,我们在整体流线中还设置了两个金属黑盒子。一个是从一层上二层的旋转楼梯,楼梯的顶部做法呼应了主体空间的斜吊顶。另一个是附房中连接户内外的水吧区,它一半在室内,构成了附房区域的形式主题,另一半在户外,我们在黑盒子与院落间的门内设置了一个天窗,窗下为一单人座龛。学做木工的休息时段,可以在这里享受安静的独处时光。
△两个盒子
△黑盒子 – 水吧区
△半室内半室外的水吧区
△黑盒子内天窗下的一人座龛
△黑盒子 – 楼梯间
△楼梯的顶部做法呼应了主体空间的斜吊顶
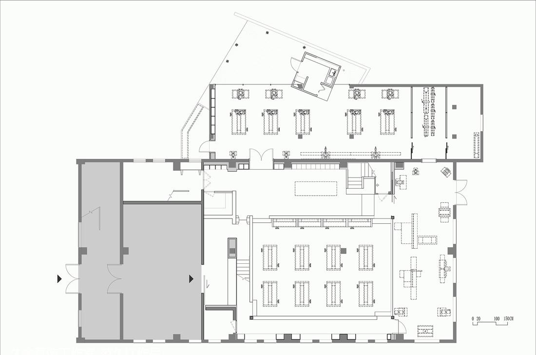
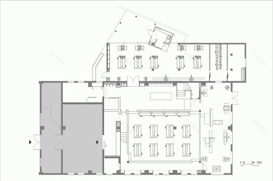
△一层平面图
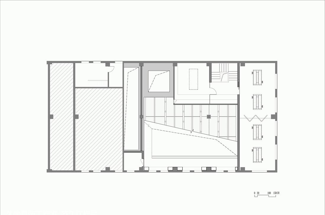
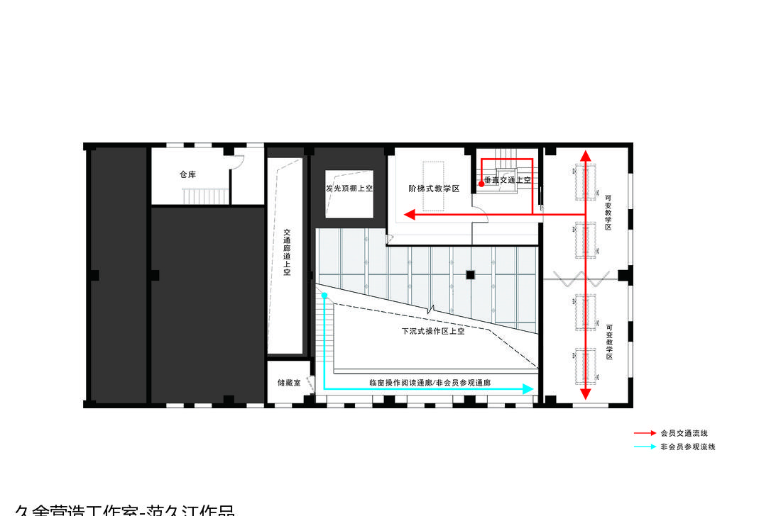
△二层平面图
△一层流线分析图
△二层流线分析图
△一层材料分布图
△二层材料分布图
△剖轴侧
△剖面图
设计单位:久舍营造工作室
设计团队:范久江、翟文婷、陈凯雄、李婷、孙福东、陈柳芬、吕爽尔、朱伟南(实习)项目地点:上海·长宁区凯旋路1205号项目规模:约450㎡(室内)项目类型:建筑改造/空间设计
设计时间:2016年10月—2016年12月
建成时间:2017年6月
建设单位:M.Y.Lab木艺实验室
结构顾问:能肖文
施工单位:张楷荫团队
摄影:SHIROMIO工作室
客服
消息
收藏
下载
最近








































