查看完整案例


收藏

下载
ZEYUAN SANSHEDESIGN2020
商业/别墅/软装/园林
我愿把一切艺术归纳为水形
无需真正的水光影轮换
声乐起伏诗文转折
无形则万千形是为水形
项目名称/甲元美业
Projectname/ Jia Yuan Beauty industry
项目规模/ 55平方米
Project scale/ 55 square meters
项目地址/幸福城
Project Address/Happiness city
设计机构/泽元三舍空间规划事务所
Photograph /ZeYuan SanSheSpace Design
主案设计/张奇
Main Design/Zhang Qi
效果表现/庄超
Effect On Performance/Zhuang Chao
文案撰写/修合文化
Document Writing/XiuHe Culture
空间摄影/晟苏摄影
Space Photography /ShengSu Architectural
实景图
材质自然的褶皱与弧度,像是被春风吹起的水波纹。门脸前的招牌在明灯之下,宛如荡漾于水。水是包容的,美也应如是。招牌吸纳了21世纪的新锐前卫,同时也融入了八十年代的梦幻复古。
Material natural fold and radian, like by the spring breeze from the ripples of water. The sign in front of the door, under the bright light, was like water. Water is inclusive, and so should beauty. The sign absorbs the new avant-garde of the 21st century, but also blends in the dreamy retro of the 1980s.
实景图
白色与墨绿色的组合搭配,是经典的ins风配色。然而在地砖的强势插入中,这种源自于现代快节奏生活的风格则被赋予了更多意味。它变得更值得品味了,黑白方块让人眼花缭乱,更让人能捕捉到那一丝来自多年前的复古“新潮”。
The combination of white and dark green is the classic Ins wind color scheme. However, in the strong insert of floor tile, the style that this kind comes from at contemporary and fast rhythm lives was given more meaning. It becomes more tasteful, dazzling with black and white squares, and capturing a bit of retro "chic" from years ago.
实景图
被嵌入墙体中的不锈钢板,打破了墙壁本身的呆板与厚重。它像是流淌在三维空间里的水,仿佛正随着光的变化缓慢流淌蠕动,在人经过时,给人送上一块朦胧的光斑,好提醒你多维度地欣赏自己的美。空间的设计,成全了人的美。
A stainless steel plate embedded in the wall, has broken the rigidity and massiness of the wall itself. It is like water flowing in the three-dimensional space, as if it is moving slowly along with the change of light. When people pass by, it will send a hazy spot to remind you to appreciate your beauty in multiple dimensions. The design of the space contributes to the beauty of people.
实景图
天花板上的设计,给人提供了无尽的想象空间。它的灵感也许来源于裸露直白的工业风,而灯罩又如同冰封的湖面,光透过玻璃产生的折射,仿佛冰层下有水流经过。
The design on the ceiling provides endless space for imagination. The inspiration may have come from the industrial wind, which is exposed and straightforward, while the lampshade ACTS like a frozen lake, refracting light through the glass as if water were flowing under the ice.
实景图
用小艺术品来使人愉悦,这是设计师常用的小心机。现成的艺术品易得,但能与设计师原创的设计恰好般配的,又千金难求。洗头区白墙上的抽象画,难得地填补了空间内的颜色,但又与整个房间恰到好处地融在了一起,变得更加赏心悦目。
Using small works of art to make people happy is a common trick used by designers. Ready-made works of art are easy to come by, but those that match the original designs of designers are hard to come by. Abstract paintings on the white wall fill the space with rare colors, but blend in with the room just right, becoming more enjoyable.
实景图
走廊的地砖与其它的空间不同,它回归了现代的大理石元素,让你仿佛在不同的时空维度中来回穿梭。这样的设计心思,像是作曲家给音乐编排的过场。传说中可以穿越时空的媒介,就是水。但若是没有水,美学,是不是也是一份足以跨越时空的力量呢?
The floor tile of the corridor is different from other Spaces. It returns to modern marble elements, allowing you to move back and forth between different dimensions of space and time. This kind of design idea is like a composer to arrange the cut scene of music. The legendary medium that can travel through time and space is water. But without water, is aesthetics a force that transcends time and space?
效果图
RENDERINGS SHOWDES
向右滑动查看更多效果图
观看视频
设计思路
DESIGN IDEASDES
水波纹板、不锈钢、乳胶漆=美
DESIGN IDEAS
在如今这个看脸的社会,我们在“美”这件事上花费的时间和金钱也多到不可思议。作为“美”的塑造地,这个空间也必须是美的,而且这份“美”已然跳出“好看”的表面范畴,慢慢延伸至身份、个性、感受、态度等方面的展现和塑造。
项目介绍
PROJECT INTRODUCTION
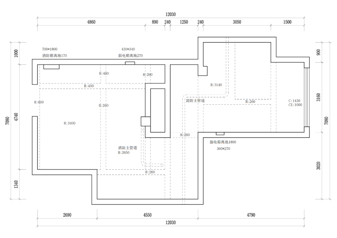
▼ 原始图,PLAN
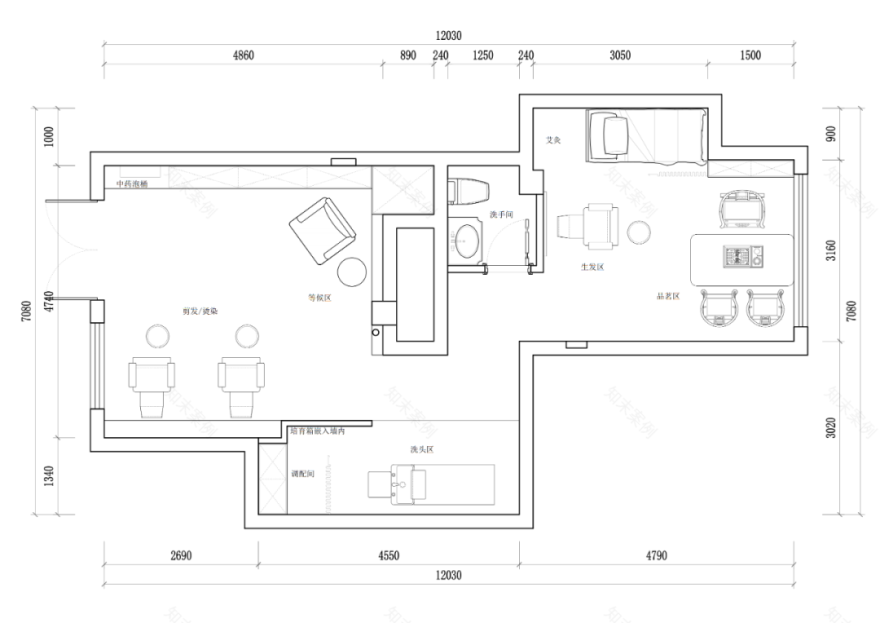
▼平面图,PLAN
空间户型结构分析
UNIT ANALYSIS
想实现空间的联动性和视觉的宽敞感,如果没有好的空间规划,再好的创意和美感都是徒劳的,本案原始户型空间很小,有种逼仄感,设计师将每寸空间做精做细,被规划后节奏感顿显。关于荣誉
About Honor
金堂奖执委会(淮安)副会长
淮安观合汇精英设计师俱乐部联合发起人
CIID中国建筑装饰协会室内分会会员
淮安市淮阴区建筑·设计行业商会副会长
注册高级室内设计师
国家注册建造师
淮安市2018年度优秀设计师
2018年金蝴蝶银奖
40 under 40 中国(淮安)设计杰出青年评委
2019金住奖十大居住空间设计师
40 under 40 中国(江苏)设计杰出青年(2019-2020)红棉奖2019年度最美极简空间设计
2019年度金堂奖年度优秀休闲空间设计
2019年度金堂奖年度优秀酒店空间设计
2019年度入围“法国双面神GPGP AWARD国际设计大奖”TOP100“人物
END
往期回顾
风华
暖巷
彩彻·区明
乐·见
渔铺
PAY ATTENTION TO OUR
扫码关注
公司地址:江苏省淮安市五九创智园1号楼101室
客服
消息
收藏
下载
最近



























