查看完整案例


收藏

下载
ZEYUAN SANSHEDESIGN2020
商业/别墅/软装/园林
在城中方寸间
茂林难觅
曲水无寻
但好在是真名士自风流
观心自在
人生就在你我之间
项目名称/水韵天成别墅
Projectname/ Shuiyuntiancheng Villa
项目规模/ 544平方米
Project scale/ 544 square meters
项目地址/水韵天成
Project Address/Shuiyuntiancheng
设计机构/泽元三舍空间规划事务所
Photograph /ZeYuan SanSheSpace Design
主案设计/张奇
Main Design/Zhang Qi
效果表现/庄超
Effect On Performance/Zhuang Chao
文案撰写/修合文化
Document Writing/XiuHe Culture
空间摄影/晟苏摄影
Space Photography /ShengSu Architectural
实景图
茂林修竹、曲水流觞,曾是文人墨客都兴致勃勃的雅趣。在城市中心的方寸之间,茂林难觅、曲水无寻,但好在是真名士自风流。庭院里高低参差的树木,在日光中投下树荫;清水池塘,荷叶游鱼。一静一动之间,又是一派诗情画意、槛外人难知。
Luxuriant forest repair bamboo, water flowing wine, was the literati are interested in elegant and interesting. In the center of the city, it is difficult to find the forest and water, but fortunately, it is a real celebrity from romantic. The high and low trees of the courtyard shaded in the daylight; Fresh water pond, lotus leaf fish. Between a quiet movement, is a school of poetic painting, threshold outsiders difficult to know.
实景图
古韵自木中溢出,在空间内凝结为奢雅的东方美,充满了归隐雅居的意蕴。从挑高天花上倾泻而下的大理石纹,既是山峦又是水幕,为空间注入了动态美。
The ancient charm overflows from the wood, condenses into the luxury and elegant Oriental beauty in the space, and is full of the implication of seclusion and elegant residence. The marble pattern pouring down from the ceiling is not only the mountains but also the water curtain, which infuses the dynamic beauty for the space.
实景图
心有猛虎,细嗅蔷薇。五十载人生沉浮,世事经历雨打风吹去,惊涛骇浪也不如一幅水墨画的恬静。于是在别墅气势磅礴的架构下,内里常见苏州园林的秀丽风貌。无论是两篇木窗,还是客厅中颇值得欣赏的屏风半隔断,都传递着苏式的灵秀。
In the heart of a tiger sniffs a rose. After 50 years of ups and downs in life, the world has experienced rain and wind blowing away, the stormy waves are not as tranquil as an ink painting. Therefore, under the magnificent structure of the villa, the beautiful scenery of suzhou gardens is common inside. No matter be two pieces of wooden window, still be the screen half partition that is worth appreciating quite in the sitting room, transmitting the clever show of Su type.
实景图
挑高的层空与方正的空间格局,让客厅成为了一个包罗万象的大世界。它包容了家具们合围式的陈列,也包容了每一处精致细腻的木雕。君子雅正端方,恰似此处的遒劲风貌。
Carry tall layer empty with the dimensional pattern of square, let the sitting room became the big world of an all-embracing. It contains the enclosed display of furniture, as well as the delicate and exquisite woodcarving of every flower. Gentleman elegant square, just like the vigor of the scene here.
实景图
半开放式的餐厅与厨房,像双生兄弟。彼此之间无需墙壁分隔,一面半高的橱柜,就保护了两者的“隐私性”。质地优良的木料,不需要过多雕刻打磨,表面的油蜡光泽就足以欣赏玩味。中式审美,也在此处得到呈现。
The semi-open dining room and kitchen are like twin brothers. Need not wall space between each other, one side is half tall ambry, protected both "privacy sex". Good texture of wood, do not need to carve too much polish, the surface of the oil and wax luster is enough to enjoy the play. Chinese aesthetic is also presented here.
实景图
别墅区动线上的一个“节点”,像是漫长旅途上的一间驿站,容纳着整条旅程上珍贵的风土人情。于是这栋别墅主人的雅兴、志趣,都在这个“节点”展示了出来。古书桌的风雅、寒梅的凛冽,一同融化成了中式古典的风情。
Villa movement line of a "node", like a post on the long journey, containing the whole journey on the precious local customs. Then this villa owner’s interest, interest, are in this "node" to show out. Of old desk elegant, cold plum cold, melted together became Chinese style classical amorous feelings.
实景图
在颇具现代质感的落地窗下,一间古香古色的书房坐落于此。同样是简单的木艺雕刻,书柜与抽屉的组合,就表达了中式设计美学中虚与实的美,同时也分明了“列”与“藏”的界限。白玉有皎月之辉,而夜晚从窗外看去,又是一回“明月别枝惊鹊”的意境。
Below the French window that has contemporary simple sense quite, the study of an ancient sweet ancient color is located in here. It is simple woodwork sculpture likewise, the combination of bookcase and drawer, expressed the beauty of empty and real in Aesthetic of Chinese style design, also made clear at the same time "column" with "Tibet" boundary. The white jade has a bright moon, and at night when you look out of the window, it is the artistic conception of "the bright moon does not frighten the magpie".
实景图
省去中式审美中较为繁琐的仪式感后,设计师在这间卧室里留下的,是天然而纯粹的松竹风骨。木的温润与笔直,构成了明确的框架,象征着玲珑剔透的清宁好梦。古画卷般的泛黄背景,让隐约的金色暗纹也抛却了庸俗。
Leave out in Chinese style aesthetic after more triplex ceremony feels, stylist is left in this bedroom, it is the day however pure pine and bamboo style bone. The warmth and straightness of the wood constitute a clear frame, symbolizing the exquisite clarity of a good dream. The yellow background like old picture scroll, let faint aureate dark grain also cast vulgar however.
效果图
RENDERINGS SHOWDES
向右滑动查看更多效果图
向右滑动查看更多效果图
设计思路
DESIGN IDEASDES
在当下、眼中景、碗中餐、身边人
DESIGN IDEAS
我们穷极一生追求的,不在输赢,不在富贵,也不在未来。在当下、眼中景、碗中餐、身边人。本案的业主夫妇年近五旬,他们的女儿长居外地,这套房子已经是他们装修的第N套房了。它地处核心景观与商业结合区,未来将被作为主要的住宅,长久居住。
沟通后,装修定义为稳重、内涵的风格,呈现的视觉效果别具东方意蕴。适逢男业主爱好收藏画作,配上他收藏的画,重叠呈现,相辅相成,低调中传递风雅。项目介绍
PROJECT INTRODUCTION
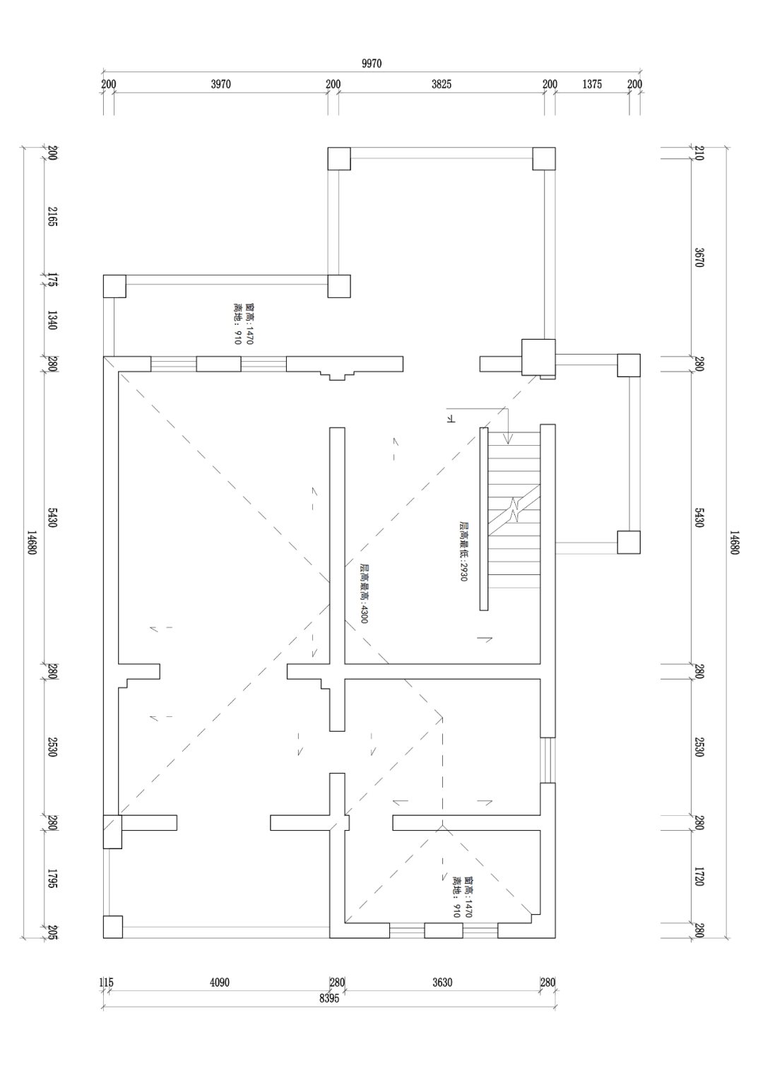
▼ 原始图,PLAN
-2F/-1F/1F/2F/3F向右滑动查看更多
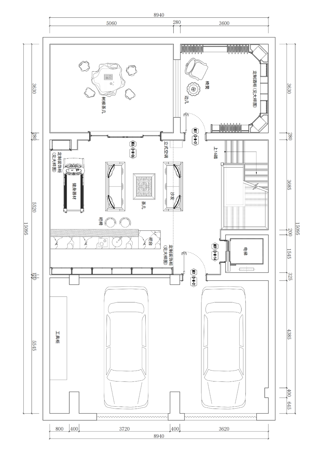
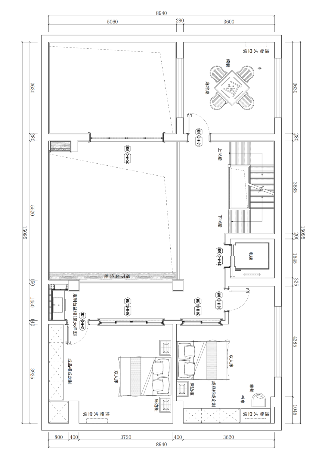
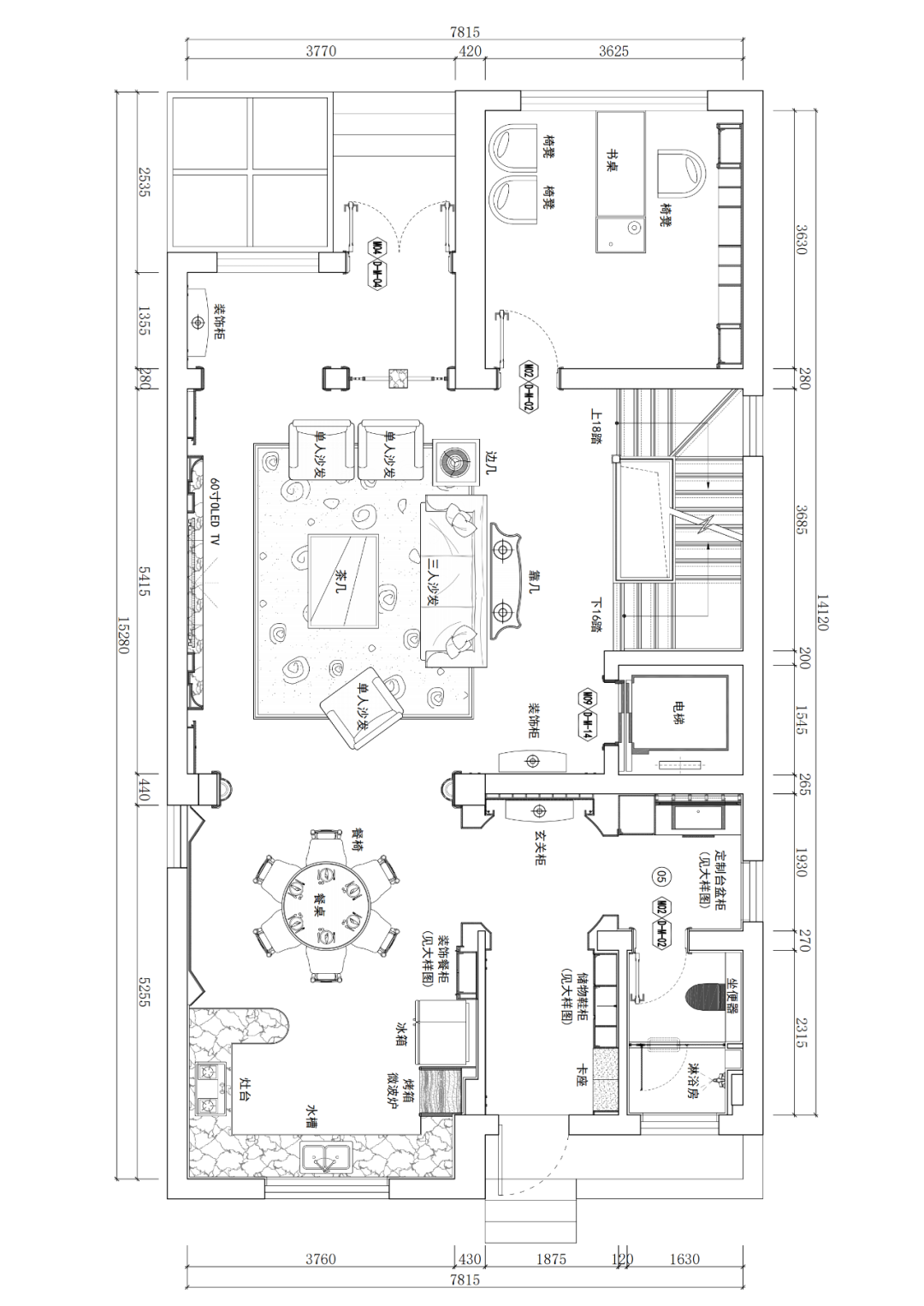
▼平面图,PLAN
-2F/-1F/1F/2F/3F 向右滑动查看更多
空间户型结构分析
UNIT ANALYSIS
前段时间读到一段:“美,是事物在无概念状态下的自然显现,是每个个体呈现出来的活泼状态。”深以为然,所以本案的空间含地上三层、地下两层,未曾进行大改,在地下室及一楼做了两个挑高的空间,内部设置了一部电梯,尊重原空间的开阔与方正,尊重了它的美。
关于荣誉
About Honor
金堂奖执委会(淮安)副会长淮安观合汇精英设计师俱乐部联合发起人CIID中国建筑装饰协会室内分会会员淮安市淮阴区建筑·设计行业商会副会长注册高级室内设计师国家注册建造师淮安市2018年度优秀设计师2018年金蝴蝶银奖40 under 40 中国(淮安)设计杰出青年评委2019金住奖十大居住空间设计师40 under 40 中国(江苏)设计杰出青年(2019-2020)红棉奖2019年度最美极简空间设计2019年度金堂奖年度优秀休闲空间设计2019年度金堂奖年度优秀酒店空间设计2019年度入围“法国双面神GPGP AWARD国际设计大奖”TOP100“人物
END往期回顾暖巷
彩彻·区明
乐·见
渔铺
PAY ATTENTION TO OUR
扫码关注
公司地址:江苏省淮安市五九创智园1号楼101室
客服
消息
收藏
下载
最近







































