查看完整案例


收藏

下载
ZEYUAN SANSHEDESIGN
2023
商业 / 别墅 / 软装 / 园林
与美相遇
潮·默
感知极简格调
品味时尚艺术
潮默买手集合店小康城新址,延续了以往的设计风格,保持着品牌视觉系统的一致性,从布局形式、配色方案、多重细节上树立自身型格,妙用光线的发散性与暗影的叙事力,阐释一层服装展陈空间、二层拍照取景空间的丰富美感与交互体验。
外立面
明确的视觉张力
以抽象主义为内核,形成几何色块的构造法则,应用黑白撞色的张力制造无声的吸引,穿插质朴红砖,缩放宽窄,间奏明暗,为整体增添了质感起伏与色温变化。以相异的格栅纹理区分上下层空间,铺设灰砖密合街景氛围,和谐自然。
休息区&门窗
延展、重塑里外关系
甄选自带户外野营气质的箱型作桌体,搭配粉色花束与金属色泽,绽放优雅浪漫的气息。成对的可收纳靠椅,以其休闲松弛的调性,衔接内外,形成互动。敞开门窗,延展动态,将里外关系逐一重塑。
收银&咖啡吧
徐徐而动 输出愉悦
留白背景,淡雅色调,让青绿成为一隅的视觉焦点,萦绕出徐徐而动的呼吸感与流动性。一轮弧弦,一处人事,烘焙出咖啡的香气,展开舒心愉悦的消费动态,让收银工作与咖啡吧相辅相成。
一层楼梯空间
流动的空间情绪
携光衬雅,透过方格结构留下光影之迹,迎接天时、天气带来的精神提示与空间情绪。光与影,在这里相遇和交错,注入可达性与趣味性。铺设间隔色彩,引人拾阶而上,开启新的探索篇章。
一层展陈&试衣间
序列之美 助力体验
镂空造型于立面过渡、串联相邻场域,打造透视意趣,结合凹与凸、立与悬、长与短的修饰手法,塑造新颖且多样的展陈空间,依据规划路线与布局形式,构建足量试衣间,设置露脚式软帘隔断,便于观察实时的使用情况,及时提供服务。
挑空
借新景创造新境
在高挑空的环境里,描摹贴合顶面的拱形框架,加强了纵向气势,亦谱写出一种仪式感,借点状光源贯通舒适柔和的体感,明暗律动,经由主体块的变形、拆解、重构,彰显独特调性与美学奥义。
二层休息区
克莱因蓝 治愈疲惫
克莱因蓝与圆融体态相遇,削弱了空间本身的隔离,窝在其中小憩片刻,便会沉静下来,自然而然地体察到分布于四周的艺术元素,令人流连忘返的美,于空间中转圜,尽在不言中。
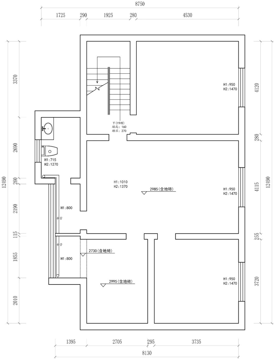
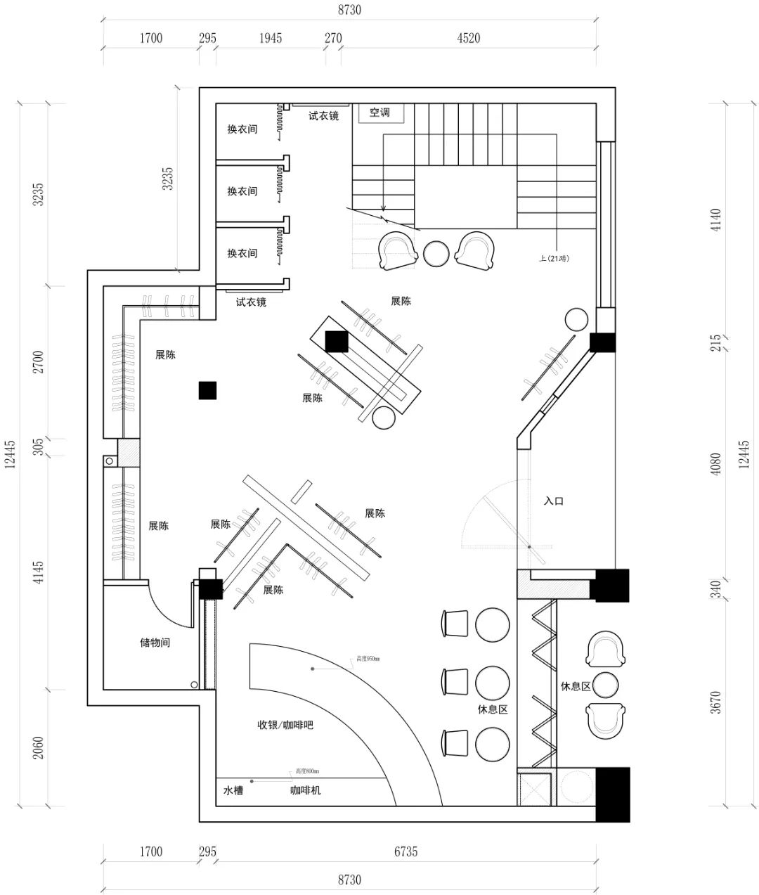
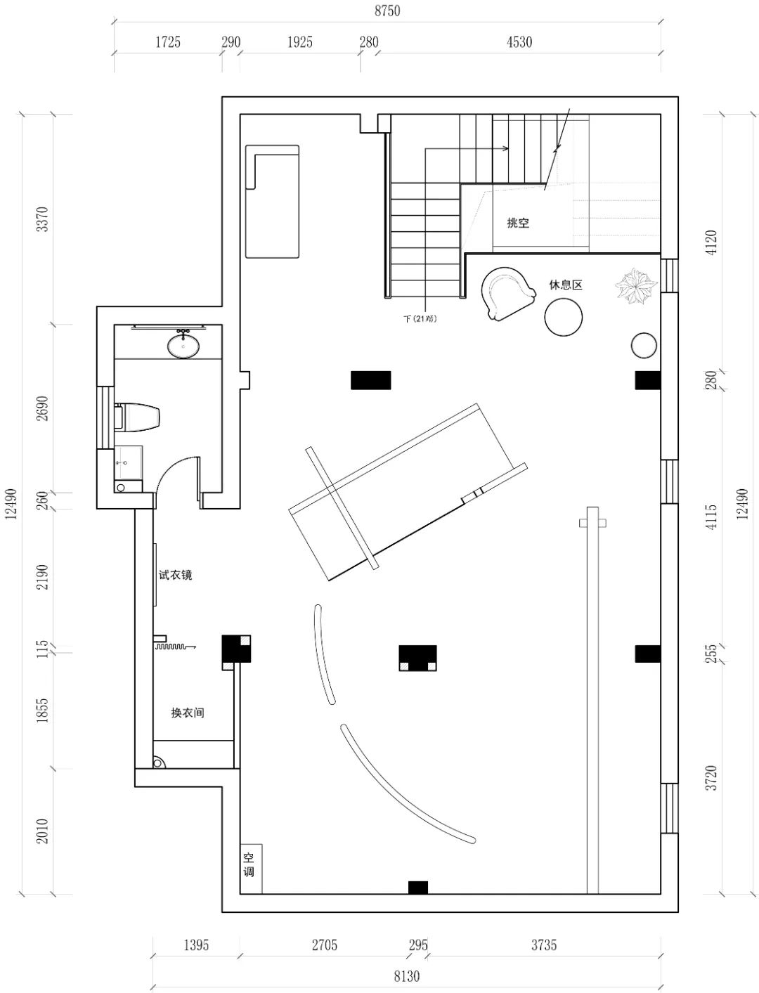
原始图
THE ORIGINAL FIGURE
平面图 THE FLOOR PLAN
<左右滑动查看更多>
项目信息
PROJECT INTRODUCTION
项目名称 / 潮默买手集合店(小康城)
项目规模 / 220 平米
项目地址 / 小康城
设计机构 / 泽元三舍空间规划事务所
文案策划 / 修合文化
空间摄影 / 晟苏摄影
关于荣誉
About Honor
淮安观合汇精英设计师俱乐部联合发起人
金堂奖执委会(淮安)副会长
CIID 中国建筑装饰协会室内分会会员
江苏省室内设计学会理事
2018 年金蝴蝶 银奖
2019 金堂奖 年度优秀悠闲空间设计
40 under 40 中国(江苏)设计杰出青年(2019-2020)
40 under 40 中国(淮安)设计杰出青年评委
2019 金住奖 十大居住空间设计师
2019 红棉奖 年度最美极简空间设计
2019 法国双面神 GPAP AWARD 设计大奖
2020 华鼎奖 餐饮空间类 金奖
2020 ID+G 金创意奖餐饮空间 铜奖
2020 红棉中国设计奖 2020 室内设计奖
2020 中国家装设计百强人物(2020-2021)
2020 中国家装设计百强设计机构(2020-2021)
2020 ICS 国际色彩空间设计奖 · 年度最佳色彩空间设计
2021 ID+G 金创意奖商业展示空间 国际创新设计奖
2021 百度馨居奖 优秀别墅设计奖
2021 华鼎奖 商业空间类 金奖
2022 红棉设计奖·2022 室内设计奖
2022 ICS 国际色彩空间设计奖·优秀色彩空间设计奖
40 under 40 中国(江苏)设计杰出青年(2022-2023)
END
往期回顾
海 · 映像
FOR FUN
小淮潮 · 新定义
畅享时光 · 贰场烤肉
科幻非幻·云端健身(金地店)
PAY ATTENTION TO OUR 扫码关注 公司地址:江苏省淮安市五九创智园 1 号楼 101 室 15851769777/18351478886
客服
消息
收藏
下载
最近

































