查看完整案例


收藏

下载
大德长安是位于北京国贸CBD的一家高端日式烧烤店,面朝北京最重要的历史主干道路之一的长安街。长安即历史上隋朝的古都,现今中国西安的古名。公元7至9世纪,隋朝迎接了飞鸟和奈良时代的日本遣隋使,他们为了交流先进的文化及社会制度远渡来华,同时被认为是当今世界现存的最古老的木结构建筑的法隆寺也是在这个历史时期建成的。这次的设计灵感就来源于中日古文化之间的关系。
大德长安外观
外走廊实景图
木制竖排百叶扇
大德长安的设计概念即是在面朝长安街的枯山水里建造一个内含5间私人包间的单一斜屋顶房。
整个建筑由木制百叶窗包覆,竖排百叶窗本身所有的空间间隙既保证了餐饮空间的隐私性,又巧妙地保留了CBD核心区的摩登观景体验。
外走廊实景图
8人包间
12人包间
枯山水的高架地板不只为榻榻米坐席提供了空间,同时也为花园中行走的客人和包间中用餐的客人之间建立了一个视觉高差。
玻璃天花板的使用让客人在用餐的同时透过玻璃切身体验建筑物本身的木制屋顶。
走廊实景
区别于一般的烤肉店,大德长安为了提供食材的最佳口感,肉类全部由厨师经不同的处理工序烹饪,比如烟熏、烘烤、炙烤及焖煮。因此,建立一个可以由后厨快速到达包间并完全分离客人用餐和服务投递的通道是非常必要的。
仅仅通过一个单一空间,大德长安提供了一个兼顾高效服务和舒适氛围的环境,以此来满足肉食爱好者对期待获得最好的餐饮体验的渴望。通过打造一个高端日式餐饮空间的方式,我们期望大德长安能如古代的遣隋使一般将日本的餐饮文化传播下去。
实景一览
设计图纸
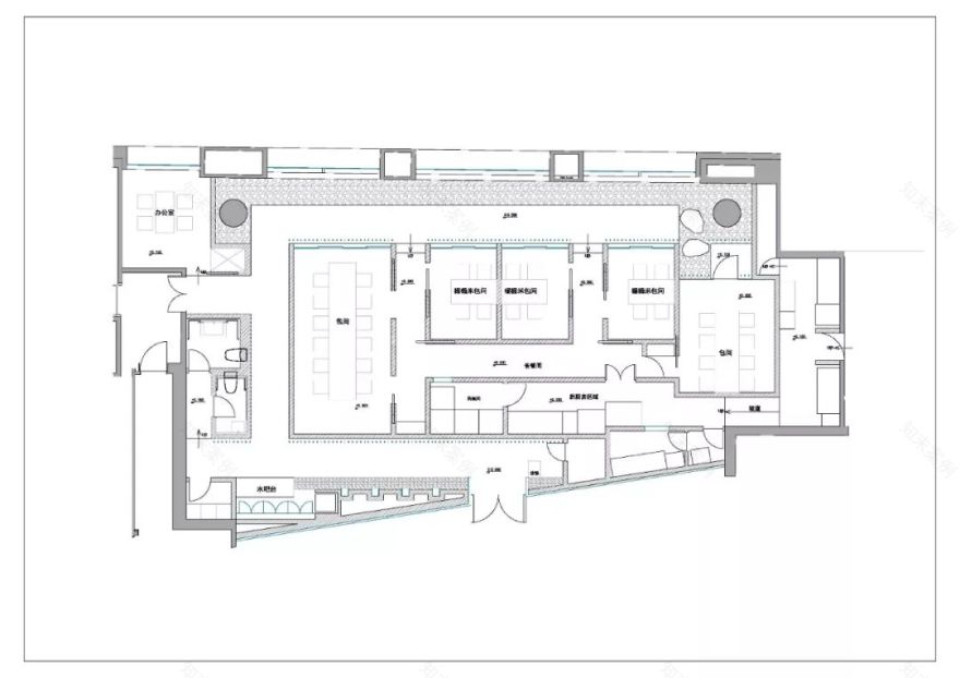
平面图
入口通道里面展开图
剖面及节点图
入口立面石材排版图
Project name: OOTOKU CHANG-AN
Architect’ Firm: odd (okamoto deguchi design)
Lead Architects: Keizo Okamoto / Tsutomu Deguchi/ Zhang Feng
Project location: #2 Jianguomen Wai Dajie, Beijing, China
Completion Year:2019
Gross Built Area (square meters or square foot):
220㎡
Photo credits: Ruijing Photo
Photographer’s website:
项目名称:大德长安
设计公司:odd设计事务所
项目建筑师:冈本庆三 / 出口勉 / 张凤
项目地点:北京市建国门外大街2号
完成年份:2019年
建筑面积:220㎡
摄影:锐景摄影
摄影师网站:
客服
消息
收藏
下载
最近


















