查看完整案例


收藏

下载
项目概况
项目名称 /翰林居·黛汀烘焙集合店
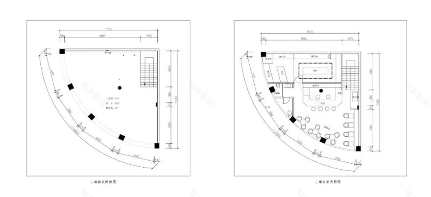
建筑面积 / 212平方米
项目地址 / 郑州市·九如东路天韵街
设计公司 / 徽宗设计研究室
主案设计 /姚清轩
设计总监 /侯豫
设计团队 /朱琳 徐莉莉 李春雨 郭芝良 刘明帅 张建
撰文 /姚清轩
摄影 /李研彤
主要用材 /清水混凝土 乳胶漆 贴皮 氟碳漆 水磨石 不锈钢 老红砖 皮革软包 百叶格栅
设计日期 /2018年 7月中旬
施工日期 /2018年 8月中旬-2018年11月中旬
平面 / DESIGN
空间 / DESIGN
DAINTY BAKERY
STAIR CORNER
DAI COFFEE
ESSAY2019.4.29 午后
END
徽宗设计研究院 HUIZONGDESIGN
徽宗空间设计研究室创立于2014年,是一家立足于中国郑州的多元化建筑设计公司。徽宗设计提供国际化的建筑、室内、整体规划以及平面设计服务。公司目前的项目分布在很多不同的城市,拥有来自全国各地的员工,不同文化背景组成了徽宗的设计团队,正是团队的差异独特性增强了我们的设计理念:以全球化的观念结合多元、重叠的设计理念来创造一个新的建筑范例。
徽宗设计始终认为研究是设计的一种有力工具,因为每个项目都具备有其特有的背景。对规划运作、地点、功能和历史等进行细致深入的研究是创造严谨作品不可或缺的要素。在研究的基础上,徽宗设计致力于建筑与经验、细节、材料、形状及灯光的积极互动,而不是单纯地遵照模式化刻板风格。每个项目背后的最终成功之处都是通过建筑本身外观形象所体现出来的意义而得到淋漓尽致的体现。
客服
消息
收藏
下载
最近


























