查看完整案例


收藏

下载
项目概况
▼
项目名称 / Buzz Lightyear
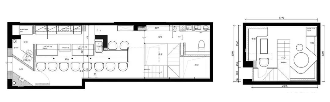
建筑面积 / 70.1
平方米
项目地址 / 郑州市
· 地坤街
设计公司 / 徽宗设计研究室
主案设计
/
姚清轩
设计总监
/
侯豫
设计团队 / 张千千 徐莉莉 刘明帅 郭芝良 张建
撰文 / 姚清轩
摄影 / 李研彤
主要用材 / 亚克力 黄铜不锈钢 砂岩 镜钢 蒙古黑石材 夹胶钢化玻璃
设计日期 / 2019年5月
施工日期 / 2019年8月中旬-2019年12月初旬
平面 / LAYOUT
▼
空间 / SPACE
▼
入门 /
ENTRANCE
▼
吧台 / LOUNGE
▼
楼梯 / DOWNSTAIRS
▼
卡包 / PRIVATE AREA
▼
一面仿如金字塔墓穴的石墙,一条隧道,一个地下室
打开石墙,隧道深深深深深几许
前方幽暗,却是光朔迷离
把时间的直线扭曲,往下,仿如达利
时间变成了空间的一部分
你我同往,沿着隧道,漂泊时空
任你何去,我都追随
时光无边,寂静无痕
过去,转瞬即逝。
当下,如同玫瑰凋零
我们在黑暗中被稀释掉。
▼
END
徽宗设计研究院 HUIZONGDESIGN
徽宗空间设计研究室创立于2014年,是一家立足于中国郑州的多元化建筑设计公司。徽宗设计提供国际化的建筑、室内、整体规划以及平面设计服务。公司目前的项目分布在很多不同的城市,拥有来自全国各地的员工,不同文化背景组成了徽宗的设计团队,正是团队的差异独特性增强了我们的设计理念:以全球化的观念结合多元、重叠的设计理念来创造一个新的建筑范例。
徽宗设计始终认为研究是设计的一种有力工具,因为每个项目都具备有其特有的背景。对规划运作、地点、功能和历史等进行细致深入的研究是创造严谨作品不可或缺的要素。在研究的基础上,徽宗设计致力于建筑与经验、细节、材料、形状及灯光的积极互动,而不是单纯地遵照模式化刻板风格。每个项目背后的最终成功之处都是通过建筑本身外观形象所体现出来的意义而得到淋漓尽致的体现。
▼
客服
消息
收藏
下载
最近





























