查看完整案例


收藏

下载

翻译
Architects:Luigi Rosselli
Area :265 m²
Year :2020
Photographs :Prue Ruscoe
Structural Consultant :Geoff Ninnes Fong & Partners Pty Ltd
Landscape :Bates Landscape
Builder :Building With Options Pty Ltd
Design Architect : Luigi Rosselli
Project Architects : Sean Johnson, Diana Yang
Interior Designers : Alwill Interiors
Joiner : BWO Fitout and Interiors
City : Bondi
Country : Australia
A “Bombora” is an indigenous Australian term, possibly with its origin in the ‘Dharuk’ language spoken in the Sydney region, to describe a wave breaking over a shallow reef or sandbank that has been adopted into Australian surf culture.
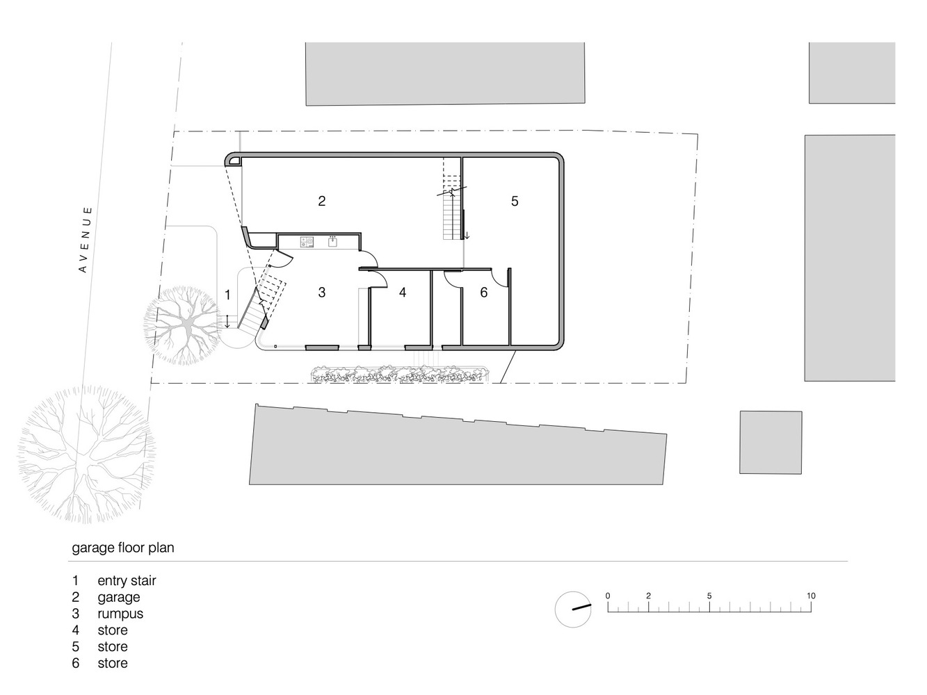
This dwelling house, built in a mixed and densely packed street located just a stone’s throw from the Bondi Beach is an homage to that surfers’ haven; to the swell and the waves that have formed a rich intertidal culture for millennia. The three-story home, with accommodation for a tribe of three generations, and a menagerie of dogs, cats and chickens, is compressed into a compact site. Its wavy frontage forms an open arm to embrace the central entrance, and with no space for a veranda or portico, a steel hood shades the front door, reached by a fluid path and entry steps.
The building’s base is clad with blue and jade herringbone mosaic tiles, which shimmer and undulate in the daylight like the surface of the ocean.
The main floor, painted in a pale blue shade, is a kind of ‘piano nobile’: the first floor of a Renaissance residence. Dedicated to its ‘noble’ owners, it was usually the floor with the highest ceilings and was elevated sufficiently to sequester the residents away from the grime and smell of the street below.
Crowning the three levels is the metal-clad bedroom level, set back from the street front and awaiting some cascading trailing plants to soften the armoured ‘battleship’ appearance of the metallic façade.
Landscaper, Michael Bates planted as many edible fruit trees as he could fit into the bikini sized residual garden areas: olive trees to the front, lilly pilly and guava to the rear; and the client has installed beehives and planted all the bees favoured flowers in the nooks and crannies.
Interior Designer, Romaine Alwill, and Project Architect, Diana Yang have utilised ever millimetre of space to provide storage and create a practical flow for human and object interaction: the dining room credenza becomes the kids’ homework area, the powder room borrows light from the adjoining bathroom through a mirror and glass partition! The stairwell becomes a library, and sitting on the library bay window seat, one can drop their half-read book, gaze out of the window, and dream of coastlines, beaches, and bomboras in Bondi.
▼项目更多图片
客服
消息
收藏
下载
最近








































