查看完整案例


收藏

下载
屋主是一位警官,平时工作压力较大,所以设计师
决
定让整
个
空间都以白色系
为
主,因为在色彩心理学上,白色象征纯洁、干净、信任,符合屋主工作的专业形象。
而为了避免太大面积的白色会让人有开放的梳理感,所以适当地穿插木頭及局部灰、黑色點綴,平衡视觉感受。
客、餐厅串联,空间视野超大化,多面采光进入空间,通透明亮。白色电视背景墙的设计,弱化原始空间结构。
电视背墙通过有规律的抽缝,增强细节。
男模身材的
业主
,白色的背景,自然柔光,拍照绝佳。
吊灯,杂乱又有规律的线路,充满设计感。
橡木实木桌面及长凳,传统打家具的概念植入空间,保留原有阳台移门及阳台。
主卧的阳台轨道主卧使用,餐厅外的阳台,划分为了设备阳台和休闲阳台,男业主偶尔抽烟,也能做到很好的隔离。
厨房外,增加西厨空间,增加家庭空间互通性。
中厨通过门的开合,完成与西厨的融合与打断。
石膏板吊顶,射灯与立面灯光结合,让整个使用空间没有暗角,延续公领域色调,放大空间感。
衣帽间看向卧室,镜面效果放大空间。
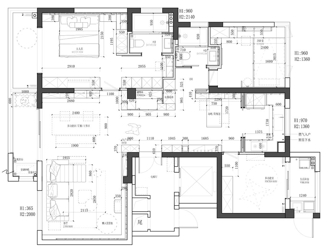
平面图
点击下列图片/Click on the following picture
了解a+one更多设计作品/Learn more about a+one design works
A+ONE设计事务所倾力打造室内空间设计,我们的“极简”并非简单的断舍离,而是心无旁骛地关注空间、关注生活,简而不减。
A+one空间设计事务所 / 西安独树装饰装修工程有限公司
Architecture & Space Design Studio
地点:西安市高新区唐延路11号
禾盛京广中心(T11 Block)C座1404
Add:Block C 1404, Hesheng Jingguang Center
No. 11 Tangyan Road, Xi'an High-tech Zone
Phone:+86 18710440444 / Fax:+029-89181816
T H A N K S
客服
消息
收藏
下载
最近




































