查看完整案例


收藏

下载
择一事,终一生,宿然设计,为理想空间而生
Suran design
项目详情
参考报价:50 万(不含家具家电)
设计单位:宿然设计事务所
项目地址:江西南昌
设计风格:现代简约
户型结构:三室两厅
项目面积:120㎡(原始面积 150 平,精装房交付,保留原厨房卫生间,其他区域拆除重装)
▼序言
此方案是开发商精装房交付,业主是一对年轻的新婚夫妇,男业主是国内知名艺人的御用化妆师,在北京工作了十余年,参与过国内多档知名综艺类节目的录制。女业主从事音乐工作,弹的一手好琴,唱的一手好歌。男女主人都非常时尚潮流,审美在线颜值高。
男女业主面对精装交付的整体结构和细节都不满意,不能满足对个人的生活需求和审美。经过反复多次沟通,最后慎重决定,厨房区域和两个卫生间区域保留精装交付状态不改动,其余区域全部拆掉重新装修。
我们与业主经过长时间的功能需求和个人诉求的沟通,调整了次卧,并入主卧作为一个套间衣帽间功能。拆除了精装交付时主卫生间门口的小衣帽间,有效扩充主卧的舒适度和睡眠体验,同时满足了收纳空间的需求。
门口的次卧面积较小,没有做过度凌乱的装饰设计,通过科学的色彩和灯光设计去完成一个好的睡眠空间,是我们对次卧的设计初衷。
在书房的设计中,考虑未来要宝宝的情况,我们在原来框架内仅做了家具软装上的布置,所有的功能件均是可以移动替换的,为未来迎接新生命保留充足的空间可塑性。
在客餐厅的设计中,我们尽可能的通过局部拆除墙体,用线条感拉伸空间视觉,让一个面积并不算太大的客餐厅营造出高级感的氛围。
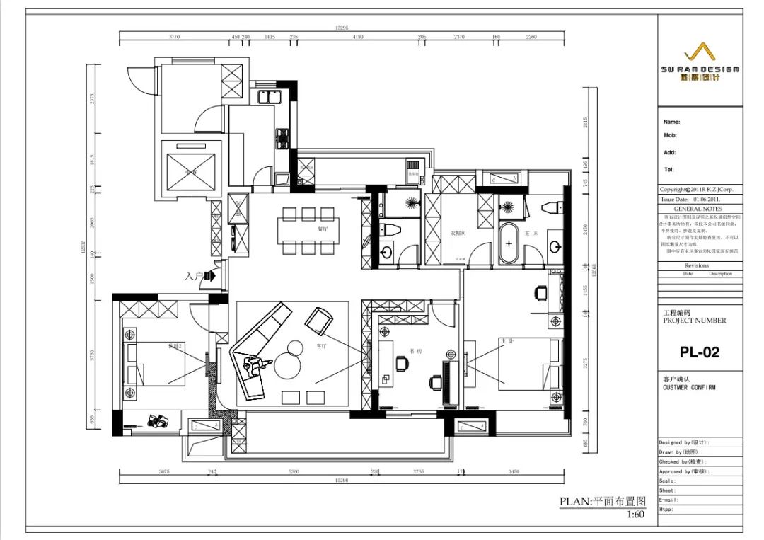
▼平面布置图 PLANE GRAPH
此方案开发商是精装房交付,厨房区域和两个卫生间区域保留精装交付状态未改动,其余区域全部拆掉重新做结构设计装修。调整了次卧,并入主卧作为一个套间衣帽间功能,拆除了精装交付时主卫生间门口的小衣帽间,有效的扩充了主卧的舒适度和睡眠体验同时满足了收纳空间的需求。
▼玄关
入户玄关的壁龛设计,可以随手放置出门的一些小物件。
客厅
入户右边的次卧门做了隐形门设计,这样空间更有整体性。
客厅的阳台直接打通,这样空间更加开阔大气,整体的采光和通风也会更好。
阳台和客厅也不是简单粗暴的直接打通,而是阳台做了抬高处理,抬高细节设计目的是:一是为了增加客厅的空间层次;二是希望在这个落地玻璃的景观阳台里面,促进夫妻之间的交流。心理学上在层高适度的空间是 2.5 米以下,人对空间的安全感会激发一定的交流欲望,可参考日式榻榻米餐厅的包厢设计中,设计师故意把层高压缩的案例。
▼餐厅
在客餐厅的设计中,我们尽可能地通过局部拆除墙体,用线条感拉伸空间视觉,让一个面积并不算太大的客餐厅营造出高级感的氛围。
此方案的餐厅是进门的第一视觉空间,我们在软装思考中,除了常规挂画,希望回家第一眼的感觉是有生命力的,所以我们通过植物造景去完成这个设计目的,因此在全屋定制的设计中做了一个植物端景。
冰箱烤箱都是嵌入式设计,节约空间。
▼卧室
原开发商的结构,主卧卫生间的门对着床,从风水学上来说,污浊之气对着床不利于人体健康,所以我们设计了一个玻璃屏风隔断来抵挡。
隔断的材质选择的是长虹玻璃,不影响采光,搭配上灯光设计,有一种若隐若现的朦胧感,有利于睡眠。
男女业主都很潮,所以在软装摆件的搭配上也选择的是一些潮牌,比如 KAWS,暴力熊等。
▼衣帽间
调整了次卧,把原次卧并入主卧作为一个套间衣帽间功能。拆除了精装交付时主卫生间门口的小衣帽间,有效的扩充了主卧的舒适度和睡眠体验,同时满足了收纳空间的需求。
门口的次卧面积较小,没有做过度凌乱的装饰设计,通过科学的色彩和灯光设计去完成一个好的睡眠空间,是我们对次卧的设计初衷。
▼书房
在书房的设计中,考虑未来要宝宝的情况,我们在原来框架内仅做了家具软装上的布置,所有的功能件均是可以移动替换的,为未来迎接新生命保留充足的空间可塑性。
▼设计小组
关于设计:让最专业的人做最专业的事,各取所长,金无赤足,人无完人,每个人都有自己最擅长的领域,我们拥有多名优秀的设计师,每个人本就各有所长,无论北欧、日式、现代简约、轻奢,还是台式美式新中式,无论是视觉,灯光,色彩,还是软装,我们摒弃了传统设计模式以设计师级别收费的方式,每一套方案,都由整个团队协作完成,每个人做自己最擅长的项目,整个团队共同运筹帷幄以达到最完美的效果。
一【宿然设计】择一事,终一生,宿然设计,为理想而生!
您好,这里是宿然设计,您的专属室内设计师团队。
有任何装修设计方面的问题欢迎咨询我们。
▼关注我们,定时更新装修干货及室内设计案例。
客服
消息
收藏
下载
最近


















































