查看完整案例


收藏

下载
前言:
龙岗区龙城街道盛平荔枝园城市更新单元
,是龙岗区居改商住类城市更新项目。更新单元规划由深圳市日杰瑞欣城市规划设计咨询有限公司负责编制,于2020年11月获龙岗区人民政府批复并公告。
项目背景
盛平荔枝园城市更新单元位于龙岗区龙城街道,龙平西路与龙城大道交叉口西北侧,紧邻地铁16号线龙城中路站,更新单元范围面积45367.3平方米,拆除用地面积43558.4平方米。
更新单元位于龙岗中心龙城北路商务发展轴上,且位于龙岗“4+9”重点发展区“盛平-龙园片区”内,是城市发展的重要节点位置。更新单元内现状主要为破旧的私宅及少量商业与厂房,公共设施配套缺乏,城市环境品质低,亟需通过更新提升城市功能,改善环境品质。2015年10月,盛平荔枝园城市更新单元列入《2015年深圳市城市更新单元计划第三批计划》。
-
项目位置与范围图
-
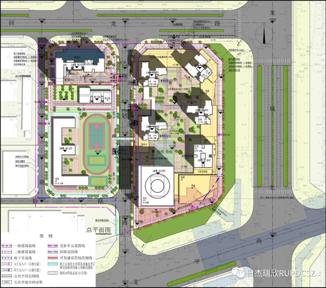
规划方案
盛平荔枝园城市更新单元更新方向为居住、商业功能,开发建设用地面积28424.4平方米(含零星用地486平方米),移交给政府的权属清晰用地面积为15619.9平方米(其中教育设施用地8100.2平方米,用于建设18班小学,市政道路用地7487.6平方米,工业用地32.1平方米)。
-
地块划分与指标控制图
-
项目规划容积为243930平方米,规划平均容积率8.6,其中:住宅131000平方米(含公共租赁住房18340平方米),商业、办公及旅馆业建筑91090平方米(含母婴室188平方米、商业文化设施4688平方米),公共配套设施(含地下)19340平方米。
项目定位
项目充分利用地处龙岗中心城东北门户、龙城北路商务发展轴、紧邻地铁16号线龙城中路站等优势条件,提出打造
“龙岗中心城北门户,集高端商务、体验商业、宜居社区于一体的TOD综合社区”
的发展定位。
-
概念方案总平面图
-
- 效果图一
-
- 效果图二
-
- 效果图三
-
城市设计策略
(1)营造中心城北门户形象,丰富龙城北路,龙平西路城市天际线
龙平西路与龙城北路是从东北方向进入龙岗中心区的主要道路,本项目位于两条干道交叉口,规划在交叉口位置布置高度250米的商业办公楼,形成龙岗大中心城北门户地标,提升龙岗大中心城形象。
-
门户节点位置示意
-
-
龙城北路天
际轮廓
线示意
-
-
龙平西路天际轮廓线示意
-
(2)营造融入区域的公共空间与慢行网络,打造公共活力节点,并与周边形成20分钟慢生活圈
本项目与周边众多的公园具有较舒适的慢行距离,是
整合衔
接
片区公共开敞空间
的重要节点。
本项目规划依托龙城北路
、龙平西路城市景观廊道,完善慢行系统,加强与周边公园的联系,在片区形成20分钟慢生活圈。
同时增加由城市慢行系统向项目内部渗透的多条通道,形成更加开放的公共空间系统,增强片区的活力与吸引力,提升节点空间价值。
-
片区
公共开放空间及
慢行系统组织示意
-
结语
盛平荔枝园城市更新单元规划的批复及实施,将有助于完善片区城市功能,优化片区道路交通系统,提升公共设施服务能力,打造中心城北地区体现宜居宜业特色的综合活力社区。
项目组主要成员:
牛瑞玲、周仕忠、杨子祎、陈茂盛、陈深达、詹泽鑫、张丽波
在此特别感谢委托方
深圳市龙岗荔枝园股份合作公司
的信任!感谢各相关专项机构的大力支持!
拟 稿:
杨子祎
审 核
:
牛瑞玲
深圳市日杰瑞欣城市规划设计咨询有限公司成立于2011年,公司主营城市规划设计与咨询、房地产项目策划与咨询、建筑设计与咨询、室内装饰设计与咨询。公司致力于“项目的全流程服务,提供系统化的解决平台”服务领域涵盖战略规划到详细设计,项目策划到实施技术支持。
团队长期扎根珠三角改革开放的前沿,经历市场经济和城市化大潮的洗礼,对各种类型、各个层次,不同开发主体的规划和设计项目,从策划、编制、实施技术服务均具有深厚的经验;以城市规划设计为先导,对建筑、交通、市政、景观、市场咨询等多专业具有强大的协调统筹能力。
客服
消息
收藏
下载
最近












