查看完整案例


收藏

下载
△克劳迪奥·西尔维斯特林 Claudiosilvestrin
2020 德国标志性设计奖·创新建筑奖得主
2019 建筑与设计博物馆——优秀设计奖得主
一块反对腐败的石头
出生于 1954 年的 Claudio Silvestrin,曾在米兰的 A.G.Fronzoni 学习,之后在伦敦的建筑协会工作,他在哲学方面的浓厚兴趣影响了他的作品,他的远见卓识、思维清晰、正直品格、非凡创造力和对细节的重视都反映在他严谨简约的建筑作品中:朴素且平和、现代且永恒、平静且克制、优雅且内敛、强烈而不令人生畏。
Claudio Silvestrin was born in 1954, studied under A.G. Fronzoni in Milan and at the Architectural Association in London. His interest in philosophy, his vision, his integrity, clarity of mind, inventiveness and concern for details are reflected in his distinctive architecture: austere but not extreme, contemporary yet timeless, calming but not ascetic, strong but not intimidating, elegant but not ostentatious, simple but not soulless.
△年轻的克劳迪奥·西尔维斯特林Claudio Silvestrin
Claudio Silvestrin 伦敦建筑工作室成立于 1989 年,于 2006 年在米兰设置办事处,设计内容包括房地产开发、住宅和私人度假村、艺术画廊、博物馆、餐厅、奢侈品门店和家具设计等。
Claudio Silvestrin Architects was established in 1989 with offices in London and, since 2006, in Milan as well. The work of the practice encompasses real estate developments, newly built houses and resorts for private residence, art galleries and museums, restaurants, luxury retail stores and furniture design.
△Claudio Silvestrin 和 Kanye West 的合作
他认为建筑是一种诗歌,能够通过空间和材料表达情感,运用艺术性呈现建筑的哲学、品牌的灵魂。经典隽永的设计是 Claudio Silvestrin 的建筑美学,将品牌哲学与建筑、艺术融为一体。他绝不仅仅只是有创造力,他在设计中表达了一种创造中的再创造。他主张差异而非统一,追求作品质量而不是数量。他敏锐的触感为客户的项目增加无限价值。
Claudio Silvestrin Architects was established in 1989 with offices in London and, since 2006, in Milan as well. The work of the practice encompasses real estate developments, newly built houses and resorts for private residence, art galleries and museums, restaurants, luxury retail stores and furniture design.
他写到建筑是人与自然、上帝与凡人的桥梁;它与地球合作诗歌。Claudio Silvestrin 强调建筑需要“隐形”,正如他在 Rocca Sinibalda 城堡项目设计中体现的那样。这座城堡乍一看和原来比似乎没有受到太大的改变,但实际在这座建筑花费了近九年。
He believe that architecture is the most complete form of art, bridging man and nature, god and mortals; that it is composing poetry in partnership with the earth, and strive to design this bridge as "invisible", as the intervention on the project of Castle of Rocca Sinibalda.
城堡占地 30,000 平方英尺,其历史可以追溯到 12 世纪,文艺复兴后期由建筑师 Baldassarre Peruzzi 改造成一座宏伟的堡垒。
Occupying an area of 30,000 square feet, the original castle dates back to the 12th century.Originally built in 1084, it was turned into a magnificent fortress during the late Renaissance by Architect Baldassarre Peruzzi.
Claudio Silvestrin 将其改造成一个四口之家的现代住宅,设有客房和超过 900 平方米的艺术作品展览空间,在对这座古堡中意大利遗产机构列出的区域进行合理修复的同时,将其他区域转变为永恒优雅的新现代空间。
The client’s brief to Claudio Silvestrin Architects was to transform it into a contemporary residence for a family of four with guest rooms and over 10,000 square feet of exhibition space to accommodate the display of Shamanic works of art. The intention was to achieve a sensible restoration in the areas which are listed by the Italian heritage body and, at the same time, transform the non-listed areas into new contemporary spaces in timeless elegance.
Claudio Silvestrin 注意光影的效果,给人一种非物质空间的印象,那种充满意义的虚空,在那里人们会专注于自己,打开自己的内在体验,反而能够察觉到更多。
Claudio Silvestrin pay attention to the effects of light and shade, creating an impression of an immaterial space, a void filled with meaning, where one would concentrate onto himself and be open to any inner experience, be calm and watchful.
我相信这是我的使命……唤醒人类灵魂中的神圣之美。
I believe it is my mission... the awakening of the divine beauty that dwells in the soul of human beings.
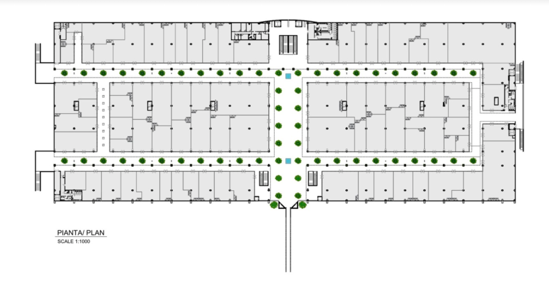
Torino Outlet Village 是一个 32,000 平方米的开发项目,视觉上具有现代感,结构比例经典而优雅。该建筑采用古老的天然材料:天然石材和石灰灰泥。购物长廊长 290m,天花板高达 6m。它的两侧是一个延伸到无限的拱廊,并由一条规则的树木小径装饰。Torino Outlet (Fashion) Village 是一个 32,000m² 街面露天开发项目。该奥特莱斯的水平布局使其在视觉上具有现代感,在配置和比例上也经典而优雅。该建筑覆盖着古老的天然材料:天然石材和石灰灰泥。购物长廊长 290 米,天花板高达 6 米。它的两侧是一个延伸到无限的拱廊,并由一条规则的树木小径装饰。
这座 88m 高的独立式尖顶,象征着天地之间的桥梁。尖塔仿佛刺破天空,将宇宙能量吸回大地。它拥有精致的结构和非凡的设计,塔基牢牢固定在地面上,但它仍以轻盈的姿态翱翔于天空。
From behind the trees a 88 m high freestanding spire rises as a metaphorical bridge between the sky and the earth and as an iconic landmark connecting the surrounding territory. The symbolic spire seems to pierce the sky, drawing its cosmic energy down on the earth. It has a delicate structure and its remarkable design, although anchoring the tower solidly to the ground, makes it soar into the sky with exceptional lightness.
Claudio Silvestrin 曾经被问过这样一个问题,有没有想过会如何设计地狱?
Claudio Silvestrin once asked by someone:Did you ever play with an idea of how would you design hell?
Claudio Silvestrin 回答:没有必要设计地狱;它已经在我们身边,以侵略性和扭曲的形式,那些钢筋混凝土,堆砌的装饰品们......那些正在被崇尚的信条:物质主义。
There is no need to design hell; it is already around us, in aggressive and contorted forms, steel and concrete, ornaments... worshipping their creed: materialism.
WATER TEAM DESIGN
////////
建筑 / 室内 / 视觉
Architecture/ Interior/ Graphic
///////////////////
欢迎分享至朋友圈
Welcome toshare to friends
////////////////////////
营造生活空间气质美学
Creating a temperament space aesthetics
////////////////////////
//////////
Reproduced paeasespecifyWaterteam deign,Rightsreserved.
往期作品
---------------------------------------
Magic π 融合餐厅 - 无限不可能
FFA OFFICE / 克制的光与影(下)
FFA OFFICE / 克制的光与影(上)
ENJON COFFEE / 秩序的平衡
生活与艺术并存 / Life and Art coexist
J SPA ROSE SPACE
TERRAN 未来云服务中心
ENJOY COFFEE 预告
RURAL PRACTICE 基于乡村文化的一次实践
2019 项目预告 MOONGOOD HOTEL
SO JOIN IN EDUCATION 思加益儿童成长中心
TERRAN 沉浸式生活体验馆 - 新零售
----------------------------------
客服
消息
收藏
下载
最近
























