查看完整案例


收藏

下载
舞者的世界,简单、干净、美丽、高贵。舞蹈,留给每个孩子最珍贵的印记,大概就是这举手投足间的美丽。
精致前卫,时尚舒适
在商场内,独特前卫的设计让<阿拉丁舞艺>的空间成为耀眼的明星。
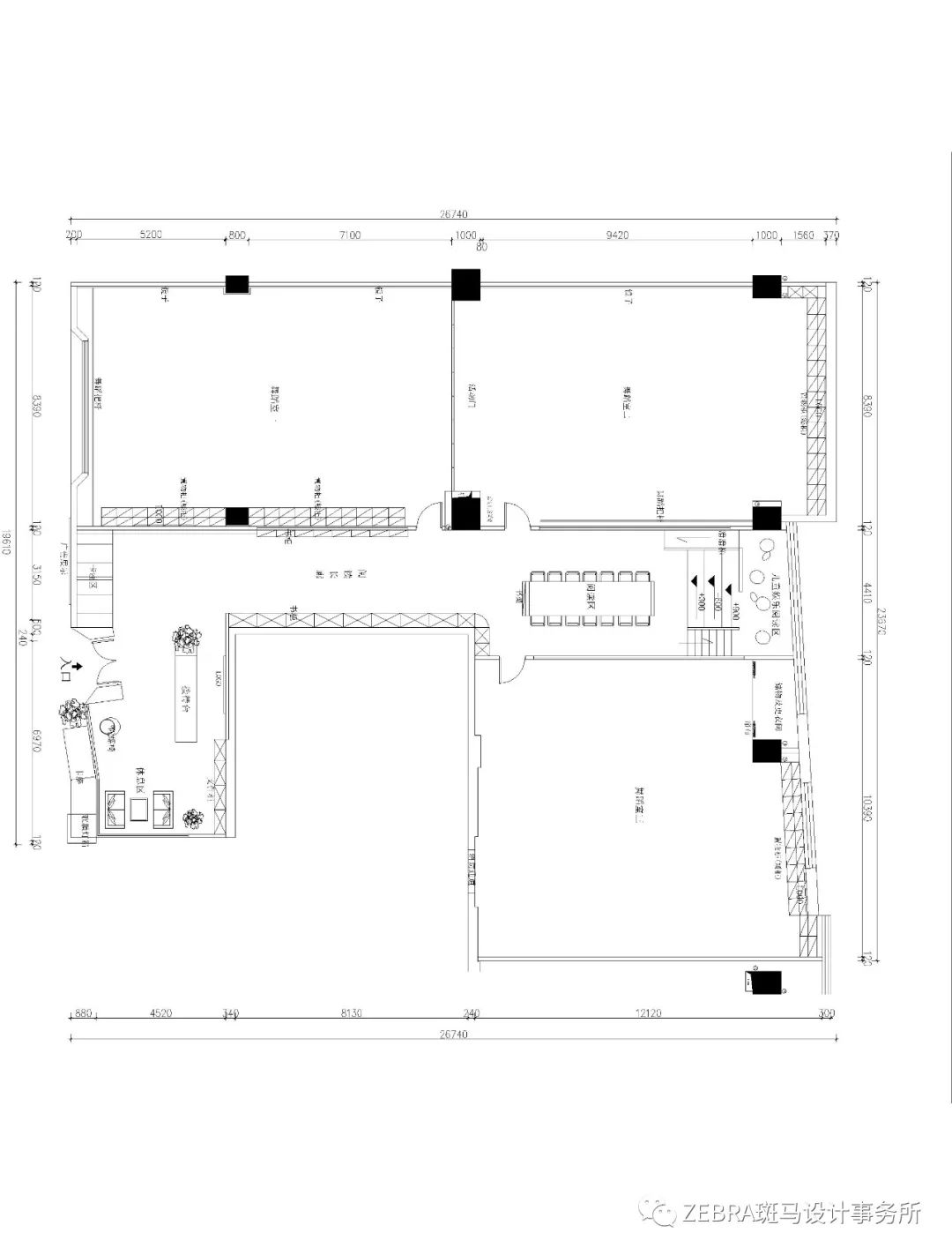
平| 面 | 布 | 置 | 图
空 | 间 | 效 | 果 | 图
阿|拉|丁|舞|艺|空|间|美
前厅的入口处,斑马设计打破了原有的方正格局,制造了一个内收的盒子入口。面对商场过道这面,斑马尽量把室内空间展示出来,独特的方形灯箱招牌设计也是门头的亮点设计。
少即是多。
斑马设计致力于做减法的理念,去除太复杂的堆砌效果,简单几件有个性的家具足以把空间表达出来,开阔的前厅能让家长认识<阿拉丁舞艺>的实力和专业。
本次设计主要通过极简的方式,来表达空间的层次。斑马在此设计中通过增加空间的设计创意性,再通过特定的设计手法,让空间的层次感更加丰富、且具有可玩性。斑马尽量使用简洁的设计语言,使室内空间显得更加开阔明朗。
斑马为其设计了大面积的书墙,还有为孩子专属打造的娱乐空间。以书为墙,以梦为马,德艺双馨,文“舞”双全。这是<阿拉丁舞艺>办学的追求,也是斑马通过空间想要输出的设计理念。斑马设计祝愿一波又一波的小小舞者可以在<阿拉丁舞艺>梦想起飞。
项目名称 / 阿拉丁舞艺
项目地址 / 桂林市叠彩区北辰路北大街商场
项目类型 / 商业空间
项目面积 / 450㎡
设计单位 / 斑马設計事务所
主笔设计 / 农滨瑜
设计师简介 /About designer
农滨瑜 斑马设计事务所
设计理念:构建本质与情感,让生活回归生活。
所获荣誉:
荣获中国(桂林)设计杰出青年。
《无忧产后修复中心》作品荣获第十届 IDOL 锋范奖商业零售空间优秀奖。
《斑马设计事务所》荣获第四届中国设计【新桂系】设计大赛商业空间组银奖。
《Hi!Beauty!饰品店》荣获第五届中国设计【新桂系】设计大赛陈设设计组金奖。
关于我们 /About us
联合创始人:韦建(中)、农滨瑜(左)、肖伟(右)
公司简介 /Company profile
斑马设计事务所,成立于 2017 年。组建以来,我们一直秉承着“以原创设计为驱动力,打造更具有价值的先锋设计”为设计理念,且与国际设计潮流接轨,不断探索未来设计的可能性。
斑马设计事务所是不断力求创新和突破的团队,通过近几年来的运营和所做的案例,已经助力多家企业和商业空间实现更好的商业价值!我们未来将以更全面的设计方式服务于空间所带来的环境、园林、居住及商业项目范畴的所需企划,与人文理念结合,打造具有代表性的设计产品。
Zebra design, founded in 2017. Since its establishment, we have been adhering to the design concept of "creating more valuable pioneer design driven by original design", and in line with the international design trend, and constantly explore the possibility of future design. Zebra design firm is constantly striving for innovation and breakthrough team, through the last few years of operation and do the case, has helped a number of enterprises and commercial space to achieve better commercial value! In the future, we will use a more comprehensive design approach to serve the needs of the environment, landscape, residential and commercial projects brought by the space, and combine with the humanistic philosophy to create representative design products.
所获荣誉/Received the honor
2020 年度第十一届 IDOL 锋范奖八个作品入围获奖
2019 年度金堂奖(商业空间)杰出作品
2019 年度金堂奖(餐饮空间)杰出作品
2019 年度艾特奖(餐饮空间)优秀作品
2019 年度中国设计【新桂系】设计大奖赛商业空间组金奖
2019 年度中国设计【新桂系】设计大奖赛商业空间组银奖
2019 年度中国设计【新桂系】设计大奖赛商业空间组铜奖
2019 年度中国设计【新桂系】设计大奖赛软装设计组金奖
2019 年度中国设计【新桂系】设计大奖赛软装设计组铜奖
2019 年度中国设计【新桂系】设计大奖赛家居空间组银奖
2018 年度金堂奖(办公空间)优秀作品
2018 年度中国设计【新桂系】设计大奖赛办公空间组银奖
2018 年度中国设计【新桂系】设计大奖赛酒店空间组银奖
2018 年度广西第九届 IDOL 锋范奖办公实景类铜奖
13517833304 肖先生
18977323007 农女士
地址:桂林市秀峰区红岭路 20 号 17 栋(原空压机厂内)
客服
消息
收藏
下载
最近





























