查看完整案例


收藏

下载
家具造型简约、质感细腻,与灯具饰品背景墙搭配相得益彰。丰富的质感打造出层层叠叠设计韵律,未成曲调现有情,此时无声胜有声。
The furniture is simple in shape and exquisite in texture, which matches well with the background wall of lamps and lanterns. Rich texture to create a layer upon layer design rhythm, not into the tune of the existing situation, at this time silent win sound.
踏入客厅,拾席而坐。
阳光透过落地纱窗,摇曳斑驳,定睛处,几枝淡雅清新的绿植无声呢喃,心绪就这样舒缓下来了…
Step into the sitting room, pick up seat and sit. Sunlight through the French screen window, swaying mottled, the eyes, a few elegant and fresh green plants silent murmurs, the mood is so slow down...
餐厅是生活家的天地,在这里品尝美食,亦品味生活。温馨的斑驳光影折射在杯碗盘碟上,精致的生活图卷也便就这么徐徐展开了。
Restaurant is the world of life home, here to taste food, but also taste life. The warm mottled light reflects on the cups and dishes, and the delicate life picture rolls out slowly.
主卧空间以
奶咖色为底色
,宁静雅致。窗间纱帘采用
孔雀蓝
来点缀意趣,灰咖相间的床品搭配质感丰富的家具,在纯简的空间中跃跃跳动,赋予空间绵绵不断的遐想
。
The main bedroom space is quiet and elegant with the background color of milk coffee. Gauze shade between the window uses peacock blue to adorn interest of intention, the bed that grey coffee alternates with tastes the furniture with rich simple sense, jump jump in the space of pure Jane, gift the space continuous ceaseless reverie.
---- 在某个
时刻
事物
必然
从无到有
---- At some point things must come out of nothing
项目信息|福建漳州
Project information | fujian zhangzhou
主案设计|刘庆辉
The main case design | Liu Qinghui
设计团队|JLD设计
The design team | JLD design
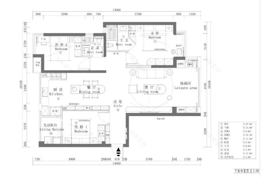
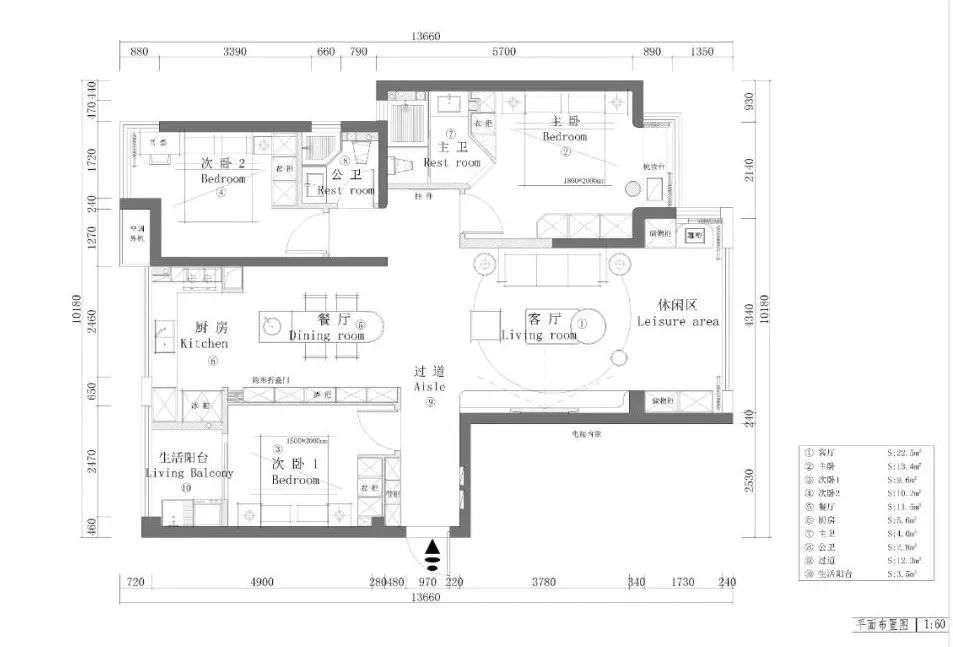
项目面积|120m²
Project area | 120 m squared
▼
Introduction to the Founder
▼ Team elegant demeanour
客服
消息
收藏
下载
最近















