查看完整案例


收藏

下载
項 目:
新城長島
,常州
Location:
Changzhou
面 積:
140m²
Square meters:
140m²
項目類型:
老房改造
Project Type:
Old House Renovation
主案設計:高筠晶
Designer:
Gao Junjing
.
.
設計,不是一件淺嘗輒止的事情。
我們把它當做一輩子的事業,而不僅僅是一份工作。
真正的生活,也從來不是被精心擺設後呈現的“完美空間”,它不是標簽化的、模板式的。相比展現一個完美住宅,我們更關心人們做飯、沖澡、睡覺、和家人朋友在一起、還有孩子們學習玩樂時的樣子。
這裏應該有居住者的故事、品味和沒有被包裝過的“真性情”。
我們渴望被設計賦予生命力的家,能陪伴居住在這裏的人久一點,快樂一點,他們可以在這裏愉悅的生活、相處,享受每一刻美好的時光。
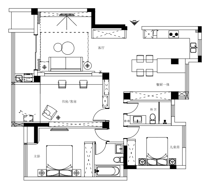
项目平面布置图
配乐
生活一路高歌猛進
所以秋天不是冬天的開始
秋天的驕傲是果實
客厅改造前后实景对比
本案是一套老房改造項目,設計師通過大刀闊斧的改造,讓格局和面貌煥然一新,更讓原本140平的空間看上去有180平的寬敞。
我們可以想象居住在這裏的朋友們,穿著睡衣咬著牙刷的樣子、光著腳噔噔踩在地板上的樣子、窩在沙發裏懶散的但很愜意的樣子、敲打玻璃隔斷喊工作狂(遊戲狂)吃飯的樣子......煥新後的這個家,已足以讓他們在這裏歡樂的ZAO起來,做想做的事,賴想賴的床,過理想的生活。
用業主的話說,“這個家,是這個秋天高於意料的驚喜。”是啊,生活一路高歌猛進,所以秋天不是冬天的開始,秋天的驕傲是果實。
貼心的人
會做好早餐、煮好咖啡
再跟妳說早安
餐厅改造前后实景对比
厨房改造前后实景对比
對於新婚的“連體嬰”夫婦,改造后的開放式餐廚倒是十分適用。一起在廚房裏忙碌,也不會覺得擁擠。而且貼心的人會做好早餐、煮好咖啡,再跟妳說早安。
在這裏,居住者內心的聲音被放大,而不是被忽視和弱化。業主對胡桃木色的喜愛,對潔凈白色的喜愛,在討論前期就被記錄,並在設計中以更適合年輕人的調性得以呈現。原木貴在天然,如要在千百種木材中選擇一個高貴的血統,胡桃木確實是非常好的選擇。
金色圓形銅把手、鐵藝細腿,設計師一改印象中胡桃木的古板初印象,讓它更對年輕人的口味。
也讓不少鄰居朋友驚嘆,原來胡桃木可以這麽玩!
通道改造前后实景对比
大家都知道,井柏然是著名的杯子收藏控,是家裏有著杯子墻的 “杯子大戶”。
本案的業主特別愛好咖啡,也特別愛好收藏杯子。他說,”小小的容器裏裝的不僅僅是飲品,更是壹種積極的生活態度。”去各個國家旅行時他都會買壹些當地特色的杯子帶回來。於是,設計師特意利用過道的位置,設計了可以展示和收納收藏品的陳列櫃,成就家裏壹道亮麗的風景線。
在胡桃木與白色構建的空間裏
走進書中向往的大漠之野
书房改造前后实景对比
互相穿上圍裙,也一起擁有書房。
原本的次臥被改造成通透的書房+多功能房。白色墻布用freestyle的紋理與胡桃木色構建舒服的基底,頂天立地的內嵌式書櫃和置物櫃,包容兩個人的書籍和玩具,開放式的格局方便取用,但也需要彼此一起勞動才能收拾的整潔幹凈。
亮眼的大紅色單人沙發是除榻榻米休閑區外,另一個人的根據地。榻榻米擁有豐富的儲物,有客人來訪時也可以作為客房來使用。
more+
臥室,像沾染在鼻尖的奶油蛋糕
透著隱約的香氣
卻不會讓人感覺到膩
卧室改造前后实景对比
棉柔的灰色系床單,帶著烘幹機的暖度,在這個秋天裏格外的溫和。恰到好處的軟飾,帶著灰度,和工作一天的朋友們溫柔地說晚安。
我理解的“好設計”
應該是弱化設計本身的
不那麽用力,也不必假裝張揚
卧室改造前后实景对比
小小的音響裏放著秋天的歌,夏日就這樣輕逸的逃去了,販賣快樂的晚霞五點半就要打烊了,我的電話也響了,他說今晚吃魚,要不要蒸上了,我知道他催著愛的人回家了。
新婚快樂
即將到來的國慶佳節
是業主的新婚大喜
在這裏我們把最美好的祝福
連同對這個家用心的付出,獻給他們
—
主案設計
高筠晶
Design Director
Gao Junjing
景瑞曦城,常州
客服
消息
收藏
下载
最近

















































