查看完整案例


收藏

下载
项目地址:武汉岭尚空间高尔夫俱乐部
项目面积:770m²
项目设计:品承设计
设计风格:现代简约
设计施工:武汉品承空间设计有限公司
设计主材:
石材、木饰面、硬包、不锈钢
『
DESIGN NOTES
』
武汉岭尚空间高尔夫俱乐部是一家以服务高尔夫VIP会员,为
高尔夫VIP会员打造休闲娱乐为一体的高级会所
、并兼备室内青少年培训基地、成人培训及连打练习场、高尔夫主题轻食区为一体的综合所馆,占地面积约770平方,分为公共打位练习区、VIP包房商务区、青少年训练区、果岭区、水吧轻食区、舞蹈室、餐厅VIP包房。
用现代时尚轻奢风格打造专业品牌高尔夫主题的休闲会所。
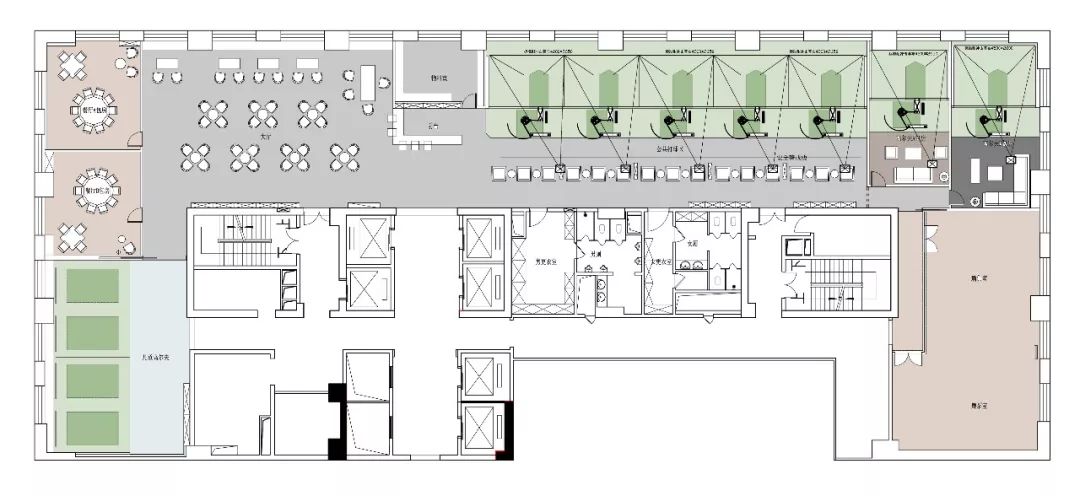
平面布置图
layout chart
效果展示图
大厅及水吧轻食区
高尔夫会所,不单单是为了满足高尔夫运动而存在,而是在满足运动的同时,后期提供的环境让这项运动成为更放松而舒适的存在,远离都市的尘嚣,在此享受岁月静好与自然风光,成为高档、美好、尊贵的休闲场所。
公共连打区
“高尔夫”是GOLF的音译,由四个英文词汇的首字母缩写构成。
它们分别是:
Green, Oxygen, Light, Friendship。
意思是"绿色,氧气,阳光,友谊",它是一种把享受大自然乐趣、体育锻炼和游戏集于一身的运动。
设计中采用大面积的
绿色植
物墙体充分模拟
仿真
的室外
高尔夫
视觉体验,让高尔夫爱好者足不出户,就能体验在国际高尔夫球场上击打高尔夫,不受时间和天气的限制。
青少年培训区
根据青少年训练区的空间环境及高尔夫风格的配置要求进行空间上的搭配定制,包括顶面彩旗的颜色搭配,地毯及草坪的选择,墙纸的选择及挂画等,从整体上实现软饰与空间的完美结合,让小朋友们在这个空间愉快的玩耍。
VIP包房区
高尔夫VIP独立包房,秉承着为了让高尔夫运动更加达到伸展舒心的效果,给VIP球友提供一个私密会客的交流空间,空间氛围上追求时尚酷炫的视觉冲击,让会员们在这个空间里面既能享受到打球的愉悦,也能同时进行一些商务会谈。
餐厅包房区
餐厅VIP包房
采用新中式调性,
营造
宁静的就餐环境
,
让
高尔夫会员们在餐厅交友会餐的同时远离城市的喧嚣,达到舒展身心的效果。此空间用
素雅的硬包与纯色墙纸做主基调,采用自然、干净的原木色材料,与空间的暖色灯光和谐的融入了一体,明亮且温暖。
舞蹈房
舞蹈房原始吊顶
采用
喷白漆的工艺,地面铺贴原木色的木地板,搭配暖黄色艺术墙漆,让整个空间显得格外的温馨,给热爱舞蹈的女性提供了一个舒适的锻炼环境。
M:18908640106
T:027 - 87879499
武汉市洪山区三金雄楚天地1-1413
(
地铁2号线杨家湾站B出口)
往期作品
☞品承设计||瑞丰国际||现代简约|178m²
☞品承设计||公园壹号||美式轻奢||390m²
☞品承设计 ||纳帕溪谷别墅||现代简约||650㎡
☞品承设计 ||纳帕溪谷别墅||现代简约||590㎡
☞品承设计 ||水蓝郡别墅||现代轻奢||580㎡
☞品承设计实景作品||都会轩||现代轻奢||207㎡
☞品承设计||九台别墅||现代轻奢||622㎡
☞品承设计 ||水岸星城||现代简约||170㎡
☞品承设计||沿海赛洛城||港式轻奢||369㎡
☞品承设计||御山墅||现代轻奢||137㎡
☞品承设计||楚世家||现代简约||100㎡
☞
原创 | 品承设计住宅案 — 都会轩
☞
【品承设计实景作品】 ~东湖天下~
☞
【品承设计实景作品】 江山如画·汉玺
☞
品承设计||水墨清华别墅||现代简约||514㎡
☞
品承设计||京华时代||现代轻奢||120㎡
☞
【品承设计实景作品】复地东湖国际
☞原创 | 品承设计住宅案 — 江山如画
·汉玺
☞
【品承设计】保利心语别墅
☞原创 | 品承设计住宅案 — 锦江国际
☞原创 | 品承设计住宅案 — 保利时代
☞品承设计||江南里||中式||198㎡
☞品承设计||国际城会所||中式||120㎡
ABOUT US
品承空间设计有限公司
武汉品承空间设计有限公司是一家专业从事住宅平层、洋房别墅、高级会所、房产样板间的室内设计、装饰施工以及整体配饰陈设为一体的设计公司。将“品质是我们的承诺”作为设计理念,以专业的设计水平,独特的个人品味,诚恳的工作态度服务于追求高品质生活空间的客户群体。团队提供室内硬装设计、软装家具饰品整体设计等服务。选择品承,将艺术融入到生活 ,体验不一样的私宅定制。
客服
消息
收藏
下载
最近




































