查看完整案例


收藏

下载
项目地址:公园壹号别墅
项目面积:390m²
项目设计:品承设计
设计风格:美式轻奢
设计施工:武汉品承空间设计有限公司
设计主材:
石材、实木定制墙板、硬包、进口家具
『
DESIGN NOTES
』
本案以现代美式风格作为设计的原点,追求纯正精致的审美趣味。空间色调以高级灰为主色调撞色璀璨热情高贵的爱马仕橙,用线条与轮廓对时尚与品味重新诠释,营造一个独具风格的现代美式空间氛围。
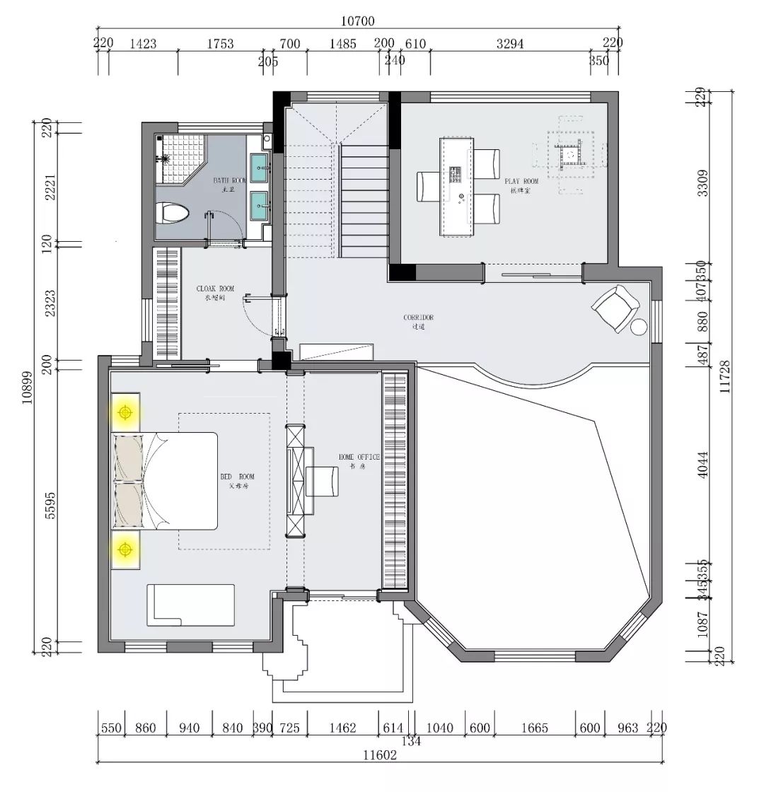
平面布置图
The First Floor
Second Floor
The Third Floor
效果展示图
客厅
△客厅设计偏向舒适性,墙面以灰色墙板打底,金属线条创造勾缝层次,天花采用多层叠级关系和水晶吊灯搭配凸显空间结构感。设计师以拙朴形制演绎大巧不工的东方美学韵致,别具一格的表象下掩藏着豪宅的尊贵内涵;优雅冷静的高级灰与璀璨热情的爱马仕橙,形成这座豪宅的气质色彩,使整个空间在璀璨之外还拥有扣人心弦的华美。
餐厅
△餐厅墙板以灰色、米色为主,点缀明快高级的爱马仕橙的餐椅,给居住者呈现出一个经典与气度的感官世界。通过饰品,挂画、家具细节等各种样式的组合搭配,形成强烈的视觉符号转换到空间中,每个元素都蕴藏着卓然的审美品位,形成接近生活又明显高于生活的气质。
厨房
△
在空间规划上,所有功能的设计基于对生活的理解,所谓「家」,装的是生活。
厨房是一个家庭空间里使用频率最高的地方,开放式厨房加上岛台的设计,满足了女主人的基本需求外,更能让人感受家庭中其乐融融的氛围。此过程中彰显着属于它的奇妙意义,生活犹如艺术品。
二楼父母房
△
卧室散发着浓郁的美式情韵,醇美的软饰和色彩,质朴的浅棕柔雅而安谧,凝结着高端而沉稳的品位和质感。
线条勾勒出的纷繁典雅,搭配家具造型轮廓的流丽、水晶台灯摆件的剔透雅致,让空间的魅力在无言中绽放升级,兼容细腻的柔美与轻奢的风华。
三楼女儿房
△
三楼是女儿的卧室,因长期在国外生活,格调与品位是该空间的设计代名词。
运用粉蓝色的色调,优雅浪漫的Moooi吊灯、每款家具都是经意大利匠心艺术大师精心设计,给整个空间带来如沐春风的艺术品味。细节之处的质感尽显法式风格浪漫与含蓄温馨。
三楼衣帽间
△
大气的衣帽间,嵌入式妆台和金属线条镶嵌的的岛台轻松应对一切美妆需求,体现出居者的时尚造诣,亦油然而生对品质生活的仰慕与敬意。整个空间
与女儿房的艺术气质相呼应。
三楼卫生间
△
女儿房主卫生间大面积的白色石材搭配金属玻璃衣柜,让简约优雅的空间充满了时尚与温柔的气质,天然大理石更是彰显出纯粹的美式轻奢质感。
淋浴房运用玻璃隔断,营造出通透敞亮的整体氛围,风格调性与女儿房卧室空间极具互动关联性。
绘制的理想梦境,是追逐的奢华港湾,是向往的净澈栖息。
守过岁月白云苍狗,守着家的静好祥和,历久弥新。
都将家的暖意悄悄融入场景之中。
M:18908640106
T:027 - 87879499
武汉市洪山区三金雄楚天地1-1413
(
地铁2号线杨家湾站B出口)
往期作品
☞品承设计 ||纳帕溪谷别墅||现代简约||650㎡
☞品承设计 ||纳帕溪谷别墅||现代简约||590㎡
☞品承设计 ||水蓝郡别墅||现代轻奢||580㎡
☞品承设计实景作品||都会轩||现代轻奢||207㎡
☞品承设计||九台别墅||现代轻奢||622㎡
☞品承设计 ||水岸星城||现代简约||170㎡
☞品承设计||沿海赛洛城||港式轻奢||369㎡
☞品承设计||御山墅||现代轻奢||137㎡
☞品承设计||楚世家||现代简约||100㎡
☞
原创 | 品承设计住宅案 — 都会轩
☞
【品承设计实景作品】 ~东湖天下~
☞
【品承设计实景作品】 江山如画·汉玺
☞
品承设计||水墨清华别墅||现代简约||514㎡
☞
品承设计||京华时代||现代轻奢||120㎡
☞
【品承设计实景作品】复地东湖国际
☞原创 | 品承设计住宅案 — 江山如画
·汉玺
☞
【品承设计】保利心语别墅
☞原创 | 品承设计住宅案 — 锦江国际
☞原创 | 品承设计住宅案 — 保利时代
☞品承设计||江南里||中式||198㎡
☞品承设计||国际城会所||中式||120㎡
ABOUT US
品承空间设计有限公司
武汉品承空间设计有限公司是一家专业从事住宅平层、洋房别墅、高级会所、房产样板间的室内设计、装饰施工以及整体配饰陈设为一体的设计公司。将“品质是我们的承诺”作为设计理念,以专业的设计水平,独特的个人品味,诚恳的工作态度服务于追求高品质生活空间的客户群体。团队提供室内硬装设计、软装家具饰品整体设计等服务。选择品承,将艺术融入到生活 ,体验不一样的私宅定制。
客服
消息
收藏
下载
最近





































