查看完整案例


收藏

下载
尺本设计
C.H.I.B.E.N Interior design
6
「原野瞭望,穗禾满仓」
项目地址 | 绿地翠谷
面积 | 345m²
类型 | 私宅
硬装设计 | 王翔 余磊 向磊
软装设计 | 罗晓燕 余磊
/
1
/
空间分析
Space Analysis
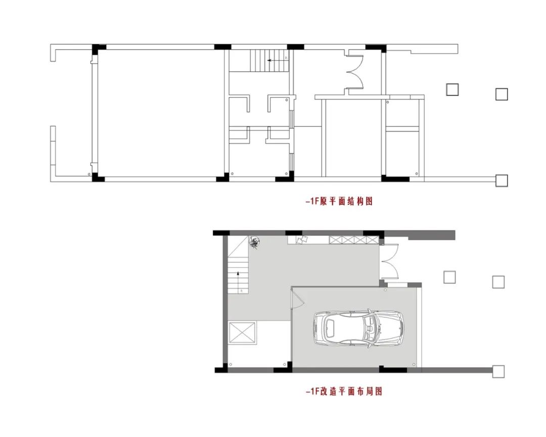
1.入户走廊及门厅狭长、昏暗
2.客厅处在离地 1.5m 的夹层,楼梯动线正朝大门方向
3.楼梯错落叠加、结构复杂,考虑预算保留原始结构
4.顶楼主卧斜梁最低点离地只有 2.7m,
减去地暖层完成尺寸为 2.6m。
*结合以上实际情况,设计师有了大胆的想法与调整思路。
户型改造
House renovation
A.将原天井抬升至一楼,调整上楼楼梯方向,透明观光电梯周围设置日式和风园林造景,归家动线更加合理,布局也符合风水。
B.整个车库墙面采用玻璃材质,沿玻璃幕墙安装体感灯带作为入户引导,从视觉上放大空间,改善采光。
C.为弥补户型错层结构,将沙发区设置成下沉式,拉长空间比例,营造落座惬意感,入户时视线与休息区齐平,增进居者之间的沟通。
D.考虑预算有限,未改动餐厅以上的楼梯,从客厅到餐厅的部分采用钢架楼梯,以材质变化体现空间的过渡,层次分明。
E.基于坡顶斜梁最低点的关系,融入自然的概念,墙面仿佛天然溶石,空间气质温和治愈。
*以上线稿均由结构模型建立导出
/
3 / 创作灵感 Inspiration
日本著名建筑师,安藤忠雄说过,房子是可以捕捉大自然的容器。自然既不是房屋的附加物,也不是装饰物。居者热爱文学,便以大地色作基地,令空间拥有文学的底蕴。配以石材、原木、黄铜、绿植、羽毛、天光,造一方精神家园,盛满自然理想,自在栖居,盈盈微光。
/
4 / 居所导览 Home tour
窗外和室内
四季,不动声色变幻
拉近人与自然的距离
无主灯设计配合落地窗,铺垫柔光的氛围。壁炉四周缀满大地色,延伸至吊篮躺椅,清晰地划出区域的界限。
奶茶色的下沉式休息区,以步入的仪式感和简练的色彩,包容你的情绪,像是缥缈的苇荡,芦花漫天。
挺拔生长的琴叶榕
拾级而上的楼梯
直线斜线相映成趣
木格隔断、墙面镂空
是美学的镜头
记录缄默平实的点滴
榫卯的梁,有了原乡的质朴。黄铜吊灯,丰富同色系不同材质的层次感。凹凸有致的木台面,可以当作备餐区和陈列架。岛台餐桌比肩相邻,为下厨进餐的烟火日常,平添几分交流的乐趣。
隐形门的元素,使墙面和谐统一。凿出的壁龛,墙角的溶岩,诉说着时间风化的故事,也如同居者生活留下的痕迹。
树枝上的织物和羽毛构成捕梦网,悬于床头。木板石材不规则堆叠,取代传统的床头柜,既可置物,亦可燃一柱线香,承担静坐冥想的功能,创造身心舒适的角落。
结合居者热爱阅读的习惯,以旋转楼梯将空间一分为二,增加书籍的收纳需求。偏深的木色避免注意力分散,使居者日常可以安心写作。
# 户型平面布局 -1F ~ 3F
左右滑动查看更多
# 過往案例
點擊圖片瀏覽
17 英里-细沙岛屿
龍湖開元-明澈如岩
北岸江山 - 十四行詩
. E N D.
尺本設計
C.H.I.B.E.N Interior design
*
聯系方式
關注我們
137 01463480
江北區 星耀天地 30 棟 16-1
COPYRIGHT ©2021
C.H.I.B.E.N
Interior design
ALL RIGHTS RESERVED.
客服
消息
收藏
下载
最近






























