查看完整案例


收藏

下载
房屋信息
坐 标:
内蒙古-包头
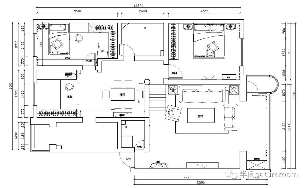
户 型:
三
室两厅
面 积:
140
㎡
设 计:
半间设计
设 计 师:
高丽娟
工程造价:
30万(硬装8万,软装4万,主材11万,家具7万)
户型布局
改造亮点:
客厅:房子原来的面貌是,黄色的木饰面,大面积的吊顶,门口的玄关,都很压抑和老旧。
餐厅:由于有书房推拉门,导致餐厅光线昏暗,改善采光问题
女儿房:由于有衣帽间,孩子活动空间小,改造空间问题
风格定位“轻美式”
业主情况:
和业主小美女沟通了两次,大概的想法就有了,(比较好的一点是业主小美女的老公不管,由她全权负责)这一点就可以完全按照我俩的想法来做。
客厅
笨重的垭口死角,用轻巧的小壁炉来装点,轻松,清爽,用简单的色调搭配,干净,大方。
餐厅
低矮的餐厅隔墙,不能拆除,只能做个假窗。
小姑娘的公主房,
装修前照片
客服
消息
收藏
下载
最近




























