查看完整案例


收藏

下载
© Fernando Alda
(费尔南多·阿尔达)
架构师提供的文本描述。在金融危机期间,利纳雷斯基金会科学技术园区于2008年决定应对该地区的各种调整和工业拆解,实施了一个促进研究和创新以及经济发展和社会振兴这一弱势地区的项目。由于所有社会、经济和政治机构的持续支持,一个项目得以实现。
Text description provided by the architects. During the financial crisis, the Science and Technology Campus of Linares Foundation decided in 2008 to cope with the various adjustments and industrial dismantling of the region, with a project that promoted research and innovation as well as economic development and the social revitalization this disadvantaged area. A project come true thanks to the continuous support of all social, economic and political agents.
© Fernando Alda
(费尔南多·阿尔达)
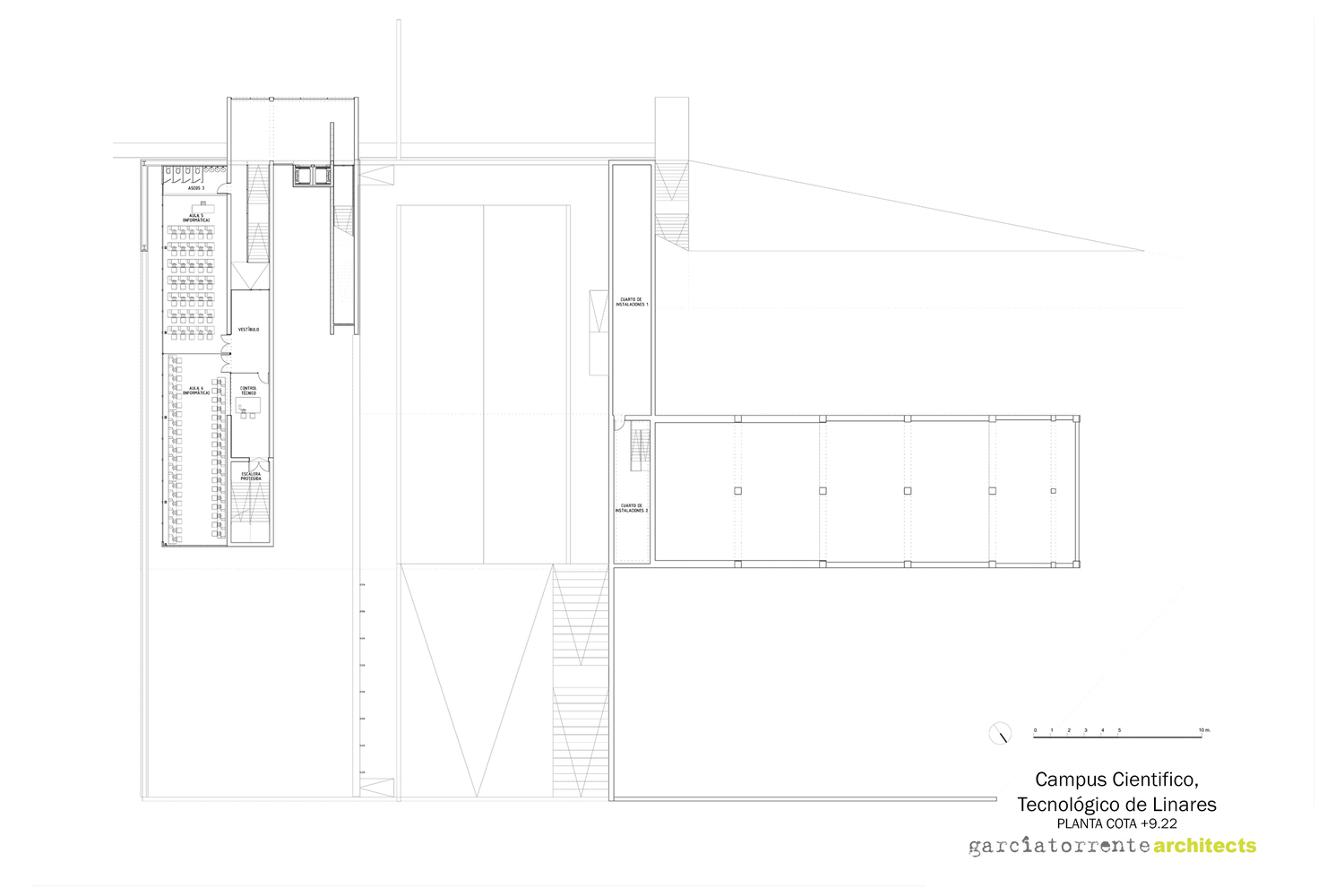
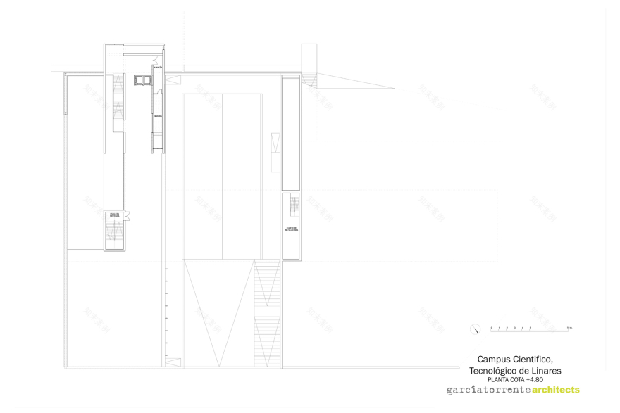
作为位于利纳雷斯的贾恩大学的所在地,校园有六座主要建筑,其中包括目前可容纳2600名学生的教学楼。它位于陡峭的地块上,它的正规化反应了解决不同海拔之间的相遇以及需要方案的需要,从而使空间的流动性和渗透性发生在不同的通道上;一种延伸到与其他建筑物和校园大中心区域的关系的流动性。因此,建筑就变成了一种内部景观,它是按照不同的层次形成的,总是与外部保持着永久的物理和视觉关系。
As home of the University of Jaen in Linares, the campus has six main buildings, among which is the present classroom building for 2600 students. Located on a steep plot, its formalization responds to the need to resolve both the encounter between the different elevations as well as the program of needs, so that a spatial fluidity and permeability occurs from the different accesses; a fluidity that extends to the relationship with the other buildings and the large central area of the campus. The building thus becomes a kind of interior landscape that is shaped as one traverses it and according to the different levels, always in permanent physical and visual relationship with the exterior.
© Fernando Alda
(费尔南多·阿尔达)
在功能上,中央广场的地面水平为大堂和礼宾部预留;下面,封闭的露台和草坪之间为考试教室;上层为计算机房,顶层为教室、车间和研讨会。因此,该建筑允许在单独的区域进行分隔,以便在特殊情况下进行更合理的操作:考试日、在时间表之外的使用、研讨会等。因此,尽管它们的开放性和灵活性,在空间上和在使用设施方面都有可能缩小特定的区域。
Functionally, the ground level of the central square is reserved for the lobby and concierge; below, between the enclosed patio and lawn are the examinations classrooms; the upper level is for the computer rooms and the top two floors for classrooms, workshops and seminars, in general. Thus projected, the building allows a compartmentalization in separate areas that make possible a more rational operation in special situations: exams days, uses outside of schedules, seminars, etc. so that, despite their openness and flexibility, it is possible to narrow particular areas both spatially and in the use of facilities.
建设性地解决了与地面的碰撞,解决了三个大的混凝土支撑,整个建筑被悬挂,设想为一座跨度近40米、两层高的桥梁,其执行部分是金属框架,大部分教室位于其中。正面由铝制幕墙和玻璃-Schüco系统组成,除了朝北的侧面外,它由一层薄薄的铝微穿孔板保护,使正面通风,直接热增益降低35%,同时允许从内部直接观察。
Constructively the encounter with the ground is resolved with three large concrete supports from which the whole building is suspended, conceived as a bridge of almost 40 meters in span and two stories high, executed with metal frame in which most of the classrooms are located. The facade is made of an aluminum curtain wall and glass -Schüco system- which is protected, except for the north-facing sides, by a thin skin of aluminum microperforated sheet allowing the ventilation of the facade and reducing direct heat gain by 35%, while enabling direct views from the inside.
© Fernando Alda
(费尔南多·阿尔达)
空间清晰、易于维护和耐久性以及能源效率一直是项目开展时的基本前提。
Spatial clarity, easy maintenance and durability, as well as energy efficiency have been the fundamental premises at the time of undertaking the project.
© Fernando Alda
(费尔南多·阿尔达)
Architects García Torrente Arquitectos
Location 23700 Linares, Jaén, Spain
Category University
Client Fundación Campus Científico-Tecnológico de Linares
Collaborators Isabel Mota Pernias, José Rincón Calderón, Curro Rodríguez Salvador López Cervantes, Esaú Vázquez Rodríguez
Project Year 2008
Photographs Fernando Alda
Manufacturers Loading...
客服
消息
收藏
下载
最近






















