查看完整案例

收藏

下载
© Bart Gosselin
(Bart Gosselin)
建筑师提供的文字说明。护理实验室是布鲁日北部大学大楼的一部分。该建筑于2009年竣工,由DeVloud建筑师设计。它包括三个附件:一个相对封闭的混凝土基座、一个三层建筑和一个浮顶。这所学校建筑的特点是经常使用外露混凝土用于承重墙和地板。
Text description provided by the architects. Care lab is a part of the university building Vives North in Bruges. The building is completed in 2009 and designed by De Vloed architects. It consists of three annexes: a relatively closed concrete plinth, a three-story building, and a floating roof. Characteristic to this school building is the frequent use of exposed concrete for load-bearing walls and floors.
© Bart Gosselin
(Bart Gosselin)
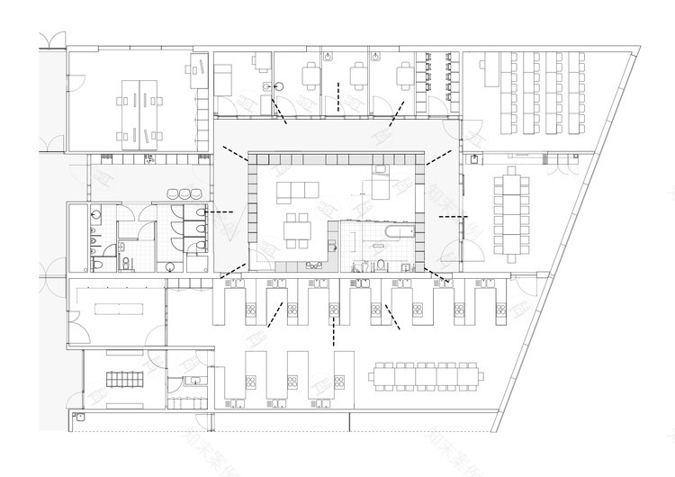
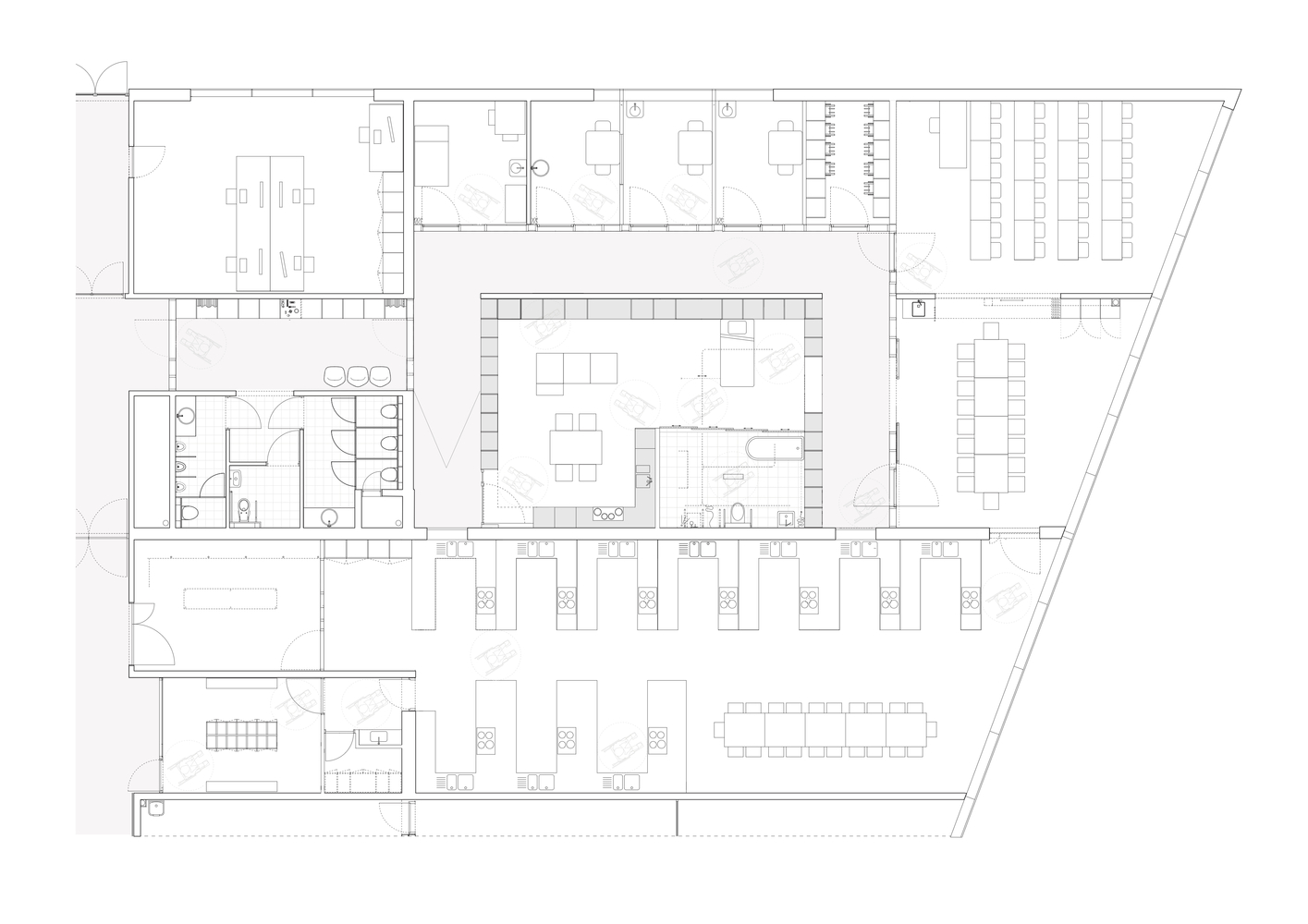
Ground Floor Scheme
底层计划
© Bart Gosselin
(Bart Gosselin)
DMVA被委托改造现有的护理实验室,该实验室位于服务入口旁边的机翼上。DMVA将其建筑理念建立在当代教育视野的基础上。过去,不同的教育领域是分开的,每个教育领域都有自己的封闭教室,而现在的目标是促进不同领域之间的交叉授粉。
dmvA was commissioned to transform the existing Care lab, located in the wing next to the service entrance. dmvA based its architectural concept on the contemporary vision of education. In the past, the different educational fields were kept separated and each had its own closed classroom, whereas now the aim is to stimulate cross-pollination between the different fields.
© Bart Gosselin
(Bart Gosselin)
该建筑原本存在三大小跨度,这限制了灵活性,并使流通困难。DMVA决定通过在护理实验室中心放置一所教育疗养院来突破这三个空间。通过这一转变,护理实验室被转换成一个平滑的空间网络,鼓励不同部门之间的交叉授粉。
The building originally existed of three long small spans which limited the flexibility and made the circulation difficult. dmvA decided to cut through the three spaces by placing an educational care home in the middle of Care lab. Through this transformation, Care lab gets converted to a smooth network of spaces that encourages cross-pollination between the different departments.
© Bart Gosselin
(Bart Gosselin)
由于护理实验室是由不同的部门使用,所以重要的是以一种巧妙和多功能的方式填充这些空间。这样,护理实验室已经成为一个灵活的空间,多学科教室。护理之家,护理实验室的心脏,模拟一个舒适的住宅,但仍然是抽象的。护理院没有使用封闭的墙壁,而是被一个开放的壁橱系统所包围。这样,护理实验室就可以开放和开放了。
Since Care lab is used by different departments, it was important to fill in the spaces in a clever and multifunctional way. In that way, Care lab has become a flexible space with multidisciplinary classrooms. The care home, the heart of Care lab, simulates a cozy residential home but is still abstract. Instead of using closed walls, the care home is surrounded by an open closet system. That way Care lab becomes open and accessible.
© Bart Gosselin
(Bart Gosselin)
护理院周围的木结构不仅可以作为半开放的墙壁,还可以作为储藏或展览的空间。护理实验室所在的大楼是用混凝土建造的。凉爽和清洁的混凝土建筑被保存下来,但辅以松木的使用。通过添加这种温暖的材料,营造出一种宾至如归的气氛,欢迎您进入大楼。
The wooden structure around the care home doesn’t only serve as a half-open wall but can also serve as a storage or exposition space. The building where Care lab is located is built in concrete. The cool and clean concrete architecture was preserved but was complemented by the use of pinewood. By adding this warm material, a homely atmosphere is created, welcoming you when you enter the building.
© Bart Gosselin
(Bart Gosselin)
Architects dmvA architects
Location Bruges, Belgium
Lead Architects Tom Verschueren, David Driesen, An-Sofie De Backer
Area 400.0 m2
Project Year 2017
Photographs Bart Gosselin
Category Extension
客服
消息
收藏
下载
最近















