查看完整案例

收藏

下载
架构师提供的文本描述。这套小公寓是50年代在查卡里塔附近建造的一处房产破碎的残余产物,在一楼形成了一个“ochava”,形象化的外观就像暴露在街道上的好奇景象一样,对外界开放。这三个因素,加上客户居住在一个明亮和灵活的空间的意愿,决定了项目的战略。
Text description provided by the architects. This small apartment, residual product of the fragmentation of a property built in the 50s in the neighborhood of Chacarita, forms an “ochava” on the first floor with visuals as open to the outside as exposed to the curious look from the street. These three factors, added to the will of the client to inhabit a luminous and flexible space, determine the project strategy.
Text description provided by the architects. This small apartment, residual product of the fragmentation of a property built in the 50s in the neighborhood of Chacarita, forms an “ochava” on the first floor with visuals as open to the outside as exposed to the curious look from the street. These three factors, added to the will of the client to inhabit a luminous and flexible space, determine the project strategy.
© Fernando Schapochnik
c:Fernando Schapochnik
© Fernando Schapochnik
c:Fernando Schapochnik
这几个元素的拆除使得这个空间不受限制,只留下了一个小浴室。构成“ochava”的墙的完全开放使得空间在视觉和功能上得以扩展。
The demolition of the few elements allowed the unqualified homologation of the space, leaving out only a small bathroom. The complete opening of the wall that made up the “ochava” allowed the visually and functional expansion of the space.
The demolition of the few elements allowed the unqualified homologation of the space, leaving out only a small bathroom. The complete opening of the wall that made up the “ochava” allowed the visually and functional expansion of the space.
© Fernando Schapochnik
c:Fernando Schapochnik
Isometric 02
Isometric 02
© Fernando Schapochnik
c:Fernando Schapochnik
空间围护的结合提供了一种新的装置,一种隔膜,能够在夏季扩大公寓的使用范围,并在冬季收缩它。热床垫,由于其几何和质地,将承担责任,以确保ElCamarín的隐私。
The incorporation of spaced enclosures offers a new device, a diaphragm able to expand the use of the apartment in summer and to contract it in winter. A thermal mattress that, due to its geometry and texture, will assume the responsibility of ensure the privacy of el Camarín.
The incorporation of spaced enclosures offers a new device, a diaphragm able to expand the use of the apartment in summer and to contract it in winter. A thermal mattress that, due to its geometry and texture, will assume the responsibility of ensure the privacy of el Camarín.
© Fernando Schapochnik
c:Fernando Schapochnik
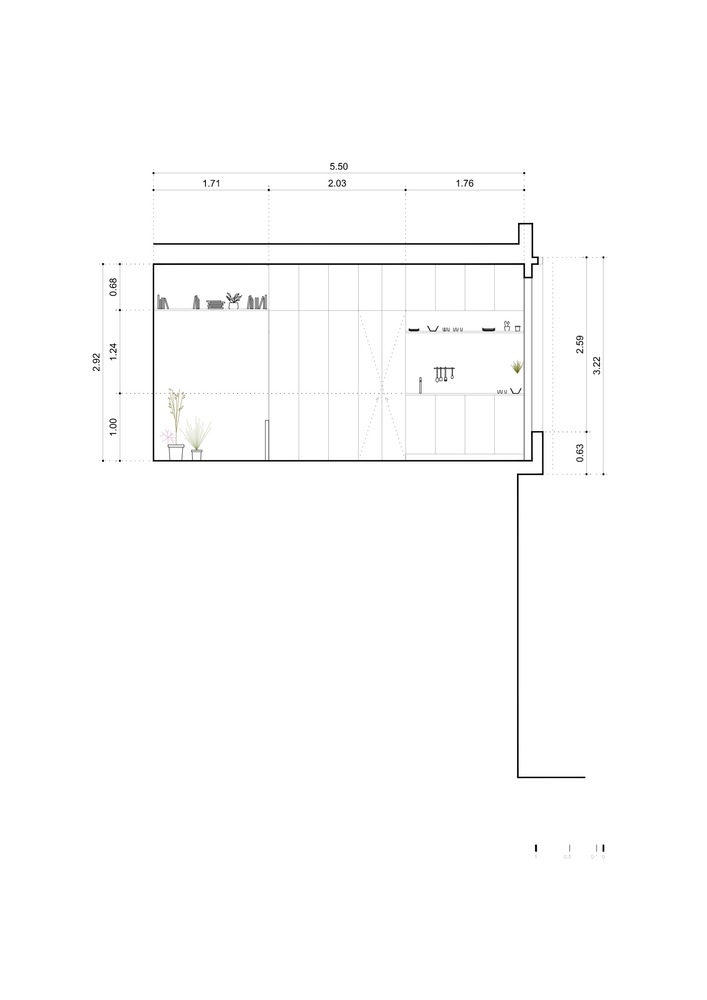
在剩下的两堵墙上,一件家具包括一个小厨房、冰箱和洗衣机,它可以扩大和进入现有的浴室,通过图书馆安排与环境其他部分有关的技术路线、储存空间、设备,并为与环境其他部分有关的床铺和桌子提供住所。
On the two remaining walls a piece of furniture contains a small kitchen, refrigerator and washing machine is displayed, it expands and gives access to the existing bathroom, it organizes the technical lines, storage spaces, equipment and gives shelter to the bed and desk that are related to the rest of the environment through a library.
On the two remaining walls a piece of furniture contains a small kitchen, refrigerator and washing machine is displayed, it expands and gives access to the existing bathroom, it organizes the technical lines, storage spaces, equipment and gives shelter to the bed and desk that are related to the rest of the environment through a library.
© Fernando Schapochnik
c:Fernando Schapochnik
Architects IR arquitectura
Location Chacarita, CABA, Argentina
Project Team Luciano Intile, Enrico Cavaglià, Fermín Indavere, Esteban Basili, Guillermo Mirochnic, Rodrigo Perez de Pedro, Cecile Elbel, Sabine Uldry, Tommaso Polli.
Area 25.0 m2
Project Year 2018
Photographer Fernando Schapochnik
Category Apartment Interiors
客服
消息
收藏
下载
最近

































